Berghem
Havikskruid 18
€ 675.000,- k.k.
Delen
{ if (inProgress) { return; } inProgress = true; favorite ? $store.favorites.delete(identifier, market, address, city, () => { inProgress = false; }): $store.favorites.add(identifier, market, address, city, () => { inProgress = false; }); favorite = !favorite; }"
>
Favoriet
Woning:
173 m2
Perceel: 259 m2
Slaapkamers: 4
Bouwjaar: 2011
Energielabel: A+
Over deze woning
Open woonkeuken, een ruime tuin, vier slaapkamers, en luxe badkamer: deze vrijstaande woning met 173 m2 woonoppervlak heeft het allemaal. En het mooiste: hij is volledig instapklaar.
Vanuit de ruime entreehal met trapkast, meterkast en toilet loop je de moderne leefkeuken binnen. De houten lichte keuken met granieten blad is voorzien van een eiland met bargedeelte, waar je gezellig kunt ontbijten of een drankje kunt doen terwijl er wordt gekookt.
Verder is de keuken van alle gemakken voorzien: een Quooker-kraan, BORA-inductieplaat, combi-oven, vaatwasser, koelkast en vriezer. Ook aan de wijnliefhebbers is gedacht: de wijnklimaatkast met twee compartimenten zorgt ervoor dat zowel rode als witte wijnen altijd perfect op temperatuur zijn.
Aangrenzend aan de open keuken vind je het eetgedeelte en de ruime woonkamer. Via een houten schuifdeur loop je hier de extra kamer in, die dankzij de (opberg)ruimte ideaal is als speelkamer, hobbyruimte of kantoor. De ruimte is afzonderlijk in temperatuur te regelen, waardoor je hier altijd comfortabel kunt spelen of werken. Door de schuifdeur kun je je ongestoord terugtrekken, maar ook eenvoudig de verbinding met de rest van de woning opzoeken wanneer je dat wilt.
Op de eerste verdieping vind je drie slaapkamers, waarvan eentje met inloopkast. Ook is er op deze verdieping een apart toilet en een luxe badkamer: met houten wasmeubel en stijlvolle natuurstenen waskommen, een bubbelbad, douche en elektrische vloerverwarming.
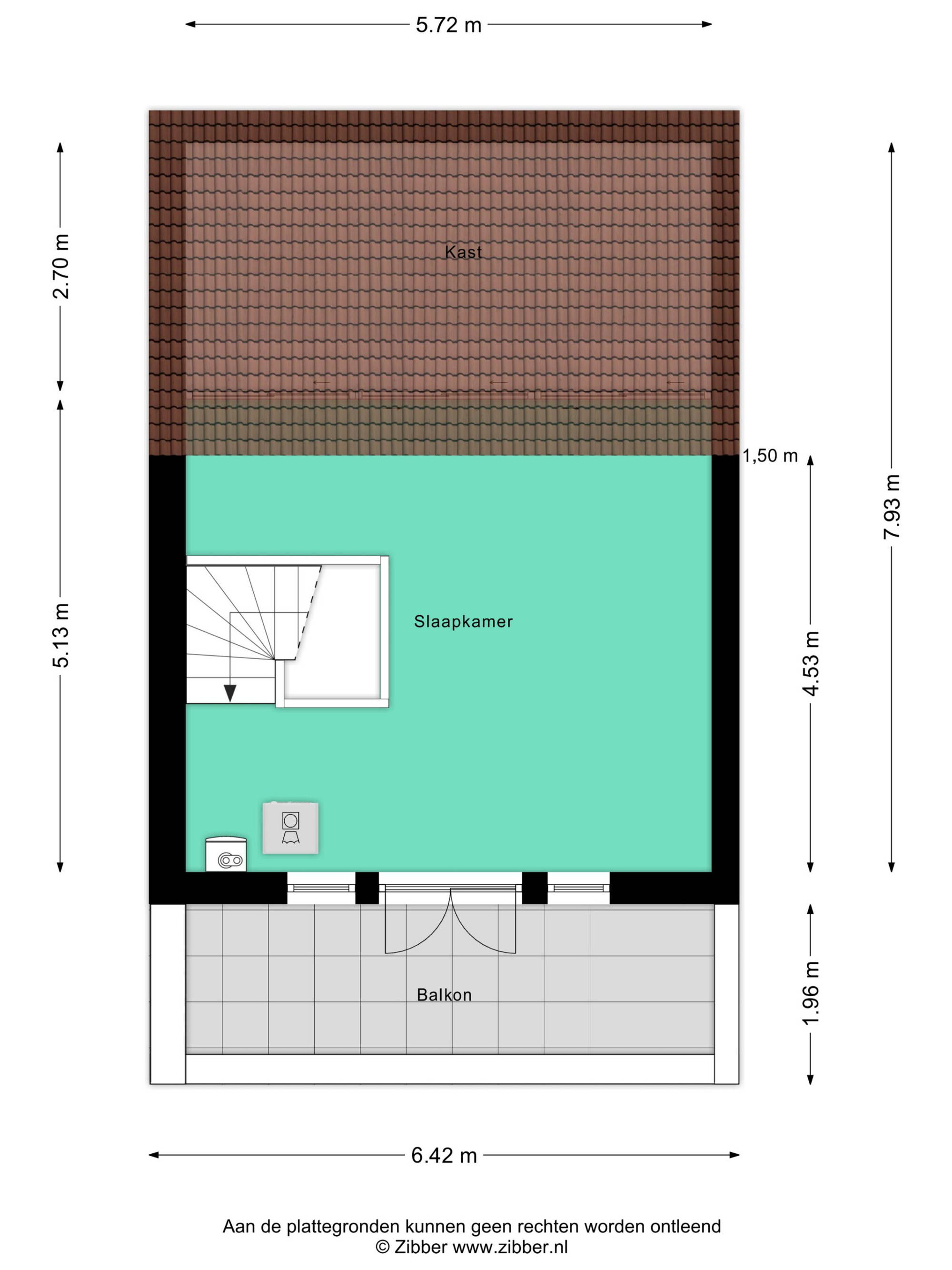
Met een vaste trap loop je naar de tweede verdieping. Deze ruimte is netjes afgewerkt en kan bijvoorbeeld als slaapkamer of kantoor worden gebruikt. Ook zijn er aansluitingen voor witgoed aanwezig. Via de openslaande deuren stap je zo op het balkon.
Beneden in de achtertuin is er voldoende ruimte om vrienden en familie te ontvangen of om te spelen. Onder de overkapping kun je altijd droog en comfortabel zitten en dankzij het elektrisch bedienbare zonnescherm, dat vanuit de woonkamer te bedienen is, heb je altijd een prettig plekje in de schaduw.
De woning staat in een woonwijk, aan een rustige weg. Basisschool de Fonkeling, een speeltuin en natuur- en recreatiegebied Herperduin bevinden zich op ongeveer 5 minuten loopafstand. En de dorpskern van Berghem is met ongeveer 5 minuten fietsen te bereiken. Via de N329 (‘De weg van de toekomst’) ben je vanuit het Havikskruid met ongeveer 7 minuten op de snelweg A50 of A59.
Pluspunten
+ Instapklare woning van 173 m2
+ Op de oprit is plaats voor 2 auto’s
+ Grote achtertuin (112 m2) met overkapping
+ Open, lichte woonkeuken met eiland en bargedeelte. (2021)
+ Extra kamer verbonden met de woonkamer, ideaal als speelkamer, hobbyruimte of kantoor
+ Vier ruime slaapkamers, waarvan één met inloopkast
+ Luxe badkamer met bubbelbad, douche, houten wasmeubel met natuurstenen kommen en elektrische vloerverwarming
+ Tweede verdieping als extra slaapkamer of kantoor – met balkon en witgoedaansluitingen
+ Rustige ligging in woonwijk
+ Dorpskern op 5 minuten fietsen en basisschool, speeltuin en natuurgebied op loopafstand
Bijzonderheden
+ CV-ketel met hybride warmtepomp (2023)
+ Energielabel A+
+ Airconditioning (2022)
+ Mechanische ventilatiebox
+ Woning is volledig geïsoleerd (dak, muur en vloer)
+ HR++-glas
+ Vloerverwarming in woonkamer, keuken en hal.
+ Elektrische vloerverwarming op badkamer.
+ Moderne meterkast + glasvezel
+ 12 zonnepanelen (2016)
Aanvaarding
In overleg
Vanuit de ruime entreehal met trapkast, meterkast en toilet loop je de moderne leefkeuken binnen. De houten lichte keuken met granieten blad is voorzien van een eiland met bargedeelte, waar je gezellig kunt ontbijten of een drankje kunt doen terwijl er wordt gekookt.
Verder is de keuken van alle gemakken voorzien: een Quooker-kraan, BORA-inductieplaat, combi-oven, vaatwasser, koelkast en vriezer. Ook aan de wijnliefhebbers is gedacht: de wijnklimaatkast met twee compartimenten zorgt ervoor dat zowel rode als witte wijnen altijd perfect op temperatuur zijn.
Aangrenzend aan de open keuken vind je het eetgedeelte en de ruime woonkamer. Via een houten schuifdeur loop je hier de extra kamer in, die dankzij de (opberg)ruimte ideaal is als speelkamer, hobbyruimte of kantoor. De ruimte is afzonderlijk in temperatuur te regelen, waardoor je hier altijd comfortabel kunt spelen of werken. Door de schuifdeur kun je je ongestoord terugtrekken, maar ook eenvoudig de verbinding met de rest van de woning opzoeken wanneer je dat wilt.
Op de eerste verdieping vind je drie slaapkamers, waarvan eentje met inloopkast. Ook is er op deze verdieping een apart toilet en een luxe badkamer: met houten wasmeubel en stijlvolle natuurstenen waskommen, een bubbelbad, douche en elektrische vloerverwarming.
Met een vaste trap loop je naar de tweede verdieping. Deze ruimte is netjes afgewerkt en kan bijvoorbeeld als slaapkamer of kantoor worden gebruikt. Ook zijn er aansluitingen voor witgoed aanwezig. Via de openslaande deuren stap je zo op het balkon.
Beneden in de achtertuin is er voldoende ruimte om vrienden en familie te ontvangen of om te spelen. Onder de overkapping kun je altijd droog en comfortabel zitten en dankzij het elektrisch bedienbare zonnescherm, dat vanuit de woonkamer te bedienen is, heb je altijd een prettig plekje in de schaduw.
De woning staat in een woonwijk, aan een rustige weg. Basisschool de Fonkeling, een speeltuin en natuur- en recreatiegebied Herperduin bevinden zich op ongeveer 5 minuten loopafstand. En de dorpskern van Berghem is met ongeveer 5 minuten fietsen te bereiken. Via de N329 (‘De weg van de toekomst’) ben je vanuit het Havikskruid met ongeveer 7 minuten op de snelweg A50 of A59.
Pluspunten
+ Instapklare woning van 173 m2
+ Op de oprit is plaats voor 2 auto’s
+ Grote achtertuin (112 m2) met overkapping
+ Open, lichte woonkeuken met eiland en bargedeelte. (2021)
+ Extra kamer verbonden met de woonkamer, ideaal als speelkamer, hobbyruimte of kantoor
+ Vier ruime slaapkamers, waarvan één met inloopkast
+ Luxe badkamer met bubbelbad, douche, houten wasmeubel met natuurstenen kommen en elektrische vloerverwarming
+ Tweede verdieping als extra slaapkamer of kantoor – met balkon en witgoedaansluitingen
+ Rustige ligging in woonwijk
+ Dorpskern op 5 minuten fietsen en basisschool, speeltuin en natuurgebied op loopafstand
Bijzonderheden
+ CV-ketel met hybride warmtepomp (2023)
+ Energielabel A+
+ Airconditioning (2022)
+ Mechanische ventilatiebox
+ Woning is volledig geïsoleerd (dak, muur en vloer)
+ HR++-glas
+ Vloerverwarming in woonkamer, keuken en hal.
+ Elektrische vloerverwarming op badkamer.
+ Moderne meterkast + glasvezel
+ 12 zonnepanelen (2016)
Aanvaarding
In overleg
Lees meer
Minder tonen
Kenmerken
| Overdracht | |
|---|---|
| Prijs: | € 675.000,- k.k. |
| Status: | Beschikbaar |
| Aanvaarding: | In overleg |
| Bouw | |
| type-object: | Woonhuis |
| Type: | Vrijstaande woning |
| Soort: | Eengezinswoning |
| Bouwjaar: | 2011 |
| Oppervlakten en inhoud | |
| Woonoppervlakte: | 173 m2 |
| Perceeloppervlakte: | 259 m2 |
| Inhoud: | 643 m3 |
| Indeling | |
| Kamers: | 6 |
| Slaapkamers: | 4 |
| Energie | |
| Energieklasse: | A+ |
| Isolatievormen: | Dakisolatie, muurisolatie, vloerisolatie, volledig geisoleerd, hr glas |
| Soorten verwarming: | Cv ketel, warmtepomp |
| Soorten warm water: | Cv ketel |
| CV ketel type: | Intergas |
| CV ketel eigendom: | Eigendom |
| Buitenruimte | |
| Tuintypen: | Achtertuin, voortuin, zijtuin |
| Hoofdtuin: | Achtertuin |
| Ligging: | Zuid |
| Achteringang: | Nee |
| Lengte: | 11,81 m |
| Breedte: | 9,47 m |
| Oppervlakte: | 112 m2 |
| Parkeren | |
| Parkeerfaciliteiten: | Openbaar parkeren, op eigen terrein |
| Soorten: | Geen garage |
Interesse?
Voor meer informatie of het plannen van een bezichtiging helpen we je graag verder.
Kan ik deze woning betalen?