Dieden
Poelstraat 5
€ 850.000,- k.k.
Delen
{ if (inProgress) { return; } inProgress = true; favorite ? $store.favorites.delete(identifier, market, address, city, () => { inProgress = false; }): $store.favorites.add(identifier, market, address, city, () => { inProgress = false; }); favorite = !favorite; }"
>
Favoriet
Woning:
174 m2
Perceel: 1240 m2
Slaapkamers: 4
Bouwjaar: 1974
Energielabel: C
Over deze woning
In het Maasdorpje Dieden staat deze karakteristieke boerderij met een schitterend aangelegde, riante tuin. Alles ademt hier landelijke rust en privacy, zeker met de Maas op een steenworp afstand. In deze rustieke omgeving combineert de bijzondere woning de warme sfeer van een traditionele boerderij met al het comfort van eigentijds wonen.
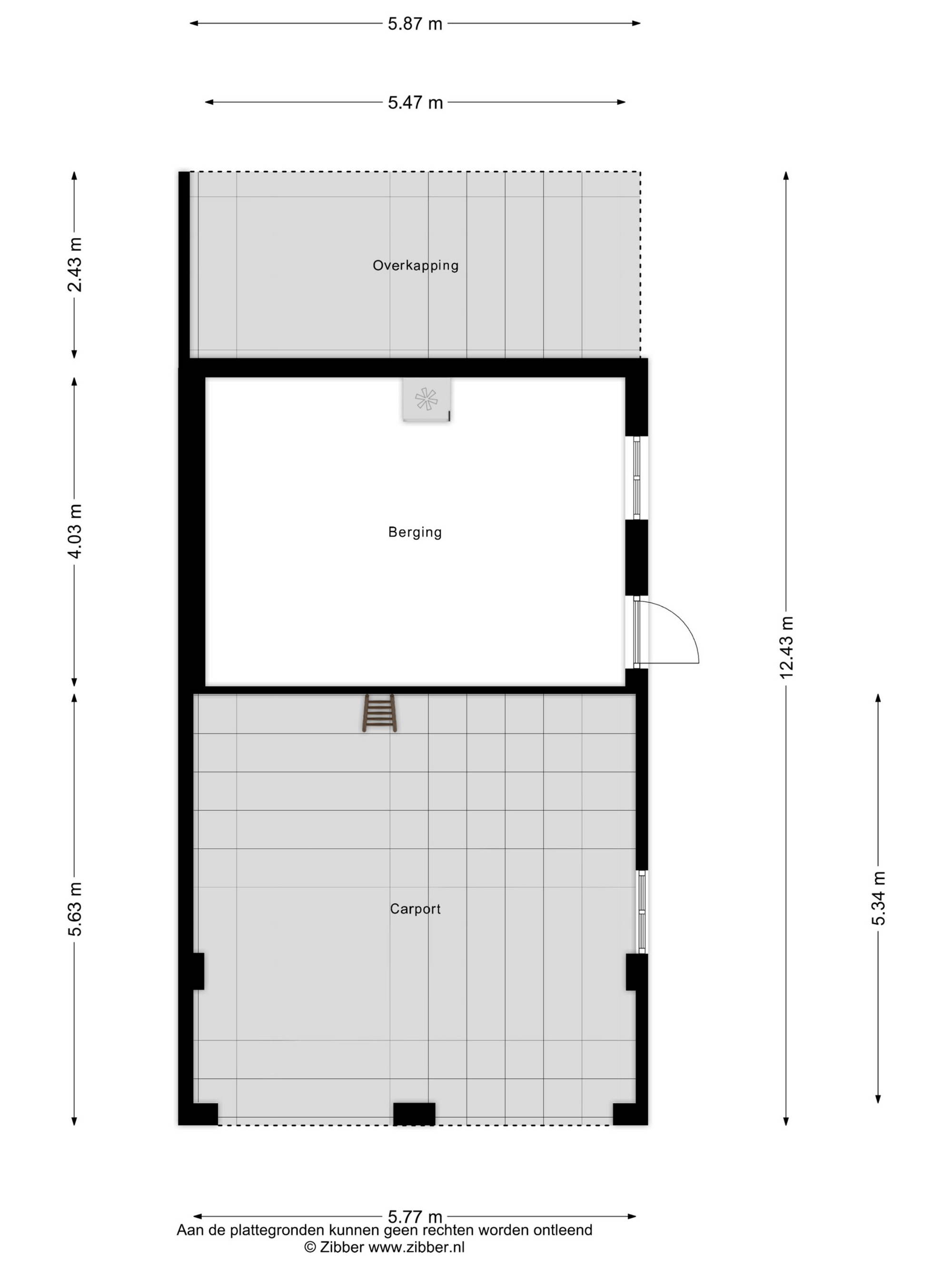
Dat aangename woongevoel begint als op het ruime erf met de immense achtertuin. Die tuin is een waar pronkstuk, ontworpen met gevoel voor sfeer en variatie. De glooiende gazons, kleurrijke borders, oude bomen, hagen en terrassen wisselen elkaar fraai af. Een sierlijke vijver, een authentieke waterput en het weidse uitzicht versterken het landelijke karakter. Daarnaast biedt de oprit plaats aan meerdere auto’s. Vervolgens leidt het tuinpad naar een groot vrijstaand bijgebouw met dubbele carport, bergzolder en aparte berging.
Als je vervolgens de woonboerderij binnengaat, maakt de hal meteen indruk. De mooie en representatieve afwerking is meteen overduidelijk. Maar ook de ruimtelijke opzet valt op, want er is een open verbinding met de woonkamer. Ook de tegelvloer loopt door in de woonkamer, keuken, bijkeuken en gang, waardoor het geheel eenheid en rust uitstraalt.
De woonkamer heeft een rustieke, lichte uitstraling. Dankzij ramen aan drie zijden geniet je hier van veel daglicht en uitkijk in de tuin. Het zichtbare gebinte in het plafond herinnert aan het oorspronkelijke karakter van de boerderij. Het halfopen kookgedeelte, voorzien van moderne apparatuur, sluit hier vervolgens perfect op aan.
Door de twee slaapkamers, badkamer en apart toilet op de begane grond is de woning zeer levensloopbestendig. Daarbij heb je op de verdieping nog de beschikking over twee slaapkamers en een groot, multifunctioneel gedeelte met brede dakkapel, houten vloer en drie vaste kasten. Deze royale ruimte leent zich uitstekend voor gebruik als hobbykamer, werkplek of extra zitkamer.
Kortom, deze woonboerderij aan de Poelstraat 5 in Dieden biedt een sfeervolle woonplek voor wie houdt van rust, ruimte, vrijheid en karakter. Een charmante, goed onderhouden woning met een tuin als een prachtig landschap.
Pluspunten
+ Parkeren op eigen oprit met plaats voor meerdere auto's en in de dubbele carport in het vrijstaande bijgebouw met toegang tot een bergzolder.
+ Via pad in laag omhaagde voortuin, binnenkomst in de representatieve hal met de garderobe, meterkast, trap en open doorgang naar de woonkamer. In een aansluitende gang zijn de toegangsdeuren van de toiletruimte, badkamer en twee slaapkamers. In de hal en gang ligt een tegelvloer die verder gaat in het gehele woongedeelte.
+ De woonkamer heeft een rustieke, lichte uitstraling en vensters aan drie zijden. De lichte tinten van het plafond, wanden en tegelvloer versterken dit karakter. Heel fraai zichtbaar zijn de delen van het gebint in het plafond.
In een sfeervolle schouw met schoonmetselwerk is een houtkachel geplaatst. Openslaande deuren geven een fijne verbinding met de tuin.
+ In het halfopen kookgedeelte staat een keukenblok in U-opstelling. Het is voorzien van een 4-pits-inductiekookplaat, afzuigkap, combi-oven, koelkast en vaatwasser.
+ In de bijkeuken is plaats voor de wasmachine, droger en ander witgoed. Buitendeur komt uit in de achtertuin. In de aansluitende berging is de HR-combiketel geïnstalleerd.
+ Het slaapgedeelte op de begane grond bestaat uit twee slaapkamers, een badkamer en aparte toiletruimte. De slaapkamers zijn royaal en licht en hebben spachtelputz wanden.
+ Complete badkamer is geheel betegeld en uitgevoerd met spotverlichting, een ligbad, inloopdouche met hand- en regendouche en badkamermeubel. De aparte toiletruimte is geheel betegeld en bevat een hoog geplaatst klapraam, wandtoilet en fonteintje.
+ De twee slaapkamers op de verdieping hebben prima afmetingen en een fijne lichtinval. In het riante, andere deel van de verdieping zorgt een dakkapel voor extra licht en ruimte. Hier ligt een houten vloer en bevinden zich drie vaste kasten.
+ De imposante achtertuin is schitterend vormgeven en biedt veel vrijheid, ruimte en privacy. Glooiende gazongedeelten, weelderig beplante perken en borders, verschillende terrassen, hagen, bomen, een sierlijke vijver en een echte put vormen een bijzonder sfeervol geheel. In de tuin staat een stenen berging. Er is ook toegang tot een aparte berging in het vrijstaande bijgebouw.
Bijzonderheden
+ Energielabel C.
+ Nefit HR-combiketel (2020).
+ Dakisolatie en dubbel glas begane grond.
+ Glasvezel.
Aanvaarding
In nader overleg.
Dat aangename woongevoel begint als op het ruime erf met de immense achtertuin. Die tuin is een waar pronkstuk, ontworpen met gevoel voor sfeer en variatie. De glooiende gazons, kleurrijke borders, oude bomen, hagen en terrassen wisselen elkaar fraai af. Een sierlijke vijver, een authentieke waterput en het weidse uitzicht versterken het landelijke karakter. Daarnaast biedt de oprit plaats aan meerdere auto’s. Vervolgens leidt het tuinpad naar een groot vrijstaand bijgebouw met dubbele carport, bergzolder en aparte berging.
Als je vervolgens de woonboerderij binnengaat, maakt de hal meteen indruk. De mooie en representatieve afwerking is meteen overduidelijk. Maar ook de ruimtelijke opzet valt op, want er is een open verbinding met de woonkamer. Ook de tegelvloer loopt door in de woonkamer, keuken, bijkeuken en gang, waardoor het geheel eenheid en rust uitstraalt.
De woonkamer heeft een rustieke, lichte uitstraling. Dankzij ramen aan drie zijden geniet je hier van veel daglicht en uitkijk in de tuin. Het zichtbare gebinte in het plafond herinnert aan het oorspronkelijke karakter van de boerderij. Het halfopen kookgedeelte, voorzien van moderne apparatuur, sluit hier vervolgens perfect op aan.
Door de twee slaapkamers, badkamer en apart toilet op de begane grond is de woning zeer levensloopbestendig. Daarbij heb je op de verdieping nog de beschikking over twee slaapkamers en een groot, multifunctioneel gedeelte met brede dakkapel, houten vloer en drie vaste kasten. Deze royale ruimte leent zich uitstekend voor gebruik als hobbykamer, werkplek of extra zitkamer.
Kortom, deze woonboerderij aan de Poelstraat 5 in Dieden biedt een sfeervolle woonplek voor wie houdt van rust, ruimte, vrijheid en karakter. Een charmante, goed onderhouden woning met een tuin als een prachtig landschap.
Pluspunten
+ Parkeren op eigen oprit met plaats voor meerdere auto's en in de dubbele carport in het vrijstaande bijgebouw met toegang tot een bergzolder.
+ Via pad in laag omhaagde voortuin, binnenkomst in de representatieve hal met de garderobe, meterkast, trap en open doorgang naar de woonkamer. In een aansluitende gang zijn de toegangsdeuren van de toiletruimte, badkamer en twee slaapkamers. In de hal en gang ligt een tegelvloer die verder gaat in het gehele woongedeelte.
+ De woonkamer heeft een rustieke, lichte uitstraling en vensters aan drie zijden. De lichte tinten van het plafond, wanden en tegelvloer versterken dit karakter. Heel fraai zichtbaar zijn de delen van het gebint in het plafond.
In een sfeervolle schouw met schoonmetselwerk is een houtkachel geplaatst. Openslaande deuren geven een fijne verbinding met de tuin.
+ In het halfopen kookgedeelte staat een keukenblok in U-opstelling. Het is voorzien van een 4-pits-inductiekookplaat, afzuigkap, combi-oven, koelkast en vaatwasser.
+ In de bijkeuken is plaats voor de wasmachine, droger en ander witgoed. Buitendeur komt uit in de achtertuin. In de aansluitende berging is de HR-combiketel geïnstalleerd.
+ Het slaapgedeelte op de begane grond bestaat uit twee slaapkamers, een badkamer en aparte toiletruimte. De slaapkamers zijn royaal en licht en hebben spachtelputz wanden.
+ Complete badkamer is geheel betegeld en uitgevoerd met spotverlichting, een ligbad, inloopdouche met hand- en regendouche en badkamermeubel. De aparte toiletruimte is geheel betegeld en bevat een hoog geplaatst klapraam, wandtoilet en fonteintje.
+ De twee slaapkamers op de verdieping hebben prima afmetingen en een fijne lichtinval. In het riante, andere deel van de verdieping zorgt een dakkapel voor extra licht en ruimte. Hier ligt een houten vloer en bevinden zich drie vaste kasten.
+ De imposante achtertuin is schitterend vormgeven en biedt veel vrijheid, ruimte en privacy. Glooiende gazongedeelten, weelderig beplante perken en borders, verschillende terrassen, hagen, bomen, een sierlijke vijver en een echte put vormen een bijzonder sfeervol geheel. In de tuin staat een stenen berging. Er is ook toegang tot een aparte berging in het vrijstaande bijgebouw.
Bijzonderheden
+ Energielabel C.
+ Nefit HR-combiketel (2020).
+ Dakisolatie en dubbel glas begane grond.
+ Glasvezel.
Aanvaarding
In nader overleg.
Lees meer
Minder tonen
Kenmerken
Overdracht | |
---|---|
Prijs: | € 850.000,- k.k. |
Status: | Beschikbaar |
Aanvaarding: | In overleg |
Bouw | |
type-object: | Woonhuis |
Type: | Vrijstaande woning |
Soort: | Woonboerderij |
Bouwjaar: | 1974 |
Oppervlakten en inhoud | |
Woonoppervlakte: | 174 m2 |
Perceeloppervlakte: | 1240 m2 |
Inhoud: | 646 m3 |
Indeling | |
Kamers: | 5 |
Slaapkamers: | 4 |
Energie | |
Energieklasse: | C |
Isolatievormen: | Dakisolatie, grotendeels dubbelglas |
Soorten verwarming: | Cv ketel |
Soorten warm water: | Cv ketel |
CV ketel type: | Nefit |
CV ketel eigendom: | Eigendom |
Buitenruimte | |
Tuintypen: | Tuin rondom |
Hoofdtuin: | Tuin rondom |
Achteringang: | Ja |
Lengte: | 0,00 m |
Breedte: | 0,00 m |
Parkeren | |
Parkeerfaciliteiten: | Openbaar parkeren, op eigen terrein |
Soorten: | Vrijstaand steen, carport, parkeerplaats |
Capaciteit: | 2 |
Interesse?
Voor meer informatie of het plannen van een bezichtiging helpen we je graag verder.
Kan ik deze woning betalen?