Erp
Kraanmeer 3
€ 695.000,- k.k.
Delen
{ if (inProgress) { return; } inProgress = true; favorite ? $store.favorites.delete(identifier, market, address, city, () => { inProgress = false; }): $store.favorites.add(identifier, market, address, city, () => { inProgress = false; }); favorite = !favorite; }"
>
Favoriet
Woning:
219 m2
Perceel: 3712 m2
Slaapkamers: 5
Bouwjaar: 1998
Energielabel: A
Over deze woning
Dit is landelijk wonen op zijn best! Deze zeer ruime halve woonboerderij staat op een perceel van meer dan 3700 m2 en biedt zeeën van mogelijkheden. Met een slaapkamer en badkamer op de begane grond is de woning levensloopbestendig. Zowel Uden als Erp zijn binnen 10 autominuten bereikbaar; hier vind je alle winkels, horecagelegenheden en voorzieningen die je maar kunt wensen.
Het aanzicht van deze woonboerderij, met de uitstekend verzorgde tuin rondom het huis, is absoluut charmant te noemen. Op de lange oprit met extra parkeerplaatsen is plek voor meerdere voertuigen. De hal waarin je binnenkomt is karakteristiek dankzij de bakstenen muren en hardhouten trap.
Vervolgens loop je door naar de gezellige en royale woonkeuken, het hart van het huis! De keuken is uitgerust met een keramische kookplaat, afzuigkap, combimagnetron, koelkast en vaatwasser. Dankzij de vele kasten en lades kun je al je keukenspullen, servies en voorraad kwijt. Ook is er in de keuken ruimte voor een grote eettafel, waar je met het hele gezin aan kunt zitten.
De L-vormige woonkamer met warme houten vloer is bijzonder ruim en biedt daardoor veel mogelijkheden. Een knusse zithoek, grote eettafel, speelhoek, werkruimte: het kan allemaal! Door meerdere ramen aan twee zijden stroomt er veel natuurlijk licht binnen. De woonkamer en de keuken zijn ook voorzien van vloerverwarming, voor extra comfort in koude dagen.
Op de begane grond is nog een zeer ruime slaapkamer en een royale badkamer met wastafel, douche, toilet en ligbad. De woning is dus al levensloopbestendig. Deze ruimtes bieden ook volop mogelijkheden om een werkruimte of praktijk aan huis te creëren. Ten slotte is er nog een apart toilet en praktische bijkeuken met witgoedaansluitingen op deze verdieping.
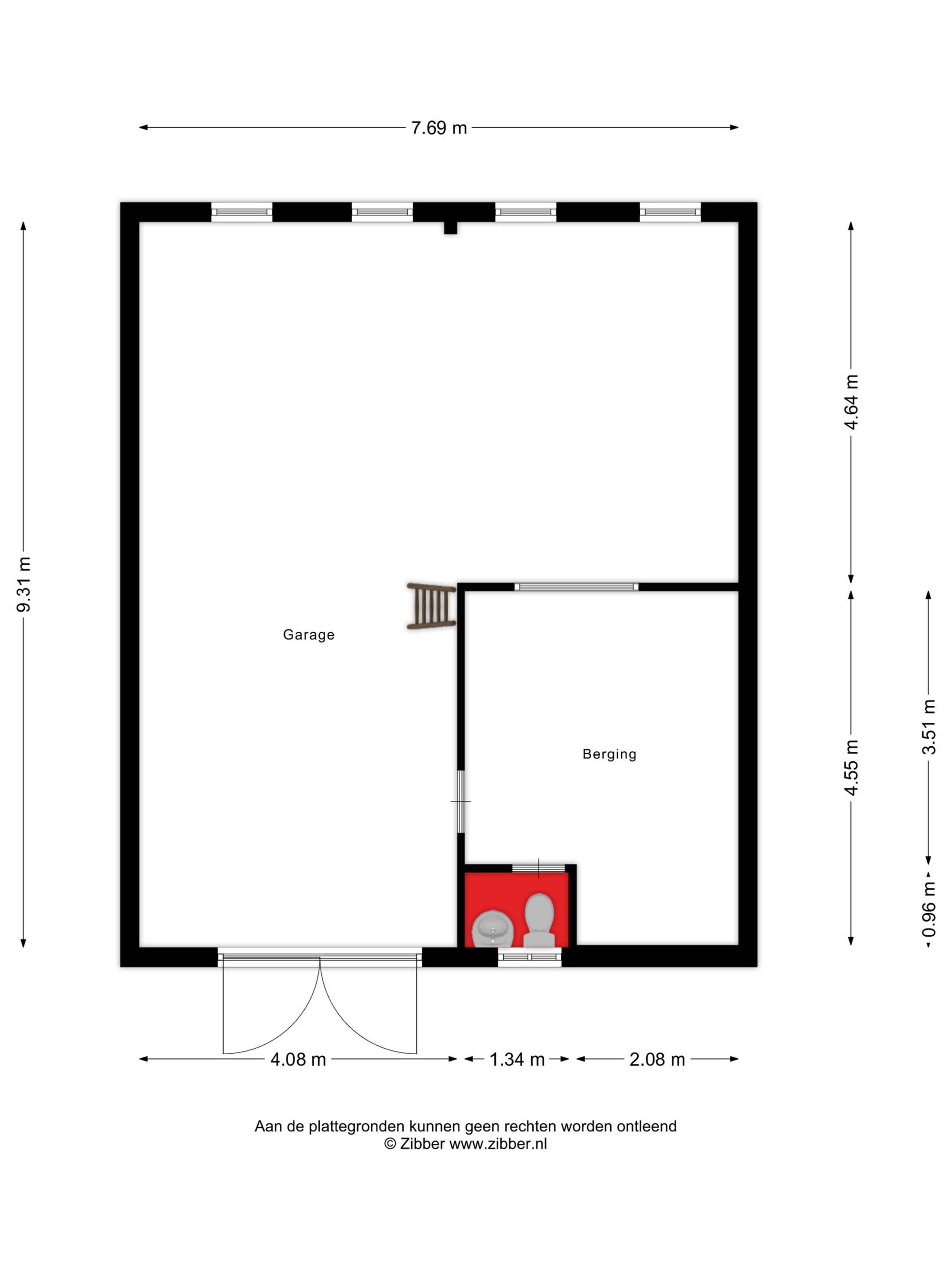
De buitenruimte is absoluut het hoogtepunt van deze woonboerderij. Met meer dan 3700 m2 heb je hier alle ruimte om je tuindromen waar te maken. De tuin rondom en achter de woning is prachtig aangelegd met een terras, grote graspartij, borders met beplanting en een speels pad dat naar de overkapping leidt. Bij het huis hoort ook een royaal weiland, dat zeer geschikt is om dieren aan huis te houden. Als laatste staat er een fijne en zeer ruime garage op het perceel, die veel mogelijkheden biedt voor hobby’s, klussen en het opbergen van spullen.
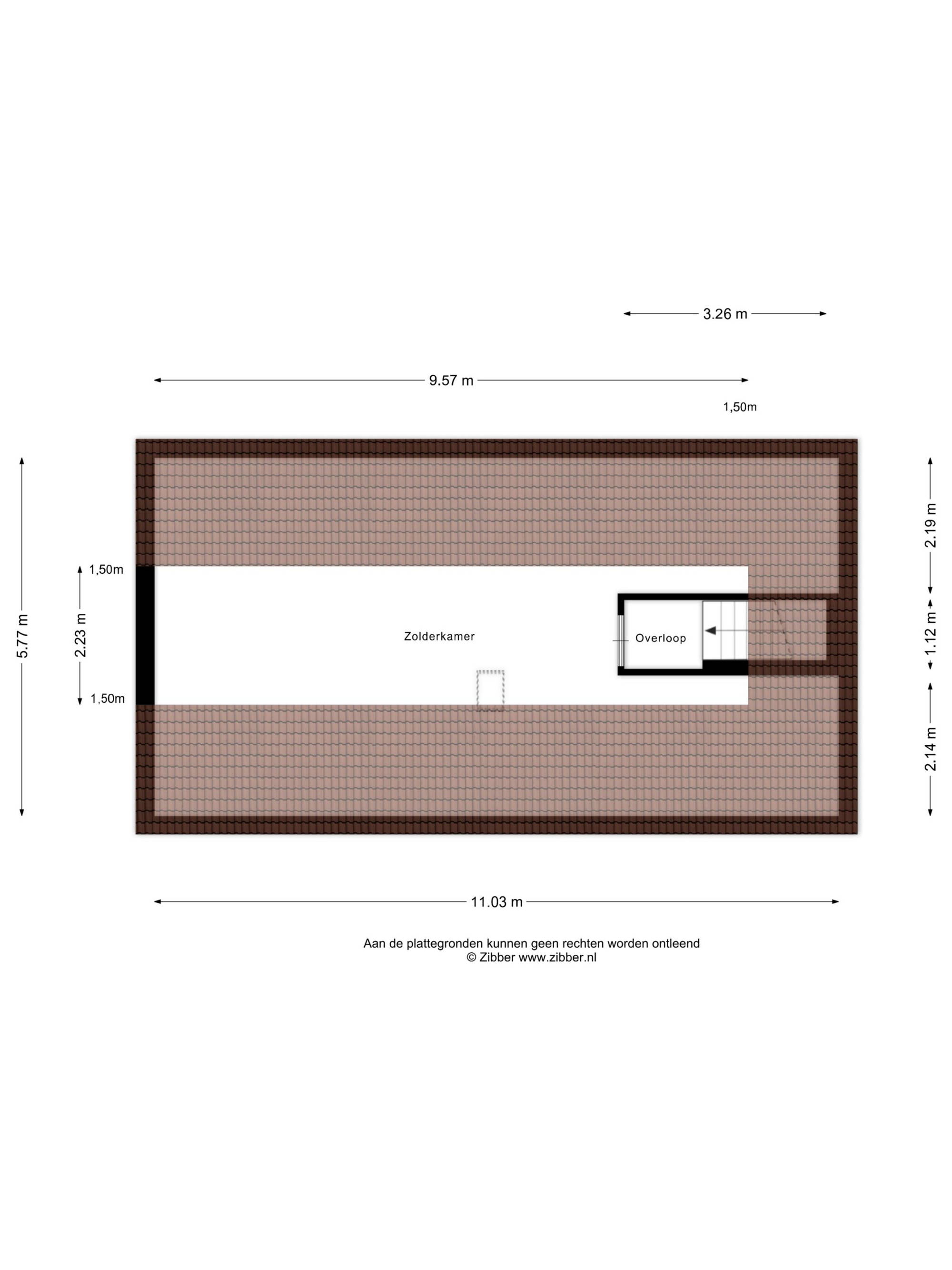
De eerste verdieping van dit authentieke huis telt vier slaapkamers met ruime afmetingen. Er is ook een ruimte met een wastafel en toilet, waar al aansluitingen zijn om een complete badkamer te realiseren. Als je nog een trap naar boven neemt, kom je op de zolder. Een ideale ruimte voor het opbergen van spullen die je niet vaak gebruik. Aan ruimte zeker geen gebrek in dit huis!
Wil jij graag landelijk wonen in een karakteristieke woning met zeer veel mogelijkheden om al je woonwensen waar te maken? Kom dan zeker een kijkje nemen bij deze unieke woonboerderij.
Pluspunten:
- Landelijk gelegen royale halve woonboerderij
- Op minder dan 10 autominuten van Uden en Erp
- Riante benedenverdieping met slaap-en badkamer
- Vier slaapkamers en mogelijkheid tot het aanleggen van een badkamer op de eerste verdieping
- Groot perceel van meer dan 3700 m2
- Prachtig aangelegde tuin met sproei installatie
- Royaal weiland voor het houden van dieren aan huis
- Grote vrijstaande garage in de tuin
- Veel mogelijkheden om het huis helemaal naar wens aan te passen
Het aanzicht van deze woonboerderij, met de uitstekend verzorgde tuin rondom het huis, is absoluut charmant te noemen. Op de lange oprit met extra parkeerplaatsen is plek voor meerdere voertuigen. De hal waarin je binnenkomt is karakteristiek dankzij de bakstenen muren en hardhouten trap.
Vervolgens loop je door naar de gezellige en royale woonkeuken, het hart van het huis! De keuken is uitgerust met een keramische kookplaat, afzuigkap, combimagnetron, koelkast en vaatwasser. Dankzij de vele kasten en lades kun je al je keukenspullen, servies en voorraad kwijt. Ook is er in de keuken ruimte voor een grote eettafel, waar je met het hele gezin aan kunt zitten.
De L-vormige woonkamer met warme houten vloer is bijzonder ruim en biedt daardoor veel mogelijkheden. Een knusse zithoek, grote eettafel, speelhoek, werkruimte: het kan allemaal! Door meerdere ramen aan twee zijden stroomt er veel natuurlijk licht binnen. De woonkamer en de keuken zijn ook voorzien van vloerverwarming, voor extra comfort in koude dagen.
Op de begane grond is nog een zeer ruime slaapkamer en een royale badkamer met wastafel, douche, toilet en ligbad. De woning is dus al levensloopbestendig. Deze ruimtes bieden ook volop mogelijkheden om een werkruimte of praktijk aan huis te creëren. Ten slotte is er nog een apart toilet en praktische bijkeuken met witgoedaansluitingen op deze verdieping.
De buitenruimte is absoluut het hoogtepunt van deze woonboerderij. Met meer dan 3700 m2 heb je hier alle ruimte om je tuindromen waar te maken. De tuin rondom en achter de woning is prachtig aangelegd met een terras, grote graspartij, borders met beplanting en een speels pad dat naar de overkapping leidt. Bij het huis hoort ook een royaal weiland, dat zeer geschikt is om dieren aan huis te houden. Als laatste staat er een fijne en zeer ruime garage op het perceel, die veel mogelijkheden biedt voor hobby’s, klussen en het opbergen van spullen.
De eerste verdieping van dit authentieke huis telt vier slaapkamers met ruime afmetingen. Er is ook een ruimte met een wastafel en toilet, waar al aansluitingen zijn om een complete badkamer te realiseren. Als je nog een trap naar boven neemt, kom je op de zolder. Een ideale ruimte voor het opbergen van spullen die je niet vaak gebruik. Aan ruimte zeker geen gebrek in dit huis!
Wil jij graag landelijk wonen in een karakteristieke woning met zeer veel mogelijkheden om al je woonwensen waar te maken? Kom dan zeker een kijkje nemen bij deze unieke woonboerderij.
Pluspunten:
- Landelijk gelegen royale halve woonboerderij
- Op minder dan 10 autominuten van Uden en Erp
- Riante benedenverdieping met slaap-en badkamer
- Vier slaapkamers en mogelijkheid tot het aanleggen van een badkamer op de eerste verdieping
- Groot perceel van meer dan 3700 m2
- Prachtig aangelegde tuin met sproei installatie
- Royaal weiland voor het houden van dieren aan huis
- Grote vrijstaande garage in de tuin
- Veel mogelijkheden om het huis helemaal naar wens aan te passen
Lees meer
Minder tonen
Kenmerken
| Overdracht | |
|---|---|
| Prijs: | € 695.000,- k.k. |
| Status: | Beschikbaar |
| Aanvaarding: | In overleg |
| Bouw | |
| type-object: | Woonhuis |
| Type: | Twee onder een kapwoning |
| Soort: | Woonboerderij |
| Bouwjaar: | 1998 |
| Oppervlakten en inhoud | |
| Woonoppervlakte: | 219 m2 |
| Perceeloppervlakte: | 3712 m2 |
| Inhoud: | 851 m3 |
| Indeling | |
| Kamers: | 8 |
| Slaapkamers: | 5 |
| Energie | |
| Energieklasse: | A |
| Isolatievormen: | Dakisolatie, muurisolatie, vloerisolatie, hr glas |
| Soorten verwarming: | Cv ketel |
| Soorten warm water: | Cv ketel |
| CV ketel type: | Nefit |
| CV ketel eigendom: | Eigendom |
| Buitenruimte | |
| Tuintypen: | Tuin rondom |
| Hoofdtuin: | Tuin rondom |
| Achteringang: | Ja |
| Lengte: | 0,00 m |
| Breedte: | 0,00 m |
| Parkeren | |
| Parkeerfaciliteiten: | Op eigen terrein |
| Soorten: | Vrijstaand steen |
| Capaciteit: | 1 |
Interesse?
Voor meer informatie of het plannen van een bezichtiging helpen we je graag verder.
Kan ik deze woning betalen?