Geffen
Den Herd 29
€ 475.000,- k.k.
Delen
{ if (inProgress) { return; } inProgress = true; favorite ? $store.favorites.delete(identifier, market, address, city, () => { inProgress = false; }): $store.favorites.add(identifier, market, address, city, () => { inProgress = false; }); favorite = !favorite; }"
>
Favoriet
Woning:
135 m2
Perceel: 155 m2
Slaapkamers: 5
Bouwjaar: 2016
Energielabel: A
Over deze woning
Een fijne plek waar ruimte, comfort en een jong bouwjaar samenkomen: dat is precies wat je in deze gezinswoning vindt. De instapklare woning met energielabel A biedt vier slaapkamers, een moderne afwerking en een uitgebouwde woonkamer met vloerverwarming. Dankzij de dakkapel op de tweede verdieping en de royale kamers op elke etage is dit een huis dat meegroeit met je gezin, je werk of je woonwensen. Het keurige onderhoud en de slimme indeling maken dit een woning waar je meteen voelt dat alles klopt.
Zo zijn de keuken en badkamer modern uitgevoerd en van alle gemakken voorzien. De woonkamer is heerlijk licht door de grote raampartijen en door de uitbouw profiteer je van extra leefruimte. In de onderhoudsvriendelijke achtertuin kun je heerlijk genieten van het buitenleven. Daarnaast kent de woning fijne extra’s zoals vloerverwarming en rolluiken.
De woning ligt in een rustige, kindvriendelijke buurt met alle nodige voorzieningen binnen handbereik. Van een basisschool, kinderdagverblijf en speeltuin tot een supermarkt, winkels en diverse sportverenigingen. Ook meerdere natuurgebieden liggen om de hoek, zoals de Geffense Plas. Tenslotte ben je met de auto in mum van tijd bij de opritten van de A59 of met de fiets bij de snelfietsroute F59, beide richting Oss of ’s-Hertogenbosch.
Pluspunten
+ Parkeren doe je gemakkelijk voor de deur.
+ De hal geeft toegang tot een moderne toiletruimte met toilet en fonteintje, de meterkast met glasvezel en een inbouwkast met de Intergas cv-ketel (2016).
+ De uitgebouwde woonkamer is erg ruim en voorzien van een stijlvolle plafondomlijsting, plavuizenvloer met vloerverwarming, elektrische haard en openslaande deuren naar de achtertuin.
+ Ook de open keuken is stijlvol afgewerkt en compleet ingericht met een 5-pitsfornuis, afzuigkap, combimagnetron, ingebouwde koffiemachine, vaatwasser en koelkast. Ook is er een praktische voorraadkast aanwezig.
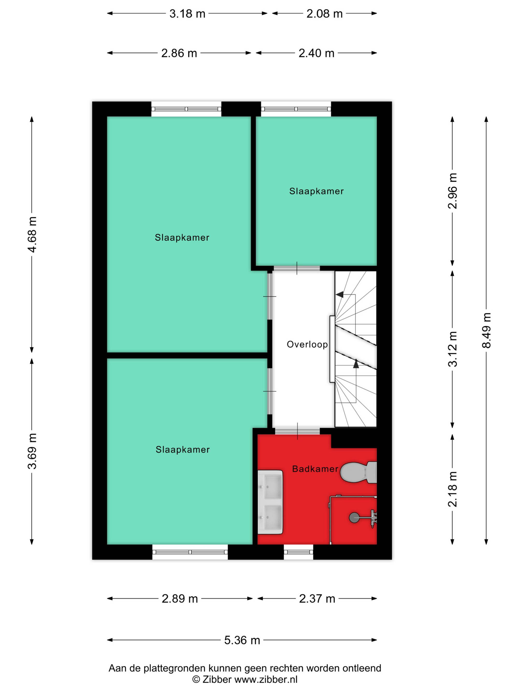
+ De eerste verdieping bestaat uit de overloop, de badkamer en drie royale slaapkamers met laminaatvloer, spachtelputz wanden en rolluiken.
+ De volledig betegelde badkamer is uitgerust met een inloopdouche, badkamermeubel met dubbele wastafel, toilet en een raam voor daglicht en ventilatie. Ook hier vind je rolluiken.
+ De tweede verdieping is met een vaste trap bereikbaar. Dankzij de dakkapel zijn hier twee volwaardige kamers gecreëerd. Ook vind je hier de witgoedaansluitingen.
+ De onderhoudsvriendelijke achtertuin is voorzien van een vlonderterras, kunstgras, directe achterom en houten berging voor fietsen en extra opslag.
Bijzonderheden
+ De woning is volledig geïsoleerd met dak-, muur- en vloerisolatie en dubbel glas.
+ De woning beschikt over energielabel A.
+ De woning is voorzien van zowel vloerverwarming als rolluiken wat beide zorgt voor extra comfort.
Aanvaarding
In nader overleg.
Zo zijn de keuken en badkamer modern uitgevoerd en van alle gemakken voorzien. De woonkamer is heerlijk licht door de grote raampartijen en door de uitbouw profiteer je van extra leefruimte. In de onderhoudsvriendelijke achtertuin kun je heerlijk genieten van het buitenleven. Daarnaast kent de woning fijne extra’s zoals vloerverwarming en rolluiken.
De woning ligt in een rustige, kindvriendelijke buurt met alle nodige voorzieningen binnen handbereik. Van een basisschool, kinderdagverblijf en speeltuin tot een supermarkt, winkels en diverse sportverenigingen. Ook meerdere natuurgebieden liggen om de hoek, zoals de Geffense Plas. Tenslotte ben je met de auto in mum van tijd bij de opritten van de A59 of met de fiets bij de snelfietsroute F59, beide richting Oss of ’s-Hertogenbosch.
Pluspunten
+ Parkeren doe je gemakkelijk voor de deur.
+ De hal geeft toegang tot een moderne toiletruimte met toilet en fonteintje, de meterkast met glasvezel en een inbouwkast met de Intergas cv-ketel (2016).
+ De uitgebouwde woonkamer is erg ruim en voorzien van een stijlvolle plafondomlijsting, plavuizenvloer met vloerverwarming, elektrische haard en openslaande deuren naar de achtertuin.
+ Ook de open keuken is stijlvol afgewerkt en compleet ingericht met een 5-pitsfornuis, afzuigkap, combimagnetron, ingebouwde koffiemachine, vaatwasser en koelkast. Ook is er een praktische voorraadkast aanwezig.
+ De eerste verdieping bestaat uit de overloop, de badkamer en drie royale slaapkamers met laminaatvloer, spachtelputz wanden en rolluiken.
+ De volledig betegelde badkamer is uitgerust met een inloopdouche, badkamermeubel met dubbele wastafel, toilet en een raam voor daglicht en ventilatie. Ook hier vind je rolluiken.
+ De tweede verdieping is met een vaste trap bereikbaar. Dankzij de dakkapel zijn hier twee volwaardige kamers gecreëerd. Ook vind je hier de witgoedaansluitingen.
+ De onderhoudsvriendelijke achtertuin is voorzien van een vlonderterras, kunstgras, directe achterom en houten berging voor fietsen en extra opslag.
Bijzonderheden
+ De woning is volledig geïsoleerd met dak-, muur- en vloerisolatie en dubbel glas.
+ De woning beschikt over energielabel A.
+ De woning is voorzien van zowel vloerverwarming als rolluiken wat beide zorgt voor extra comfort.
Aanvaarding
In nader overleg.
Lees meer
Minder tonen
Kenmerken
| Overdracht | |
|---|---|
| Prijs: | € 475.000,- k.k. |
| Status: | Verkocht onder voorbehoud |
| Aanvaarding: | In overleg |
| Bouw | |
| type-object: | Woonhuis |
| Type: | Tussenwoning |
| Soort: | Eengezinswoning |
| Bouwjaar: | 2016 |
| Oppervlakten en inhoud | |
| Woonoppervlakte: | 135 m2 |
| Perceeloppervlakte: | 155 m2 |
| Inhoud: | 479 m3 |
| Indeling | |
| Kamers: | 6 |
| Slaapkamers: | 5 |
| Energie | |
| Energieklasse: | A |
| Isolatievormen: | Dakisolatie, muurisolatie, vloerisolatie, dubbel glas, volledig geisoleerd |
| Soorten verwarming: | Cv ketel |
| Soorten warm water: | Cv ketel |
| CV ketel type: | Intergas |
| CV ketel eigendom: | Eigendom |
| Buitenruimte | |
| Tuintypen: | Achtertuin, voortuin |
| Hoofdtuin: | Achtertuin |
| Ligging: | Noordoost |
| Achteringang: | Nee |
| Lengte: | 10,13 m |
| Breedte: | 5,66 m |
| Oppervlakte: | 57 m2 |
| Parkeren | |
| Parkeerfaciliteiten: | Openbaar parkeren |
| Soorten: | Geen garage |
Interesse?
Voor meer informatie of het plannen van een bezichtiging helpen we je graag verder.
Kan ik deze woning betalen?