Geffen
Willibrordusstraat 5A
€ 550.000,- k.k.
Delen
{ if (inProgress) { return; } inProgress = true; favorite ? $store.favorites.delete(identifier, market, address, city, () => { inProgress = false; }): $store.favorites.add(identifier, market, address, city, () => { inProgress = false; }); favorite = !favorite; }"
>
Favoriet
Woning:
158 m2
Perceel: 305 m2
Slaapkamers: 4
Bouwjaar: 1991
Energielabel: B
Over deze woning
Royaal wonen in het hart van Geffen met volop comfort en luxe voorzieningen!
Deze uitstekend onderhouden twee-onder-een-kapwoning biedt een zee aan ruimte, comfort en een hoogwaardige afwerking. De woning beschikt over een royale woonkamer met erker, een ruime woonkeuken met luxe inbouwapparatuur, een praktische bijkeuken, een verwarmde inpandige garage en vier volwaardige slaapkamers. Tussen de woonkamer en de keuken bevindt zich een schuifdeur, waarmee je eenvoudig kunt kiezen voor een open leefruimte of juist meer afzondering creëert – ideaal voor gezellige etentjes of rustige avonden. Dankzij de ruime indeling is dit een ideale gezinswoning waarin je moeiteloos ontspanning, werk en het gezinsleven combineert.
Met drie riante slaapkamers op de eerste verdieping, een luxe badkamer én een vierde slaapkamer op de zolderverdieping biedt deze woning volop mogelijkheden. Ook de moderne badkamer is compleet uitgerust met ligbad en inloopdouche. De achtertuin met twee overkappingen en een berging is een fijne en beschutte plek om tot rust te komen. Daarbij is de woning goed geïsoleerd wat resulteert in energielabel B én comfortabel wonen.
Ook de ligging van de woning is ideaal te noemen. Op loopafstand vind je alle dagelijkse voorzieningen zoals een basisschool, kinderdagverblijf, speeltuin, supermarkt, winkels en sportverenigingen. Ook voor natuurliefhebbers is dit een uitstekende plek, met onder andere de Geffense Plas vlakbij. De centrale ligging zorgt ervoor dat je met de auto snel op de A59 zit richting Oss of ’s-Hertogenbosch, of met de fiets gemakkelijk gebruikmaakt van de snelfietsroute F59.
Pluspunten
+ Parkeren doe je gemakkelijk op eigen oprit.
+ De ruime entree beschikt over de meterkast, een garderobenis, de toiletruimte met wandtoilet en fonteintje (2015) en de trap naar boven.
+ De L-vormige woonkamer met erker is fraai afgewerkt met spachtelputz wanden, een schuurplafond en sierlijsten. Er is met gemak ruimte voor twee royale zithoeken.
+ De uitgebouwde woonkeuken is zeer ruim en luxe uitgevoerd met een granieten werkblad, 5-pits keramische kookplaat met wokbrander, afzuigkap, oven, combi-oven, koelkast, vaatwasser en een Quooker kokendwaterkraan. De tuingerichte keuken heeft daarnaast openslaande deuren naar de achtertuin.
+ In de bijkeuken bevindt zich een extra keukenblok met een tweede koelkast en de witgoedaansluitingen.
+ De inpandige garage is verwarmd en beschikt over een praktische kastenwand, een vliering, nieuwe garagedeuren en een extra loopdeur.
+ De eerste verdieping bestaat uit de overloop, een moderne badkamer en drie ruim opgezette slaapkamers, die allemaal zijn afgewerkt met strak spuitwerk op zowel de wanden als plafonds.
+ De badkamer is luxe afgewerkt en beschikt over een ligbad, ruime inloopdouche, wandtoilet, badkamermeubel met wastafel, designradiator en comfortabele vloerverwarming.
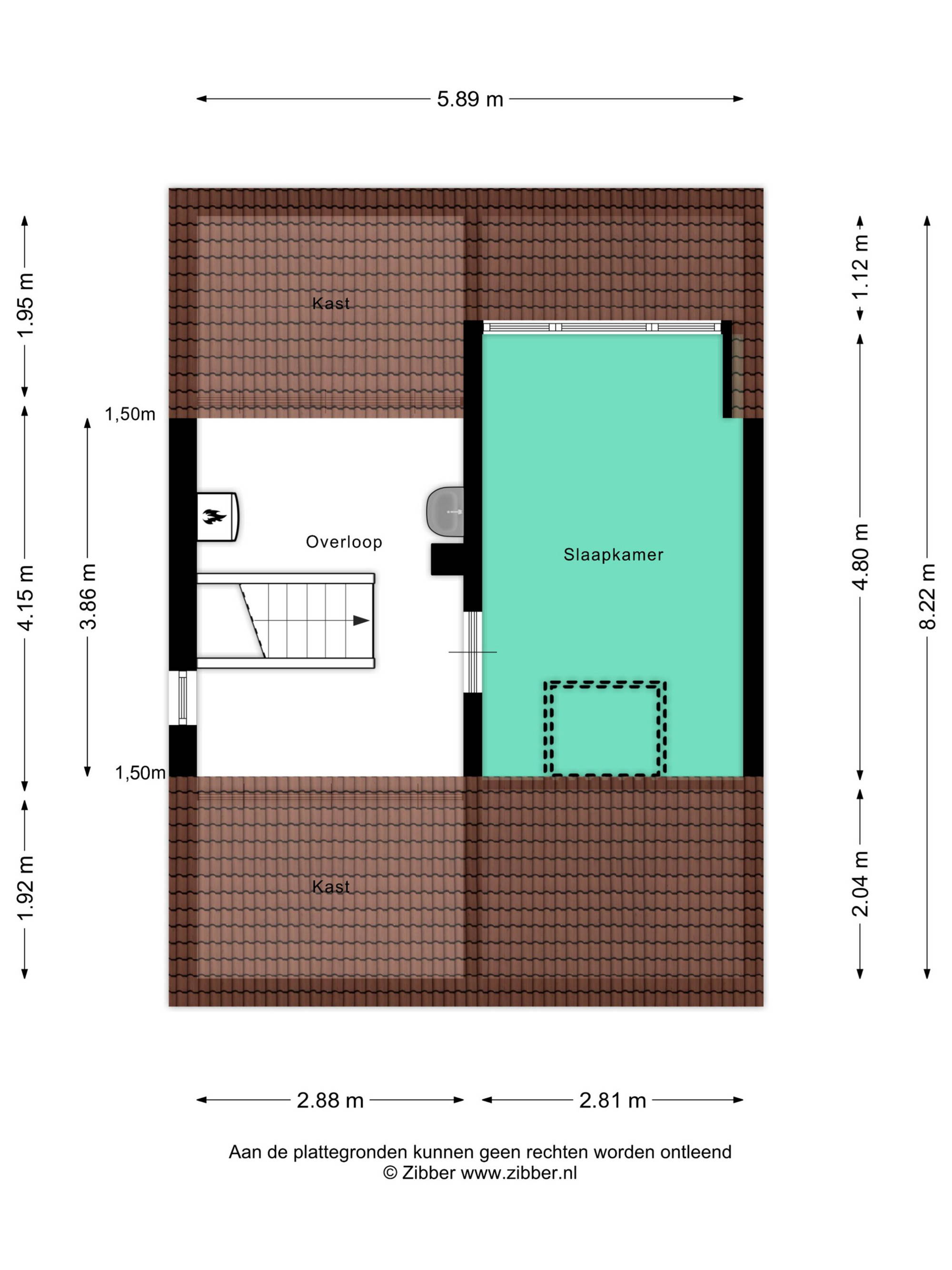
+ De tweede verdieping is met een vaste trap bereikbaar en is verdeeld in een voorzolder met de Remeha combiketel (2011), wastafel en opbergruimte achter knieschotten en de vierde slaapkamer.
+ De vierde, volwaardige slaapkamer is licht, voorzien van een laminaatvloer en beschikt over een dakkapel en een dakraam (2022).
+ De achtertuin is groen en verzorgd aangelegd, beschikt over twee overkappingen, een directe achterom en veel privacy. De houten berging zorgt daarnaast voor extra opslagruimte. Bovendien is de tuin voorzien van een grondwaterpomp met sproei-installatie, wat het bewateren van het groen eenvoudig en efficiënt maakt.
Bijzonderheden
+ De woning beschikt over dakisolatie, dubbel glas en energielabel B.
+ Door middel van de ankerloze spouwmuren is er minimal contactgeluid richting de buren
+ De buitenzijde van de woning is geschilderd in 2023.
Aanvaarding
In nader overleg.
Deze uitstekend onderhouden twee-onder-een-kapwoning biedt een zee aan ruimte, comfort en een hoogwaardige afwerking. De woning beschikt over een royale woonkamer met erker, een ruime woonkeuken met luxe inbouwapparatuur, een praktische bijkeuken, een verwarmde inpandige garage en vier volwaardige slaapkamers. Tussen de woonkamer en de keuken bevindt zich een schuifdeur, waarmee je eenvoudig kunt kiezen voor een open leefruimte of juist meer afzondering creëert – ideaal voor gezellige etentjes of rustige avonden. Dankzij de ruime indeling is dit een ideale gezinswoning waarin je moeiteloos ontspanning, werk en het gezinsleven combineert.
Met drie riante slaapkamers op de eerste verdieping, een luxe badkamer én een vierde slaapkamer op de zolderverdieping biedt deze woning volop mogelijkheden. Ook de moderne badkamer is compleet uitgerust met ligbad en inloopdouche. De achtertuin met twee overkappingen en een berging is een fijne en beschutte plek om tot rust te komen. Daarbij is de woning goed geïsoleerd wat resulteert in energielabel B én comfortabel wonen.
Ook de ligging van de woning is ideaal te noemen. Op loopafstand vind je alle dagelijkse voorzieningen zoals een basisschool, kinderdagverblijf, speeltuin, supermarkt, winkels en sportverenigingen. Ook voor natuurliefhebbers is dit een uitstekende plek, met onder andere de Geffense Plas vlakbij. De centrale ligging zorgt ervoor dat je met de auto snel op de A59 zit richting Oss of ’s-Hertogenbosch, of met de fiets gemakkelijk gebruikmaakt van de snelfietsroute F59.
Pluspunten
+ Parkeren doe je gemakkelijk op eigen oprit.
+ De ruime entree beschikt over de meterkast, een garderobenis, de toiletruimte met wandtoilet en fonteintje (2015) en de trap naar boven.
+ De L-vormige woonkamer met erker is fraai afgewerkt met spachtelputz wanden, een schuurplafond en sierlijsten. Er is met gemak ruimte voor twee royale zithoeken.
+ De uitgebouwde woonkeuken is zeer ruim en luxe uitgevoerd met een granieten werkblad, 5-pits keramische kookplaat met wokbrander, afzuigkap, oven, combi-oven, koelkast, vaatwasser en een Quooker kokendwaterkraan. De tuingerichte keuken heeft daarnaast openslaande deuren naar de achtertuin.
+ In de bijkeuken bevindt zich een extra keukenblok met een tweede koelkast en de witgoedaansluitingen.
+ De inpandige garage is verwarmd en beschikt over een praktische kastenwand, een vliering, nieuwe garagedeuren en een extra loopdeur.
+ De eerste verdieping bestaat uit de overloop, een moderne badkamer en drie ruim opgezette slaapkamers, die allemaal zijn afgewerkt met strak spuitwerk op zowel de wanden als plafonds.
+ De badkamer is luxe afgewerkt en beschikt over een ligbad, ruime inloopdouche, wandtoilet, badkamermeubel met wastafel, designradiator en comfortabele vloerverwarming.
+ De tweede verdieping is met een vaste trap bereikbaar en is verdeeld in een voorzolder met de Remeha combiketel (2011), wastafel en opbergruimte achter knieschotten en de vierde slaapkamer.
+ De vierde, volwaardige slaapkamer is licht, voorzien van een laminaatvloer en beschikt over een dakkapel en een dakraam (2022).
+ De achtertuin is groen en verzorgd aangelegd, beschikt over twee overkappingen, een directe achterom en veel privacy. De houten berging zorgt daarnaast voor extra opslagruimte. Bovendien is de tuin voorzien van een grondwaterpomp met sproei-installatie, wat het bewateren van het groen eenvoudig en efficiënt maakt.
Bijzonderheden
+ De woning beschikt over dakisolatie, dubbel glas en energielabel B.
+ Door middel van de ankerloze spouwmuren is er minimal contactgeluid richting de buren
+ De buitenzijde van de woning is geschilderd in 2023.
Aanvaarding
In nader overleg.
Lees meer
Minder tonen
Kenmerken
| Overdracht | |
|---|---|
| Prijs: | € 550.000,- k.k. |
| Status: | Beschikbaar |
| Aanvaarding: | In overleg |
| Bouw | |
| type-object: | Woonhuis |
| Type: | Twee onder een kapwoning |
| Soort: | Eengezinswoning |
| Bouwjaar: | 1991 |
| Oppervlakten en inhoud | |
| Woonoppervlakte: | 158 m2 |
| Perceeloppervlakte: | 305 m2 |
| Inhoud: | 614 m3 |
| Indeling | |
| Kamers: | 6 |
| Slaapkamers: | 4 |
| Energie | |
| Energieklasse: | B |
| Isolatievormen: | Dakisolatie, muurisolatie, vloerisolatie, dubbel glas, hr glas |
| Soorten verwarming: | Cv ketel |
| Soorten warm water: | Cv ketel |
| CV ketel type: | Remeha |
| CV ketel eigendom: | Eigendom |
| Buitenruimte | |
| Tuintypen: | Achtertuin, voortuin |
| Hoofdtuin: | Achtertuin |
| Ligging: | Oost |
| Achteringang: | Ja |
| Lengte: | 13,70 m |
| Breedte: | 8,78 m |
| Oppervlakte: | 120 m2 |
| Parkeren | |
| Parkeerfaciliteiten: | Openbaar parkeren, op eigen terrein |
| Soorten: | Inpandig |
| Capaciteit: | 1 |
Interesse?
Voor meer informatie of het plannen van een bezichtiging helpen we je graag verder.
Kan ik deze woning betalen?