Oss
Cornelis Jolstraat 34
€ 560.000,- k.k.
Delen
{ if (inProgress) { return; } inProgress = true; favorite ? $store.favorites.delete(identifier, market, address, city, () => { inProgress = false; }): $store.favorites.add(identifier, market, address, city, () => { inProgress = false; }); favorite = !favorite; }"
>
Favoriet
Woning:
173 m2
Perceel: 285 m2
Slaapkamers: 3
Bouwjaar: 2002
Energielabel: A++
Over deze woning
Hier vind je de zeldzame combinatie van volop ruimte, een bijzonder laag energieverbruik en een uitstekende ligging: een kans die je niet wilt missen. Deze royale gezinswoning biedt drie ruime slaapkamers, een grote en privacyvolle tuin, energielabel A++ én een centrale locatie dicht bij alle voorzieningen. Daarbij profiteer je van extra’s zoals een kantoorruimte aan huis met eigen ingang, een zonnig dakterras, rolluiken rondom en de mogelijkheid om comfortabel op eigen terrein te parkeren onder de carport.
Ook de achtertuin is een groot pluspunt: opvallend ruim, onderhoudsvriendelijk en volledig gericht op een fijn buitenleven. Het kunstgras, het ruime terras met zonneluifel, de overkapping en het houten tuinhuis maken dit tot een plek waar je in alle rust kunt ontspannen met vrienden en familie. En dankzij de uitstekende duurzaamheidsvoorzieningen woon je hier bovendien toekomstbestendig. Met energielabel A++, een recente warmtepomp, zonnepanelen en volledige isolatie combineert deze woning comfort met een zeer laag energieverbruik.
Verder is de ligging ideaal: je woont in een rustige woonstraat met alle dagelijkse voorzieningen binnen handbereik. Je loopt zo naar de supermarkt en diverse winkels, en binnen enkele minuten fiets je naar het centrum en het treinstation van Oss. Scholen en sportfaciliteiten liggen in de buurt en de uitvalswegen richting ’s-Hertogenbosch, Nijmegen en Eindhoven zijn zeer goed bereikbaar.
Pluspunten
+ Parkeren doe je gemakkelijk op eigen terrein onder de carport.
+ De hal geeft toegang tot de meterkast en de toiletruimte met toilet en fonteintje.
+ De tuingerichte woonkamer is erg ruim en heeft openslaande deuren naar het terras. De ruimte is afgewerkt met een marmeren vloer en strak stucwerk, waardoor het een tijdloze en verzorgde uitstraling heeft.
+ De L-vormige keuken is van alle gemakken voorzien en uitgerust met een 4-pitsfornuis, afzuigkap, vaatwasser en magnetron. Je beschikt daarnaast over een praktische voorraadkast die zorgt voor extra opbergruimte.
+ De inpandige garage is opgedeeld in twee ruimtes, waardoor aan de voorzijde een fijne en lichte kantoorruimte met eigen ingang is gerealiseerd.
+ De bijkeuken biedt plaats voor de wasmachine en droger en zorgt voor extra bergruimte.
+ De eerste verdieping bestaat uit de overloop, twee volwaardige slaapkamers en de badkamer. Elke slaapkamer is afgewerkt met een laminaatvloer, strak stucwerk en rolluiken. De hoofdslaapkamer beschikt daarnaast over een inbouwkast.
+ De volledig betegelde badkamer is compleet ingericht met een toilet, badkamermeubel met wastafel, ligbad, separate douchecabine met regendouche en raam voor ventilatie en daglicht.
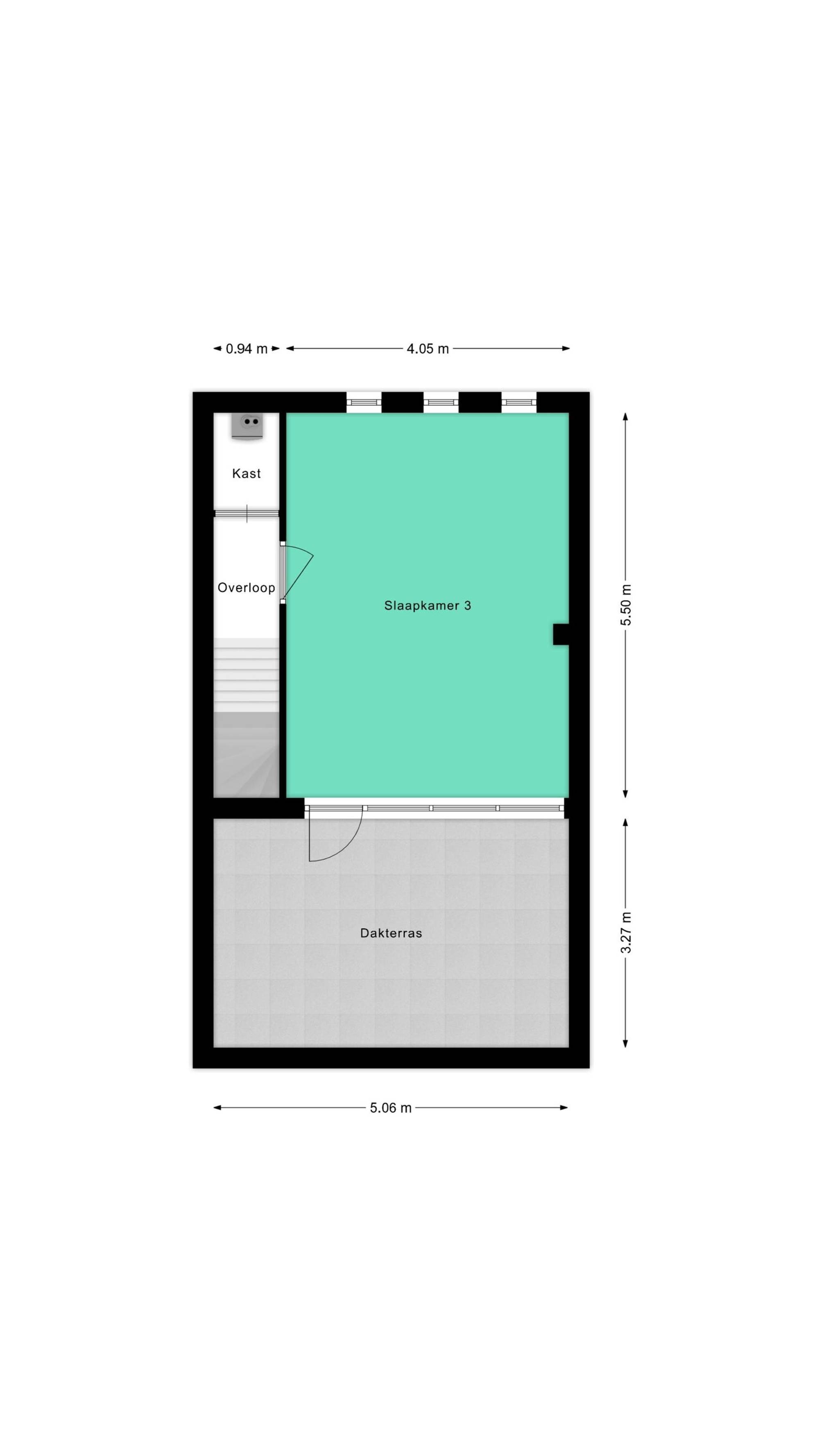
+ De tweede verdieping is met een vaste trap bereikbaar en biedt een derde ruime slaapkamer met laminaatvloer en strak stucwerk. Ook heb je vanuit deze slaapkamer toegang tot het zonnige dakterras.
+ De tuin is opvallend ruim en door het kunstgras, het royale terras met zonneluifel, de overkapping en het houten tuinhuis een heerlijk plek waar je in alle rust én met weinig onderhoud kunt genieten van veel privacy.
Bijzonderheden
+ De woning is volledig geïsoleerd (dak, muren, vloeren) en voorzien van dubbel glas.
+ De woning beschikt over energielabel A++, wat zorgt voor een energiezuinig en comfortabel woonklimaat.
+ De woning is uitgerust met een hybride warmtepomp (2023).
+ De woning heeft 8 zonnepanelen op het platte dak.
+ De woning is rondom voorzien van rolluiken.
+ Beide verdiepingsvloeren zijn uitgevoerd in beton, wat zorgt voor uitstekende geluidsisolatie en een solide wooncomfort.
Aanvaarding
In nader overleg.
Ook de achtertuin is een groot pluspunt: opvallend ruim, onderhoudsvriendelijk en volledig gericht op een fijn buitenleven. Het kunstgras, het ruime terras met zonneluifel, de overkapping en het houten tuinhuis maken dit tot een plek waar je in alle rust kunt ontspannen met vrienden en familie. En dankzij de uitstekende duurzaamheidsvoorzieningen woon je hier bovendien toekomstbestendig. Met energielabel A++, een recente warmtepomp, zonnepanelen en volledige isolatie combineert deze woning comfort met een zeer laag energieverbruik.
Verder is de ligging ideaal: je woont in een rustige woonstraat met alle dagelijkse voorzieningen binnen handbereik. Je loopt zo naar de supermarkt en diverse winkels, en binnen enkele minuten fiets je naar het centrum en het treinstation van Oss. Scholen en sportfaciliteiten liggen in de buurt en de uitvalswegen richting ’s-Hertogenbosch, Nijmegen en Eindhoven zijn zeer goed bereikbaar.
Pluspunten
+ Parkeren doe je gemakkelijk op eigen terrein onder de carport.
+ De hal geeft toegang tot de meterkast en de toiletruimte met toilet en fonteintje.
+ De tuingerichte woonkamer is erg ruim en heeft openslaande deuren naar het terras. De ruimte is afgewerkt met een marmeren vloer en strak stucwerk, waardoor het een tijdloze en verzorgde uitstraling heeft.
+ De L-vormige keuken is van alle gemakken voorzien en uitgerust met een 4-pitsfornuis, afzuigkap, vaatwasser en magnetron. Je beschikt daarnaast over een praktische voorraadkast die zorgt voor extra opbergruimte.
+ De inpandige garage is opgedeeld in twee ruimtes, waardoor aan de voorzijde een fijne en lichte kantoorruimte met eigen ingang is gerealiseerd.
+ De bijkeuken biedt plaats voor de wasmachine en droger en zorgt voor extra bergruimte.
+ De eerste verdieping bestaat uit de overloop, twee volwaardige slaapkamers en de badkamer. Elke slaapkamer is afgewerkt met een laminaatvloer, strak stucwerk en rolluiken. De hoofdslaapkamer beschikt daarnaast over een inbouwkast.
+ De volledig betegelde badkamer is compleet ingericht met een toilet, badkamermeubel met wastafel, ligbad, separate douchecabine met regendouche en raam voor ventilatie en daglicht.
+ De tweede verdieping is met een vaste trap bereikbaar en biedt een derde ruime slaapkamer met laminaatvloer en strak stucwerk. Ook heb je vanuit deze slaapkamer toegang tot het zonnige dakterras.
+ De tuin is opvallend ruim en door het kunstgras, het royale terras met zonneluifel, de overkapping en het houten tuinhuis een heerlijk plek waar je in alle rust én met weinig onderhoud kunt genieten van veel privacy.
Bijzonderheden
+ De woning is volledig geïsoleerd (dak, muren, vloeren) en voorzien van dubbel glas.
+ De woning beschikt over energielabel A++, wat zorgt voor een energiezuinig en comfortabel woonklimaat.
+ De woning is uitgerust met een hybride warmtepomp (2023).
+ De woning heeft 8 zonnepanelen op het platte dak.
+ De woning is rondom voorzien van rolluiken.
+ Beide verdiepingsvloeren zijn uitgevoerd in beton, wat zorgt voor uitstekende geluidsisolatie en een solide wooncomfort.
Aanvaarding
In nader overleg.
Lees meer
Minder tonen
Kenmerken
| Overdracht | |
|---|---|
| Prijs: | € 560.000,- k.k. |
| Status: | Beschikbaar |
| Aanvaarding: | In overleg |
| Bouw | |
| type-object: | Woonhuis |
| Type: | Geschakelde woning |
| Soort: | Eengezinswoning |
| Bouwjaar: | 2002 |
| Oppervlakten en inhoud | |
| Woonoppervlakte: | 173 m2 |
| Perceeloppervlakte: | 285 m2 |
| Inhoud: | 609 m3 |
| Indeling | |
| Kamers: | 5 |
| Slaapkamers: | 3 |
| Energie | |
| Energieklasse: | A++ |
| Isolatievormen: | Dakisolatie, muurisolatie, vloerisolatie, dubbel glas, volledig geisoleerd |
| Soorten verwarming: | Cv ketel, warmtepomp |
| Soorten warm water: | Cv ketel |
| CV ketel type: | Nefit |
| CV ketel eigendom: | Eigendom |
| Buitenruimte | |
| Tuintypen: | Achtertuin, voortuin |
| Hoofdtuin: | Achtertuin |
| Ligging: | Noord |
| Achteringang: | Nee |
| Lengte: | 14,87 m |
| Breedte: | 10,54 m |
| Oppervlakte: | 157 m2 |
| Parkeren | |
| Parkeerfaciliteiten: | Openbaar parkeren, op eigen terrein |
| Soorten: | Carport, parkeerplaats, geen garage |
Interesse?
Voor meer informatie of het plannen van een bezichtiging helpen we je graag verder.
Kan ik deze woning betalen?