Oss
Da Costastraat 49
€ 350.000,- k.k.
Delen
{ if (inProgress) { return; } inProgress = true; favorite ? $store.favorites.delete(identifier, market, address, city, () => { inProgress = false; }): $store.favorites.add(identifier, market, address, city, () => { inProgress = false; }); favorite = !favorite; }"
>
Favoriet
Woning:
132 m2
Perceel: 151 m2
Slaapkamers: 3
Bouwjaar: 1973
Energielabel: C
Over deze woning
Welkom aan de Da Costastraat 49: een kluswoning met volop potentie, gelegen in de geliefde wijk Ruwaard. Een ideale basis voor starters en jonge gezinnen die hun woonwensen graag zelf vormgeven. Hier woon je rustig, maar toch met alle voorzieningen binnen handbereik.
Zodra je arriveert valt direct de eigen oprit op, waar je gemakkelijk je auto parkeert. Naast de oprit bevindt zich een ruime, vrijstaande stenen berging met eigen toegangsdeur – perfect voor fietsen, gereedschap of extra opslag.
Bij binnenkomst stap je in de hal met meterkast, trapopgang en toiletruimte. Vanuit hier loop je door naar de woonkamer. Aansluitend bevindt zich de keuken, voorzien van een wasmachineaansluiting en een gasfornuis. Dit is een ruimte die vraagt om modernisering, maar daarmee ook de kans biedt om helemaal naar eigen smaak ingericht te worden.
De woning beschikt over betonnen vloeren op alle verdiepingen en is volledig voorzien van kunststof kozijnen met HR dubbel glas. Verwarming en warm water worden verzorgd door een HR-combiketel (Vaillant, geplaatst in 2024). De badkamer is uitgerust met een toilet, wastafelmeubel en inloopdouche.
Ventilatie gebeurt via natuurlijke ventilatie en mechanische ventilatie in de badkamer.
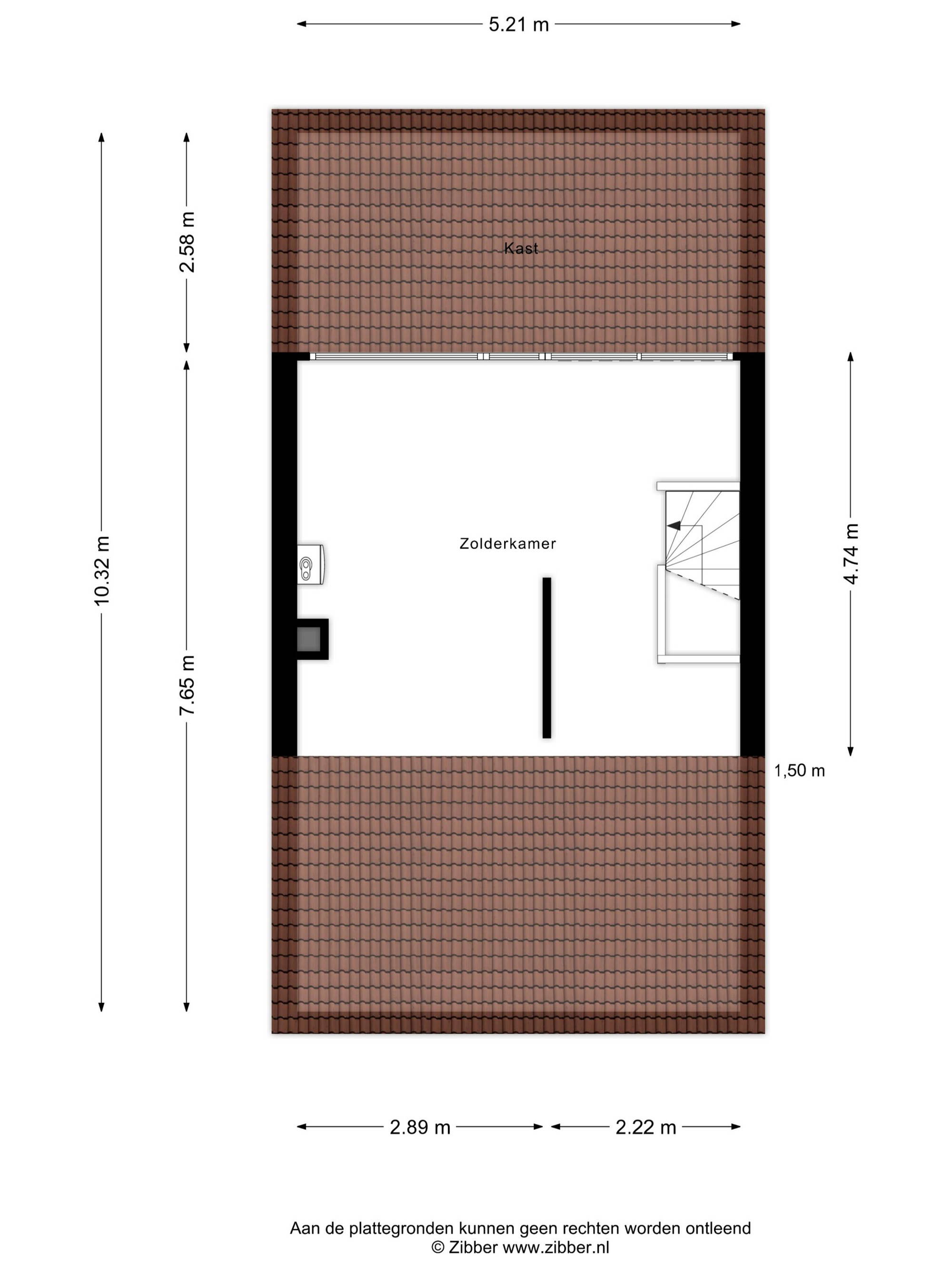
Op de eerste verdieping vind je in totaal drie kamers. Tel je de zolder mee, dan ontstaat er zelfs een vierde slaapkamer of hobbyruimte.
De achtertuin is gelegen op het zuidwesten en biedt door het ontbreken van directe achterburen een extra gevoel van vrijheid en privacy. Er is een klein terras, een grasveld.
De ligging is bijzonder praktisch: op korte afstand vind je een groot park met speeltuin en kinderboerderij, winkelcentrum De Ruwert met onder andere twee supermarkten, en natuurgebied de Geffense Bosjes. Ook ben je binnen enkele minuten op de A59 richting ’s-Hertogenbosch, Nijmegen en Eindhoven.
Bijzonderheden
+ Kluswoning met veel potentie
+ Geschikt voor starters en jonge gezinnen
+ Parkeren op eigen oprit én openbaar parkeren
+ Vrijstaande stenen berging aan de voorzijde
+ Kunststof kozijnen met HR dubbel glas
+ Vaillant HR-combiketel (2024)
+ Betonnen vloeren
+ Tuin op het zuidwesten, geen directe achterburen
+ Energielabel C
Aanvaarding
In nader overleg.
Zodra je arriveert valt direct de eigen oprit op, waar je gemakkelijk je auto parkeert. Naast de oprit bevindt zich een ruime, vrijstaande stenen berging met eigen toegangsdeur – perfect voor fietsen, gereedschap of extra opslag.
Bij binnenkomst stap je in de hal met meterkast, trapopgang en toiletruimte. Vanuit hier loop je door naar de woonkamer. Aansluitend bevindt zich de keuken, voorzien van een wasmachineaansluiting en een gasfornuis. Dit is een ruimte die vraagt om modernisering, maar daarmee ook de kans biedt om helemaal naar eigen smaak ingericht te worden.
De woning beschikt over betonnen vloeren op alle verdiepingen en is volledig voorzien van kunststof kozijnen met HR dubbel glas. Verwarming en warm water worden verzorgd door een HR-combiketel (Vaillant, geplaatst in 2024). De badkamer is uitgerust met een toilet, wastafelmeubel en inloopdouche.
Ventilatie gebeurt via natuurlijke ventilatie en mechanische ventilatie in de badkamer.
Op de eerste verdieping vind je in totaal drie kamers. Tel je de zolder mee, dan ontstaat er zelfs een vierde slaapkamer of hobbyruimte.
De achtertuin is gelegen op het zuidwesten en biedt door het ontbreken van directe achterburen een extra gevoel van vrijheid en privacy. Er is een klein terras, een grasveld.
De ligging is bijzonder praktisch: op korte afstand vind je een groot park met speeltuin en kinderboerderij, winkelcentrum De Ruwert met onder andere twee supermarkten, en natuurgebied de Geffense Bosjes. Ook ben je binnen enkele minuten op de A59 richting ’s-Hertogenbosch, Nijmegen en Eindhoven.
Bijzonderheden
+ Kluswoning met veel potentie
+ Geschikt voor starters en jonge gezinnen
+ Parkeren op eigen oprit én openbaar parkeren
+ Vrijstaande stenen berging aan de voorzijde
+ Kunststof kozijnen met HR dubbel glas
+ Vaillant HR-combiketel (2024)
+ Betonnen vloeren
+ Tuin op het zuidwesten, geen directe achterburen
+ Energielabel C
Aanvaarding
In nader overleg.
Lees meer
Minder tonen
Kenmerken
| Overdracht | |
|---|---|
| Prijs: | € 350.000,- k.k. |
| Status: | Verkocht onder voorbehoud |
| Aanvaarding: | In overleg |
| Bouw | |
| type-object: | Woonhuis |
| Type: | Tussenwoning |
| Soort: | Eengezinswoning |
| Bouwjaar: | 1973 |
| Oppervlakten en inhoud | |
| Woonoppervlakte: | 132 m2 |
| Perceeloppervlakte: | 151 m2 |
| Inhoud: | 467 m3 |
| Indeling | |
| Kamers: | 4 |
| Slaapkamers: | 3 |
| Energie | |
| Energieklasse: | C |
| Isolatievormen: | Dubbel glas |
| Soorten verwarming: | Cv ketel |
| Soorten warm water: | Cv ketel |
| CV ketel type: | Vaillant |
| CV ketel eigendom: | Eigendom |
| Buitenruimte | |
| Tuintypen: | Achtertuin, voortuin |
| Hoofdtuin: | Achtertuin |
| Ligging: | Zuidwest |
| Achteringang: | Nee |
| Lengte: | 9,63 m |
| Breedte: | 5,49 m |
| Oppervlakte: | 53 m2 |
| Parkeren | |
| Parkeerfaciliteiten: | Openbaar parkeren, op eigen terrein |
| Soorten: | Geen garage |
Interesse?
Voor meer informatie of het plannen van een bezichtiging helpen we je graag verder.
Kan ik deze woning betalen?