Oss
Dasseburcht 13
€ 365.000,- k.k.
Delen
{ if (inProgress) { return; } inProgress = true; favorite ? $store.favorites.delete(identifier, market, address, city, () => { inProgress = false; }): $store.favorites.add(identifier, market, address, city, () => { inProgress = false; }); favorite = !favorite; }"
>
Favoriet
Woning:
139 m2
Perceel: 164 m2
Slaapkamers: 4
Bouwjaar: 1974
Energielabel: C
Over deze woning
Wonen op een fijne, kindvriendelijke locatie met alle voorzieningen binnen handbereik! Deze tussenwoning ligt op een aantrekkelijke plek, vlak bij het bos en een groot park met kinderboerderij en speeltuin De Elckerlyc. Ook een winkelcentrum bevindt zich op loopafstand en binnen enkele minuten bereik je de snelwegen richting Eindhoven, Nijmegen en Den Bosch.
De woning is gelegen in een rustige woonwijk met een uitstekende bereikbaarheid en alle dagelijkse voorzieningen in de directe omgeving. Bovendien beschikt de woning over energielabel C, wat bijdraagt aan een comfortabel woonklimaat.
Deze tussenwoning beschikt over een externe berging en een heerlijke achtertuin met overkapping en luifel, ideaal om het hele jaar door van buiten te genieten.
De woning is degelijk gebouwd met betonnen vloeren en voorzien van houten kozijnen met een combinatie van enkel glas, dubbel glas en HR++ glas. Verwarming en warm water worden verzorgd via een HR-combiketel. Daarnaast is de woning uitgerust met zowel natuurlijke als mechanische ventilatie. De elektrische installatie bestaat uit 7 groepen en 2 aardlekschakelaars. Extra comfort wordt geboden door de aanwezige dakramen en rolluiken.
Via de hal bereik je de meterkast, toiletruimte en trapkast. De lichte woonkamer biedt een prettige leefruimte en staat in verbinding met de keuken, die is voorzien van diverse inbouwapparatuur.
De overloop op de eerste verdieping geeft toegang tot drie slaapkamers en een badkamer. De badkamer is functioneel ingericht en voorzien van de gebruikelijke voorzieningen. Daarnaast is er op deze verdieping eenvoudig een vierde slaapkamer te realiseren; deze ruimte wordt momenteel gebruikt als inloopkast.
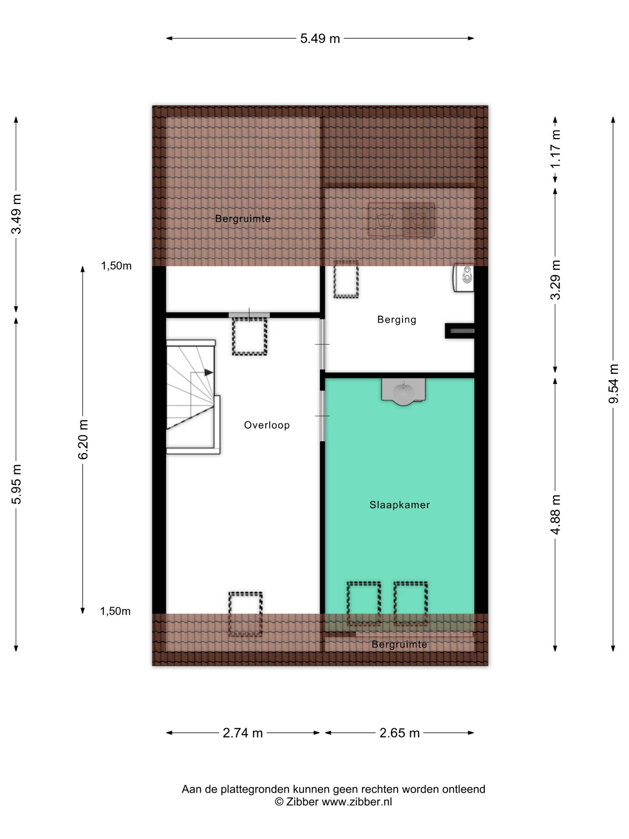
Via een vaste trap bereik je de zolderverdieping. Hier vind je een voorzolder met opstelplaats voor wasapparatuur en de cv-installatie, een vierde slaapkamer en extra bergruimte.
Bijzonderheden
+ Energielabel C
+ Remeha HR-combiketel (lease) € 37,10 per maand
+ Combinatie van enkel, dubbel en HR++ glas
+ Gelegen nabij bos, park, kinderboerderij en speeltuin
+ Achtertuin met overkapping en luifel
+ Voorzien van rolluiken op de 1e verdieping
Aanvaarding
In nader overleg.
De woning is gelegen in een rustige woonwijk met een uitstekende bereikbaarheid en alle dagelijkse voorzieningen in de directe omgeving. Bovendien beschikt de woning over energielabel C, wat bijdraagt aan een comfortabel woonklimaat.
Deze tussenwoning beschikt over een externe berging en een heerlijke achtertuin met overkapping en luifel, ideaal om het hele jaar door van buiten te genieten.
De woning is degelijk gebouwd met betonnen vloeren en voorzien van houten kozijnen met een combinatie van enkel glas, dubbel glas en HR++ glas. Verwarming en warm water worden verzorgd via een HR-combiketel. Daarnaast is de woning uitgerust met zowel natuurlijke als mechanische ventilatie. De elektrische installatie bestaat uit 7 groepen en 2 aardlekschakelaars. Extra comfort wordt geboden door de aanwezige dakramen en rolluiken.
Via de hal bereik je de meterkast, toiletruimte en trapkast. De lichte woonkamer biedt een prettige leefruimte en staat in verbinding met de keuken, die is voorzien van diverse inbouwapparatuur.
De overloop op de eerste verdieping geeft toegang tot drie slaapkamers en een badkamer. De badkamer is functioneel ingericht en voorzien van de gebruikelijke voorzieningen. Daarnaast is er op deze verdieping eenvoudig een vierde slaapkamer te realiseren; deze ruimte wordt momenteel gebruikt als inloopkast.
Via een vaste trap bereik je de zolderverdieping. Hier vind je een voorzolder met opstelplaats voor wasapparatuur en de cv-installatie, een vierde slaapkamer en extra bergruimte.
Bijzonderheden
+ Energielabel C
+ Remeha HR-combiketel (lease) € 37,10 per maand
+ Combinatie van enkel, dubbel en HR++ glas
+ Gelegen nabij bos, park, kinderboerderij en speeltuin
+ Achtertuin met overkapping en luifel
+ Voorzien van rolluiken op de 1e verdieping
Aanvaarding
In nader overleg.
Lees meer
Minder tonen
Kenmerken
| Overdracht | |
|---|---|
| Prijs: | € 365.000,- k.k. |
| Status: | Beschikbaar |
| Aanvaarding: | In overleg |
| Bouw | |
| type-object: | Woonhuis |
| Type: | Tussenwoning |
| Soort: | Eengezinswoning |
| Bouwjaar: | 1974 |
| Oppervlakten en inhoud | |
| Woonoppervlakte: | 139 m2 |
| Perceeloppervlakte: | 164 m2 |
| Inhoud: | 492 m3 |
| Indeling | |
| Kamers: | 5 |
| Slaapkamers: | 4 |
| Energie | |
| Energieklasse: | C |
| Soorten verwarming: | Cv ketel |
| Soorten warm water: | Cv ketel |
| CV ketel type: | Remeha |
| CV ketel eigendom: | Lease |
| Buitenruimte | |
| Tuintypen: | Achtertuin, voortuin |
| Hoofdtuin: | Achtertuin |
| Ligging: | Oost |
| Achteringang: | Ja |
| Lengte: | 9,54 m |
| Breedte: | 6,00 m |
| Oppervlakte: | 57 m2 |
| Parkeren | |
| Parkeerfaciliteiten: | Openbaar parkeren, op eigen terrein |
| Soorten: | Geen garage |
Interesse?
Voor meer informatie of het plannen van een bezichtiging helpen we je graag verder.
Kan ik deze woning betalen?