Oss
Goudplevier 151
€ 385.000,- k.k.
Delen
{ if (inProgress) { return; } inProgress = true; favorite ? $store.favorites.delete(identifier, market, address, city, () => { inProgress = false; }): $store.favorites.add(identifier, market, address, city, () => { inProgress = false; }); favorite = !favorite; }"
>
Favoriet
Woning:
113 m2
Perceel: 150 m2
Slaapkamers: 3
Bouwjaar: 1975
Energielabel: B
Over deze woning
Aan de Goudplevier 151 in Oss staat een woning die je bij binnenkomst direct het gevoel geeft: hier is met zorg gewoond. Een huis waar ruimte, comfort en praktische indeling samenkomen, en waar je zonder grote aanpassingen zó kunt intrekken.
De woning is gelegen in een kindvriendelijke woonwijk aan de oostrand van Oss. In de directe omgeving zijn speelvoorzieningen aanwezig en dagelijkse voorzieningen bevinden zich op korte afstand. Daarnaast is de ligging ideaal ten opzichte van de uitvalswegen: binnen enkele minuten bereik je zowel de A50 als de A59 richting Eindhoven, Nijmegen en ’s-Hertogenbosch.
Je arriveert op eigen oprit en betreedt de woning via de hal. Hier bevindt zich het moderne zwevende toilet.
Vanuit de hal stap je via de glas-in-lood deur naar de tuingerichte woonkamer. Deze ruimte voelt warm en uitnodigend aan dankzij de parketvloer. Het strak gestucte plafond maakt de ruimte af. Grote raampartijen zorgen voor veel lichtinval en een prettige verbinding met de tuin.
De keuken is apart gelegen en vormt een fijne plek voor kookliefhebbers. Je beschikt hier over een complete opstelling met koelkast, diepvries, oven, magnetron, vaatwasser, een 5-pits gaskookplaat behorend bij een stijlvol Falcon fornuis met natuurstenen werkblad. Praktisch én sfeervol, precies zoals je het wilt.
De achtertuin ligt op de zonzijde, waardoor je hier het grootste deel van de dag van de zon kunt genieten. De tuin is onderhoudsarm ingericht, beschikt over een achterom en is voorzien van een overkapping: een heerlijke plek om zowel in de zomer als op koelere dagen buiten te zitten. Daarnaast is er aan de voorzijde een berging met elektra, ideaal voor fietsen, gereedschap of hobbyspullen.
Op de eerste verdieping bevinden zich drie slaapkamers, allemaal voorzien van laminaatvloeren, strak afgewerkte spuitwerkwanden, strak gestucte plafonds en grotendeels voorzien van HR++ glas. Op de overloop is een handige bergkast aanwezig. De badkamer is compleet uitgevoerd met een ligbad met bubbel functie, een aparte douche, een zwevend toilet, een designradiator en een wastafelmeubel.
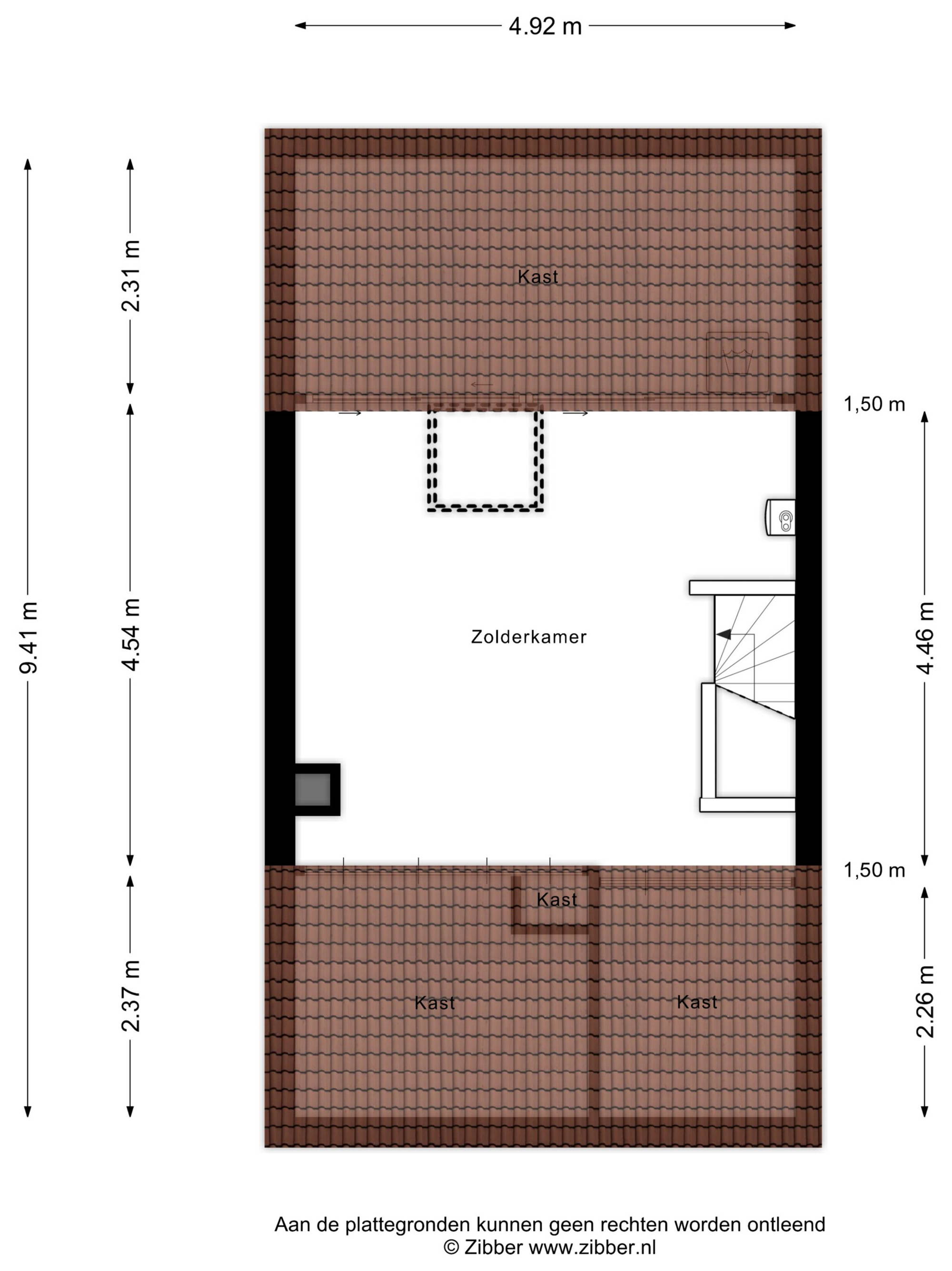
De tweede verdieping biedt volop mogelijkheden. Hier is eenvoudig een extra vierde slaapkamer te realiseren. Aan beide zijden vind je volop bergruimte achter de schuifdeuren en in de ingebouwde kastenwand. Ook vind je hier de aansluitingen voor wasmachine en droger en de Nefit HR-combiketel uit 2022 (eigendom).
Kortom: een verzorgde, ruime woning op een fijne locatie – klaar voor een nieuwe bewoner om er met plezier een thuis van te maken.
Bijzonderheden
+ Energielabel B
+ Kunststof kozijnen met HR++ glas op de begane grond
+ Grotendeels HR++ glas op de eerste verdieping.
+ Nefit HR-combiketel 2022 (eigendom)
+ Meterkast met 9 groepen en 2 aardlekschakelaars
+ Buitenschilderwerk 2022
+ Onderhoudsarme tuin op de zonzijde met overkapping en achterom
Aanvaarding
In nader overleg.
De woning is gelegen in een kindvriendelijke woonwijk aan de oostrand van Oss. In de directe omgeving zijn speelvoorzieningen aanwezig en dagelijkse voorzieningen bevinden zich op korte afstand. Daarnaast is de ligging ideaal ten opzichte van de uitvalswegen: binnen enkele minuten bereik je zowel de A50 als de A59 richting Eindhoven, Nijmegen en ’s-Hertogenbosch.
Je arriveert op eigen oprit en betreedt de woning via de hal. Hier bevindt zich het moderne zwevende toilet.
Vanuit de hal stap je via de glas-in-lood deur naar de tuingerichte woonkamer. Deze ruimte voelt warm en uitnodigend aan dankzij de parketvloer. Het strak gestucte plafond maakt de ruimte af. Grote raampartijen zorgen voor veel lichtinval en een prettige verbinding met de tuin.
De keuken is apart gelegen en vormt een fijne plek voor kookliefhebbers. Je beschikt hier over een complete opstelling met koelkast, diepvries, oven, magnetron, vaatwasser, een 5-pits gaskookplaat behorend bij een stijlvol Falcon fornuis met natuurstenen werkblad. Praktisch én sfeervol, precies zoals je het wilt.
De achtertuin ligt op de zonzijde, waardoor je hier het grootste deel van de dag van de zon kunt genieten. De tuin is onderhoudsarm ingericht, beschikt over een achterom en is voorzien van een overkapping: een heerlijke plek om zowel in de zomer als op koelere dagen buiten te zitten. Daarnaast is er aan de voorzijde een berging met elektra, ideaal voor fietsen, gereedschap of hobbyspullen.
Op de eerste verdieping bevinden zich drie slaapkamers, allemaal voorzien van laminaatvloeren, strak afgewerkte spuitwerkwanden, strak gestucte plafonds en grotendeels voorzien van HR++ glas. Op de overloop is een handige bergkast aanwezig. De badkamer is compleet uitgevoerd met een ligbad met bubbel functie, een aparte douche, een zwevend toilet, een designradiator en een wastafelmeubel.
De tweede verdieping biedt volop mogelijkheden. Hier is eenvoudig een extra vierde slaapkamer te realiseren. Aan beide zijden vind je volop bergruimte achter de schuifdeuren en in de ingebouwde kastenwand. Ook vind je hier de aansluitingen voor wasmachine en droger en de Nefit HR-combiketel uit 2022 (eigendom).
Kortom: een verzorgde, ruime woning op een fijne locatie – klaar voor een nieuwe bewoner om er met plezier een thuis van te maken.
Bijzonderheden
+ Energielabel B
+ Kunststof kozijnen met HR++ glas op de begane grond
+ Grotendeels HR++ glas op de eerste verdieping.
+ Nefit HR-combiketel 2022 (eigendom)
+ Meterkast met 9 groepen en 2 aardlekschakelaars
+ Buitenschilderwerk 2022
+ Onderhoudsarme tuin op de zonzijde met overkapping en achterom
Aanvaarding
In nader overleg.
Lees meer
Minder tonen
Kenmerken
| Overdracht | |
|---|---|
| Prijs: | € 385.000,- k.k. |
| Status: | Beschikbaar |
| Aanvaarding: | In overleg |
| Bouw | |
| type-object: | Woonhuis |
| Type: | Tussenwoning |
| Soort: | Eengezinswoning |
| Bouwjaar: | 1975 |
| Oppervlakten en inhoud | |
| Woonoppervlakte: | 113 m2 |
| Perceeloppervlakte: | 150 m2 |
| Inhoud: | 401 m3 |
| Indeling | |
| Kamers: | 5 |
| Slaapkamers: | 3 |
| Energie | |
| Energieklasse: | B |
| Soorten verwarming: | Cv ketel |
| Soorten warm water: | Cv ketel |
| CV ketel type: | Nefit |
| CV ketel eigendom: | Eigendom |
| Buitenruimte | |
| Tuintypen: | Achtertuin, voortuin |
| Hoofdtuin: | Achtertuin |
| Ligging: | Zuid |
| Achteringang: | Ja |
| Lengte: | 11,17 m |
| Breedte: | 5,18 m |
| Oppervlakte: | 58 m2 |
| Parkeren | |
| Parkeerfaciliteiten: | Openbaar parkeren, op eigen terrein |
| Soorten: | Geen garage |
Interesse?
Voor meer informatie of het plannen van een bezichtiging helpen we je graag verder.
Kan ik deze woning betalen?