Oss
Harnas 1
€ 615.000,- k.k.
Delen
{ if (inProgress) { return; } inProgress = true; favorite ? $store.favorites.delete(identifier, market, address, city, () => { inProgress = false; }): $store.favorites.add(identifier, market, address, city, () => { inProgress = false; }); favorite = !favorite; }"
>
Favoriet
Woning:
156 m2
Perceel: 415 m2
Slaapkamers: 3
Bouwjaar: 1997
Energielabel: A
Over deze woning
Deze vrijstaande woning met energielabel A is gelegen op een hoek en biedt verrassend veel ruimte! Deze goed onderhouden woning beschikt over drie volwaardige slaapkamers (waarvan één met dakterras), een zonnige tuin op het zuidoosten, een ruime serre, een multifunctionele ruimte met eigen ingang, een garage én een moderne badkamer en woonkeuken. Met onder andere 17 zonnepanelen en airconditioning. Hier woon je comfortabel, ruim en toekomstbestendig!
Binnen valt direct de praktische indeling op. De woonkamer is sfeervol ingericht met een gashaard en staat in open verbinding met de woonkeuken. Dankzij de schuifpui haal je buiten eenvoudig naar binnen. De aparte speel- of werkkamer maakt deze woning ideaal voor gezinnen of voor wie (deels) vanuit huis werkt. Ook aan bergruimte is geen gebrek, de woning beschikt over diverse inbouwkasten. Daarnaast is er nog een extra verdieping bereikbaar via een vlizotrap.
De woning maakt deel uit van de moderne gezinswijk Mettegeupel aan de noordelijke rand van Oss. Dit is een rustige, kindvriendelijke buurt met volop ruimte, groen en goede voorzieningen. Je woont hier op loop- of fietsafstand van meerdere basisscholen, sportverenigingen en een groot sportcomplex. Het centrum van Oss bereik je binnen enkele minuten en ook de uitvalswegen naar Eindhoven, Nijmegen en ’s-Hertogenbosch zijn uitstekend bereikbaar. Een ideale locatie voor gezinnen die ruimte zoeken zonder in te leveren op bereikbaarheid of voorzieningen.
Pluspunten
+ Parkeren doe je gemakkelijk op de ruime oprit met plek voor vier auto’s. Daarnaast is er een carport en stenen garage met roldeur aanwezig.
+ De hal geeft toegang tot de meterkast (11 groepen en 3 aardlekschakelaars) en een moderne toiletruimte met wandtoilet en fonteintje.
+ De tuingerichte woonkamer is ruim opgezet en voorzien van een gashaard, wat zorgt voor een warme en gezellige sfeer. Dankzij de schuifpui sta je in directe verbinding met de tuin, terwijl de screens zorgen voor extra comfort. Praktische inbouwkasten bieden daarnaast volop bergruimte.
+ De open woonkeuken is compleet uitgerust met een stijlvol granieten werkblad, inductiekookplaat, afzuigkap, combi-oven, stoomoven, vaatwasser, close-in boiler, en mogelijkheid tot kokend waterkraan en koelkast.
+ De serre is licht en ruim van opzet en voorzien van een glazen schuifwand, waardoor je hier het hele jaar door comfortabel kunt genieten van het buitenleven.
+ De multifunctionele ruimte met eigen ingang is in te richten als speel-, werk-, hobby- of praktijkruimte aan huis. De mogelijkheden zijn eindeloos!
+ Op de eerste verdieping bevinden zich twee slaapkamers met een laminaatvloer en rolluiken. De hoofdslaapkamer beschikt over een airconditioning (2021). Ook vind je op de overloop een inbouwkast voor extra bergruimte.
+ De badkamer is uitgevoerd met een ligbad met regendouche, een dubbele wastafel, een wandtoilet en een designradiator. In 2025 is het houten ronde raamkozijn vervangen door een kunststof kantelbaar raamkozijn, zodat het raam open kan. Tevens is er een nieuw mechanisch ventilatiesysteem met sensor in de afstandsbediening.
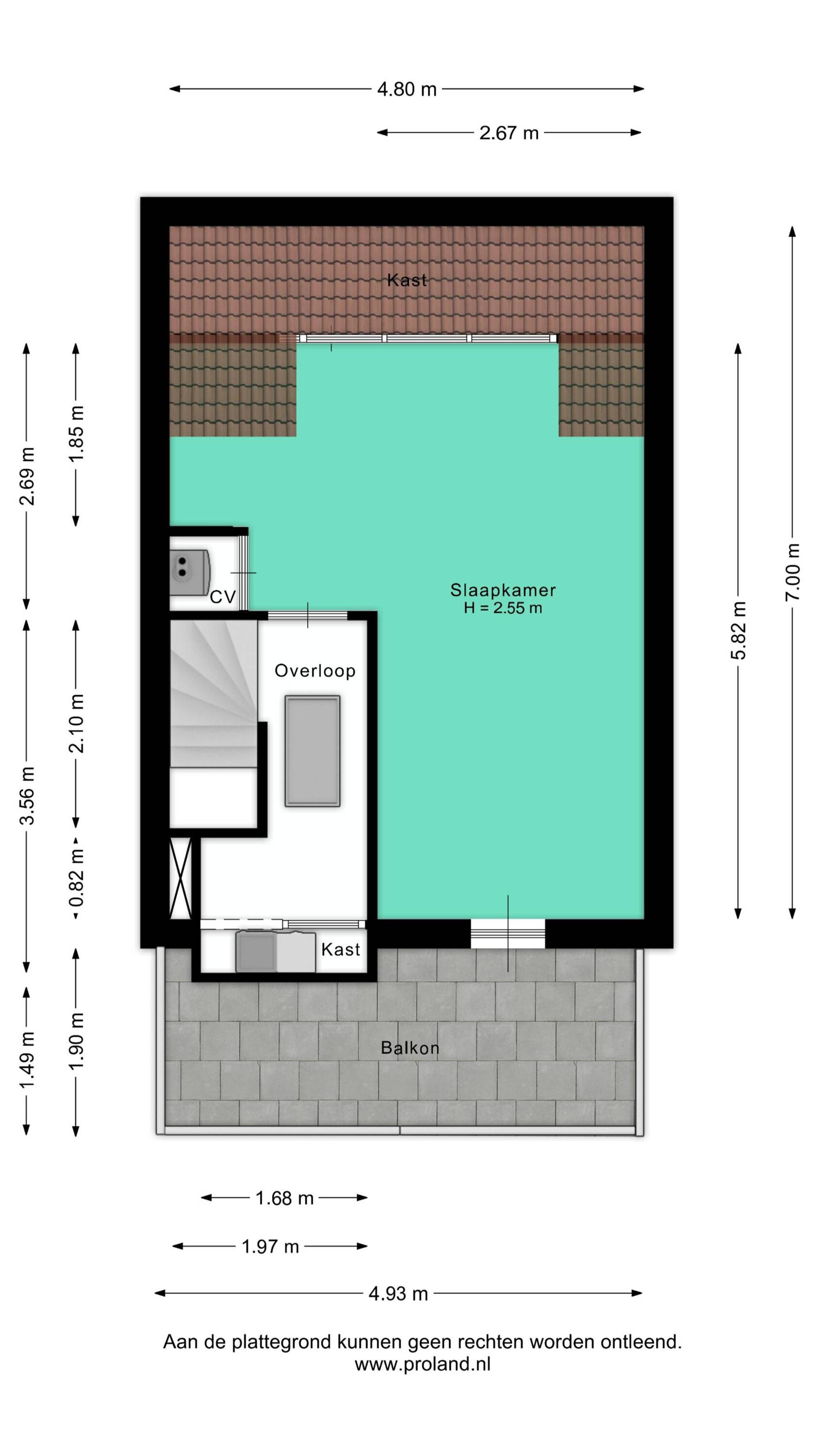
+ Ook de tweede verdieping is met een vaste trap bereikbaar. Hier vind je een derde slaapkamer met een dakkapel, airconditioning, rolluiken en dakterras. De cv-installatie en de witgoedaansluitingen zijn perfect weggewerkt in inbouwkasten.
+ Via een vlizotrap bereik je de derde verdieping. Deze vliering biedt volop mogelijkheden voor het opbergen van bijvoorbeeld seizoensspullen. De vliering heeft tevens een Veluxdakraam met verduisteringsrolgordijn.
+ De zonnige tuin op het zuidoosten is erg ruim en voorzien van een houten tuinschuur met overkapping, meerdere terrassen, groen gazon en natuurlijk de serre. Er is een directe achterom mogelijk via de dubbele poort aan de voorzijde. Achter deze poort is er voldoende ruimte om een caravan/aanhanger/auto neer te zetten.
Bijzonderheden
+ De woning is volledig geïsoleerd (dak, muren, vloeren) en beschikt over dubbel glas.
+ De woning heeft energielabel A.
+ De woning is voorzien van 17 zonnepanelen uit 2023.
+ Het buitenschilderwerk is uitgevoerd in 2024.
+ Het dakleer van de garage is vernieuwd in 2025.
+ De woning beschikt over rolluiken, screens en airconditioning.
+ De woning biedt mogelijkheden voor een werkplek aan huis.
Aanvaarding
In nader overleg.
Binnen valt direct de praktische indeling op. De woonkamer is sfeervol ingericht met een gashaard en staat in open verbinding met de woonkeuken. Dankzij de schuifpui haal je buiten eenvoudig naar binnen. De aparte speel- of werkkamer maakt deze woning ideaal voor gezinnen of voor wie (deels) vanuit huis werkt. Ook aan bergruimte is geen gebrek, de woning beschikt over diverse inbouwkasten. Daarnaast is er nog een extra verdieping bereikbaar via een vlizotrap.
De woning maakt deel uit van de moderne gezinswijk Mettegeupel aan de noordelijke rand van Oss. Dit is een rustige, kindvriendelijke buurt met volop ruimte, groen en goede voorzieningen. Je woont hier op loop- of fietsafstand van meerdere basisscholen, sportverenigingen en een groot sportcomplex. Het centrum van Oss bereik je binnen enkele minuten en ook de uitvalswegen naar Eindhoven, Nijmegen en ’s-Hertogenbosch zijn uitstekend bereikbaar. Een ideale locatie voor gezinnen die ruimte zoeken zonder in te leveren op bereikbaarheid of voorzieningen.
Pluspunten
+ Parkeren doe je gemakkelijk op de ruime oprit met plek voor vier auto’s. Daarnaast is er een carport en stenen garage met roldeur aanwezig.
+ De hal geeft toegang tot de meterkast (11 groepen en 3 aardlekschakelaars) en een moderne toiletruimte met wandtoilet en fonteintje.
+ De tuingerichte woonkamer is ruim opgezet en voorzien van een gashaard, wat zorgt voor een warme en gezellige sfeer. Dankzij de schuifpui sta je in directe verbinding met de tuin, terwijl de screens zorgen voor extra comfort. Praktische inbouwkasten bieden daarnaast volop bergruimte.
+ De open woonkeuken is compleet uitgerust met een stijlvol granieten werkblad, inductiekookplaat, afzuigkap, combi-oven, stoomoven, vaatwasser, close-in boiler, en mogelijkheid tot kokend waterkraan en koelkast.
+ De serre is licht en ruim van opzet en voorzien van een glazen schuifwand, waardoor je hier het hele jaar door comfortabel kunt genieten van het buitenleven.
+ De multifunctionele ruimte met eigen ingang is in te richten als speel-, werk-, hobby- of praktijkruimte aan huis. De mogelijkheden zijn eindeloos!
+ Op de eerste verdieping bevinden zich twee slaapkamers met een laminaatvloer en rolluiken. De hoofdslaapkamer beschikt over een airconditioning (2021). Ook vind je op de overloop een inbouwkast voor extra bergruimte.
+ De badkamer is uitgevoerd met een ligbad met regendouche, een dubbele wastafel, een wandtoilet en een designradiator. In 2025 is het houten ronde raamkozijn vervangen door een kunststof kantelbaar raamkozijn, zodat het raam open kan. Tevens is er een nieuw mechanisch ventilatiesysteem met sensor in de afstandsbediening.
+ Ook de tweede verdieping is met een vaste trap bereikbaar. Hier vind je een derde slaapkamer met een dakkapel, airconditioning, rolluiken en dakterras. De cv-installatie en de witgoedaansluitingen zijn perfect weggewerkt in inbouwkasten.
+ Via een vlizotrap bereik je de derde verdieping. Deze vliering biedt volop mogelijkheden voor het opbergen van bijvoorbeeld seizoensspullen. De vliering heeft tevens een Veluxdakraam met verduisteringsrolgordijn.
+ De zonnige tuin op het zuidoosten is erg ruim en voorzien van een houten tuinschuur met overkapping, meerdere terrassen, groen gazon en natuurlijk de serre. Er is een directe achterom mogelijk via de dubbele poort aan de voorzijde. Achter deze poort is er voldoende ruimte om een caravan/aanhanger/auto neer te zetten.
Bijzonderheden
+ De woning is volledig geïsoleerd (dak, muren, vloeren) en beschikt over dubbel glas.
+ De woning heeft energielabel A.
+ De woning is voorzien van 17 zonnepanelen uit 2023.
+ Het buitenschilderwerk is uitgevoerd in 2024.
+ Het dakleer van de garage is vernieuwd in 2025.
+ De woning beschikt over rolluiken, screens en airconditioning.
+ De woning biedt mogelijkheden voor een werkplek aan huis.
Aanvaarding
In nader overleg.
Lees meer
Minder tonen
Kenmerken
| Overdracht | |
|---|---|
| Prijs: | € 615.000,- k.k. |
| Status: | Verkocht onder voorbehoud |
| Aanvaarding: | In overleg |
| Bouw | |
| type-object: | Woonhuis |
| Type: | Vrijstaande woning |
| Soort: | Eengezinswoning |
| Bouwjaar: | 1997 |
| Oppervlakten en inhoud | |
| Woonoppervlakte: | 156 m2 |
| Perceeloppervlakte: | 415 m2 |
| Inhoud: | 644 m3 |
| Indeling | |
| Kamers: | 4 |
| Slaapkamers: | 3 |
| Energie | |
| Energieklasse: | A |
| Isolatievormen: | Dakisolatie, muurisolatie, vloerisolatie, dubbel glas, volledig geisoleerd |
| Soorten verwarming: | Cv ketel, gashaard |
| Soorten warm water: | Cv ketel |
| CV ketel type: | Intergas |
| CV ketel eigendom: | Eigendom |
| Buitenruimte | |
| Tuintypen: | Achtertuin, voortuin |
| Hoofdtuin: | Achtertuin |
| Ligging: | Zuidoost |
| Achteringang: | Ja |
| Lengte: | 10,15 m |
| Breedte: | 9,51 m |
| Oppervlakte: | 97 m2 |
| Parkeren | |
| Parkeerfaciliteiten: | Openbaar parkeren, op eigen terrein |
| Soorten: | Aangebouwd steen, carport |
| Capaciteit: | 1 |
Interesse?
Voor meer informatie of het plannen van een bezichtiging helpen we je graag verder.
Kan ik deze woning betalen?