Oss
Hofvijver 104
€ 465.000,- k.k.
Delen
{ if (inProgress) { return; } inProgress = true; favorite ? $store.favorites.delete(identifier, market, address, city, () => { inProgress = false; }): $store.favorites.add(identifier, market, address, city, () => { inProgress = false; }); favorite = !favorite; }"
>
Favoriet
Woning:
125 m2
Perceel: 157 m2
Slaapkamers: 4
Bouwjaar: 2000
Energielabel: B
Over deze woning
Dit is zonder twijfel een woning met een unieke ligging. Je woont hier in een rustig en besloten hofje, maar aan de voorzijde geniet je juist van een heerlijk vrij uitzicht. Geen directe overburen die naar binnen kijken, en geen auto's in de straat, wat direct zorgt voor privacy en een ruimtelijk gevoel. Dankzij de hoekligging komt datzelfde prettige gevoel ook terug in de zonnige achtertuin, waar je eveneens veel vrijheid ervaart.
Binnen merk je meteen dat de ligging ook hier een groot voordeel geeft. De extra ramen in de zijgevel zorgen voor veel daglicht en een open, lichte sfeer. De afwerking is fris en modern en sluit perfect aan bij het comfortabele karakter van deze gezinswoning. Met meerdere slaapkamers, twee badkamers en praktische extra ruimtes is dit een huis waar je zo in kunt.
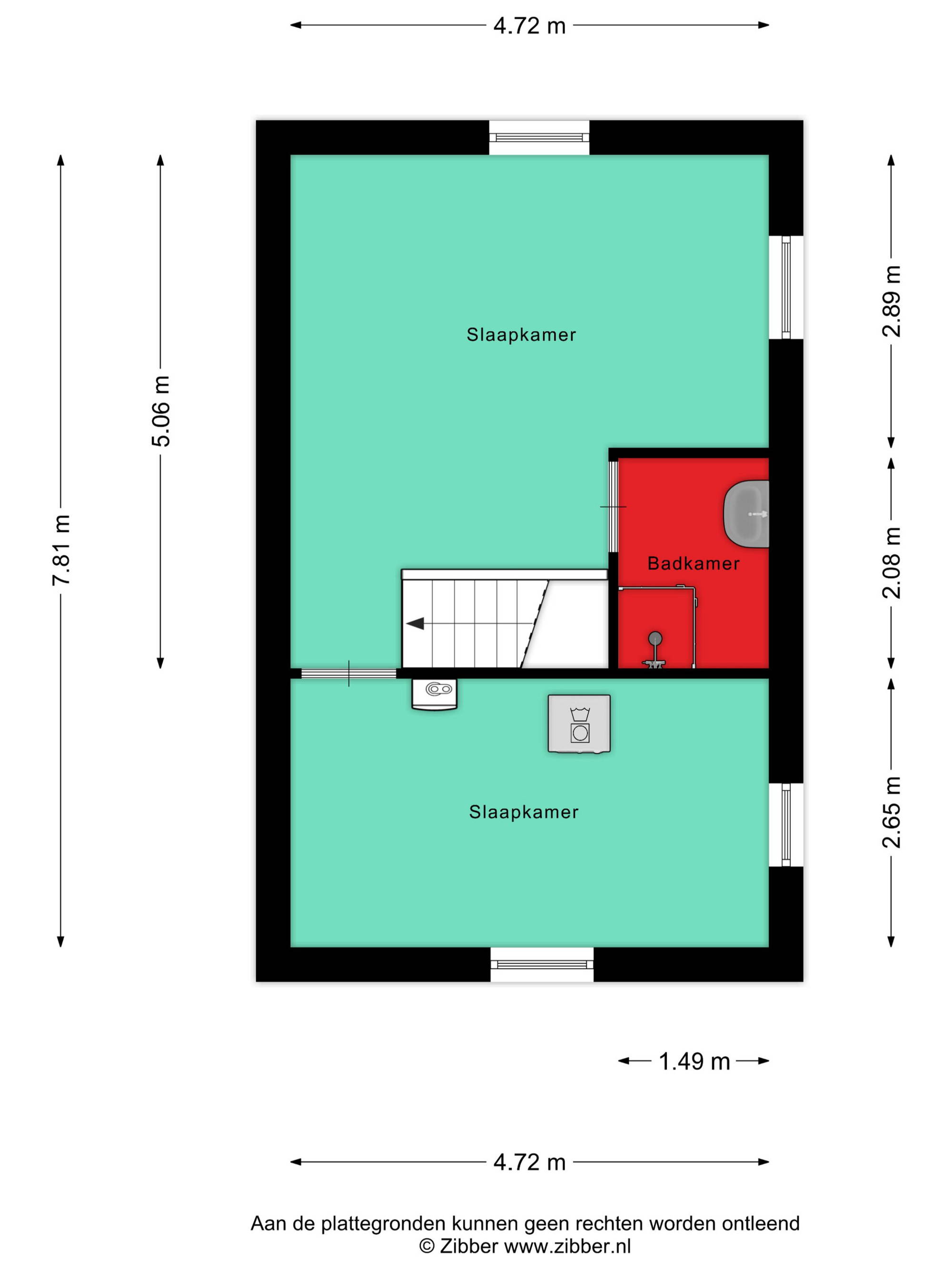
Een fijne verrassing is de indeling met maar liefst twee badkamers en vier (slaap)kamers verdeeld over de verdiepingen. Op de eerste verdieping bevinden zich twee comfortabele slaapkamers en een nette badkamer. Deze badkamer is recent (2025) deels gemoderniseerd en uitgevoerd met een modern wasmeubel en een douche, waardoor het geheel helemaal van deze tijd is.
De eerste verdieping is daarnaast duidelijk met aandacht afgewerkt. Er bevinden zich twee slaapkamers en de gehele verdieping is voorzien van een drempelloze pvc-vloer. De tweede slaapkamer beschikt over een praktische inbouwkast, ideaal voor extra bergruimte.
Op de tweede verdieping vind je nog eens een derde slaapkamer én een tweede badkamer. Ook is er op deze verdieping een ruime berging aanwezig met de aansluitingen voor een wasmachine en droger eventueel is deze ruimte ook anders te gebruiken (denk aan werkruimte, hobbykamer of extra slaapkamer). Hier hangt tevens de installatie: een Nefit HR-combiketel en de mechanische ventilatie.
De begane grond voelt direct warm en verzorgd aan. Hier ligt een drempelloze pvc visgraatvloer met comfortabele vloerverwarming, wat zorgt voor een strak geheel en veel wooncomfort. In de woonkamer vormt de aluminium schuifpui een mooie verbinding met buiten en laat bovendien veel licht binnen. Daarnaast is de woning voorzien van elektrische zonwering.
De keuken is in 2021 vernieuwd en modern uitgevoerd. Je beschikt hier over een complete opstelling met een 4-pits inductiekookplaat met Bora-afzuiging, een oven, vaatwasser, koelkast en een kunststof werkblad. Een fijne plek voor wie graag kookt én houdt van een strakke uitstraling.
Buiten is het eveneens goed geregeld. Achter in de tuin staat een stenen garage en je kunt parkeren op eigen terrein. Er is bovendien een oprit en dankzij de afgesloten elektrische poort bereik je het achtergelegen terrein veilig en comfortabel. De afgesloten poort en het gezamenlijke beheer vallen onder de VvE, met een bijdrage van € 90,- per jaar.
Bijzonderheden
+ Nefit HR-combiketel (bouwjaar 2013).
+ Mechanische ventilatie.
+ Moderne meterkast
+ Glasvezelaansluiting.
+ Begane grond voorzien van pvc visgraatvloer met vloerverwarming.
+ Aluminium schuifpui en elektrische zonwering.
+ Keuken vernieuwd in 2021 met complete inbouwapparatuur.
+ Vier kamers op de verdiepingen + twee badkamers.
+ Parkeren op eigen terrein met garage, oprit en afgesloten elektrische poort.
+ VvE-bijdrage: € 90,- per jaar.
Aanvaarding
In nader overleg.
Binnen merk je meteen dat de ligging ook hier een groot voordeel geeft. De extra ramen in de zijgevel zorgen voor veel daglicht en een open, lichte sfeer. De afwerking is fris en modern en sluit perfect aan bij het comfortabele karakter van deze gezinswoning. Met meerdere slaapkamers, twee badkamers en praktische extra ruimtes is dit een huis waar je zo in kunt.
Een fijne verrassing is de indeling met maar liefst twee badkamers en vier (slaap)kamers verdeeld over de verdiepingen. Op de eerste verdieping bevinden zich twee comfortabele slaapkamers en een nette badkamer. Deze badkamer is recent (2025) deels gemoderniseerd en uitgevoerd met een modern wasmeubel en een douche, waardoor het geheel helemaal van deze tijd is.
De eerste verdieping is daarnaast duidelijk met aandacht afgewerkt. Er bevinden zich twee slaapkamers en de gehele verdieping is voorzien van een drempelloze pvc-vloer. De tweede slaapkamer beschikt over een praktische inbouwkast, ideaal voor extra bergruimte.
Op de tweede verdieping vind je nog eens een derde slaapkamer én een tweede badkamer. Ook is er op deze verdieping een ruime berging aanwezig met de aansluitingen voor een wasmachine en droger eventueel is deze ruimte ook anders te gebruiken (denk aan werkruimte, hobbykamer of extra slaapkamer). Hier hangt tevens de installatie: een Nefit HR-combiketel en de mechanische ventilatie.
De begane grond voelt direct warm en verzorgd aan. Hier ligt een drempelloze pvc visgraatvloer met comfortabele vloerverwarming, wat zorgt voor een strak geheel en veel wooncomfort. In de woonkamer vormt de aluminium schuifpui een mooie verbinding met buiten en laat bovendien veel licht binnen. Daarnaast is de woning voorzien van elektrische zonwering.
De keuken is in 2021 vernieuwd en modern uitgevoerd. Je beschikt hier over een complete opstelling met een 4-pits inductiekookplaat met Bora-afzuiging, een oven, vaatwasser, koelkast en een kunststof werkblad. Een fijne plek voor wie graag kookt én houdt van een strakke uitstraling.
Buiten is het eveneens goed geregeld. Achter in de tuin staat een stenen garage en je kunt parkeren op eigen terrein. Er is bovendien een oprit en dankzij de afgesloten elektrische poort bereik je het achtergelegen terrein veilig en comfortabel. De afgesloten poort en het gezamenlijke beheer vallen onder de VvE, met een bijdrage van € 90,- per jaar.
Bijzonderheden
+ Nefit HR-combiketel (bouwjaar 2013).
+ Mechanische ventilatie.
+ Moderne meterkast
+ Glasvezelaansluiting.
+ Begane grond voorzien van pvc visgraatvloer met vloerverwarming.
+ Aluminium schuifpui en elektrische zonwering.
+ Keuken vernieuwd in 2021 met complete inbouwapparatuur.
+ Vier kamers op de verdiepingen + twee badkamers.
+ Parkeren op eigen terrein met garage, oprit en afgesloten elektrische poort.
+ VvE-bijdrage: € 90,- per jaar.
Aanvaarding
In nader overleg.
Lees meer
Minder tonen
Kenmerken
| Overdracht | |
|---|---|
| Prijs: | € 465.000,- k.k. |
| Status: | Verkocht onder voorbehoud |
| Aanvaarding: | In overleg |
| Bouw | |
| type-object: | Woonhuis |
| Type: | Hoekwoning |
| Soort: | Eengezinswoning |
| Bouwjaar: | 2000 |
| Oppervlakten en inhoud | |
| Woonoppervlakte: | 125 m2 |
| Perceeloppervlakte: | 157 m2 |
| Inhoud: | 441 m3 |
| Indeling | |
| Kamers: | 5 |
| Slaapkamers: | 4 |
| Energie | |
| Energieklasse: | B |
| Isolatievormen: | Dakisolatie, muurisolatie, vloerisolatie, dubbel glas, volledig geisoleerd |
| Soorten verwarming: | Cv ketel, vloerverwarming gedeeltelijk |
| Soorten warm water: | Cv ketel |
| CV ketel type: | Nefit |
| CV ketel eigendom: | Eigendom |
| Buitenruimte | |
| Tuintypen: | Achtertuin, voortuin |
| Hoofdtuin: | Achtertuin |
| Ligging: | Zuid |
| Achteringang: | Ja |
| Lengte: | 14,54 m |
| Breedte: | 5,96 m |
| Oppervlakte: | 87 m2 |
| Parkeren | |
| Parkeerfaciliteiten: | Openbaar parkeren, op afgesloten terrein |
| Soorten: | Vrijstaand steen |
| Capaciteit: | 1 |
Interesse?
Voor meer informatie of het plannen van een bezichtiging helpen we je graag verder.
Kan ik deze woning betalen?