Oss
Kappeijnestraat 21
€ 339.000,- k.k.
Delen
{ if (inProgress) { return; } inProgress = true; favorite ? $store.favorites.delete(identifier, market, address, city, () => { inProgress = false; }): $store.favorites.add(identifier, market, address, city, () => { inProgress = false; }); favorite = !favorite; }"
>
Favoriet
Woning:
122 m2
Perceel: 173 m2
Slaapkamers: 4
Bouwjaar: 1971
Energielabel: C
Over deze woning
Welkom aan de Kappeijnestraat 21 in Oss! Deze ruime hoekwoning met garage, achterom en dakkapel is gelegen in een rustige, kindvriendelijke woonwijk met alle voorzieningen in de directe nabijheid. De woning biedt vier slaapkamers, een lichte woonkamer, een nette keuken en een fijne tuin met veel privacy ideaal voor gezinnen.
De woning ligt op een fijne en centrale locatie in Oss, met alle voorzieningen dichtbij. Speeltuin De Elckerlyc en de kinderboerderij liggen om de hoek ideaal voor gezinnen met kinderen. Voor de dagelijkse boodschappen zijn er twee wijkwinkelcentra in de directe omgeving, en voor een ontspannen wandeling is het Elzeneindpark perfect. Daarnaast zijn Station Oss West en de A50/A59 binnen enkele minuten bereikbaar.
Via de entree met meterkast, toilet en trapopgang bereik je de woonkamer. De lichte woonkamer heeft een laminaatvloer. Onder de trap bevindt zich een handige trapkast voor extra opbergruimte.
De keuken is praktisch ingericht en uitgerust met een koelkast, oven, gaskookplaat en afzuigkap. Vanuit de keuken is er toegang tot de achtertuin, die beschikt over een achterom en een aangebouwde houten berging. Aan de zijkant van het huis bevindt zich bovendien een garage.
Op de eerste verdieping bevinden zich drie slaapkamers en een badkamer. De badkamer is compleet ingericht met een douche, wastafel en toilet.
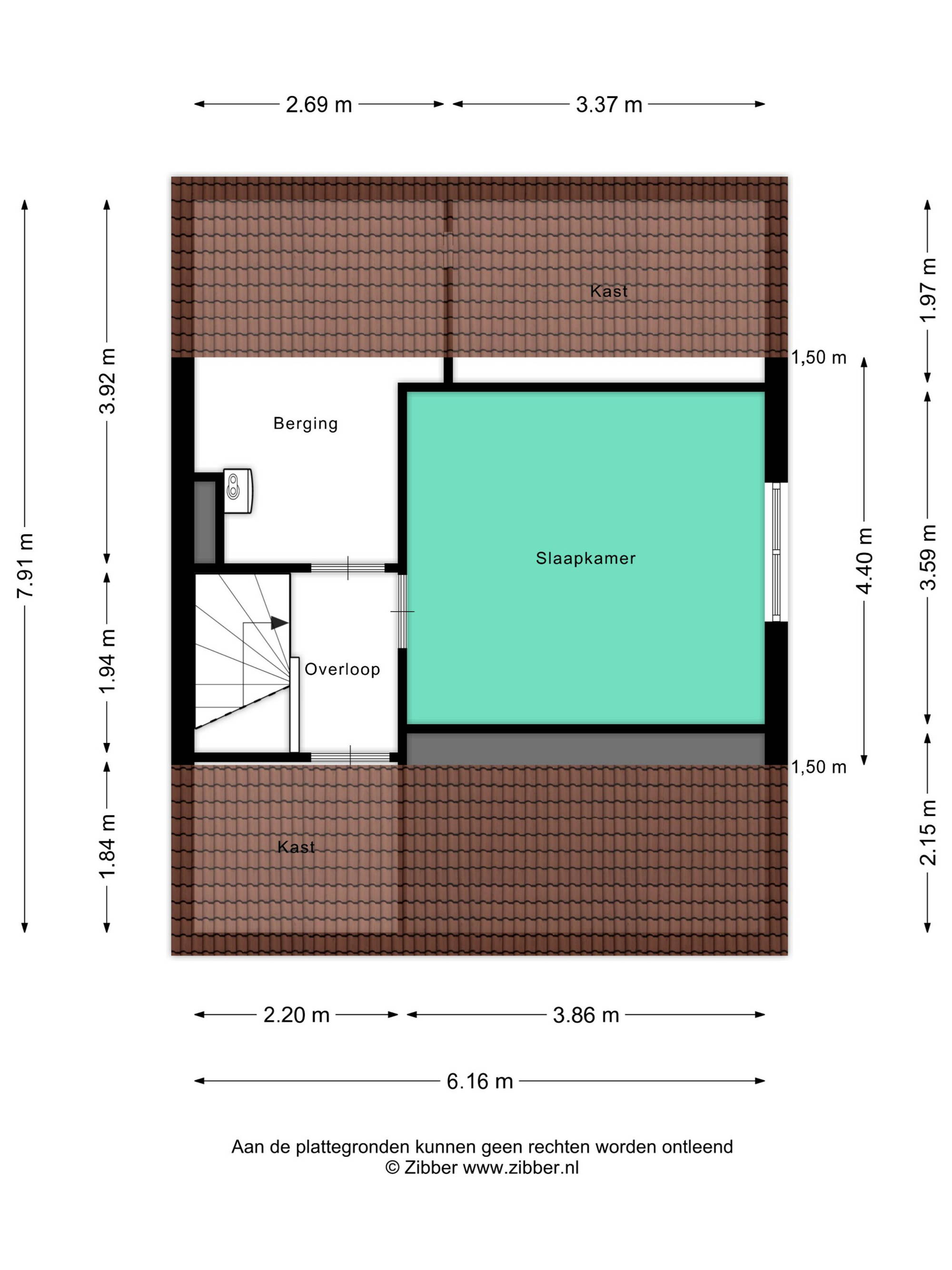
Via een vaste trap bereik je de tweede verdieping met voorzolder, bergruimte (met aansluiting voor wasmachine en droger) en een vierde slaapkamer. Deze kamer is voorzien van een dakkapel, laminaatvloer en dubbel glas.
De woning beschikt over een achtertuin met achterom. Aan de voorzijde is er parkeergelegenheid.
Bijzonderheden
+ Hoekwoning met garage en mooi uitzicht aan voorzijde.
+ CV-ketel Remeha (2008).
+ Gedeeltelijk dubbel glas.
+ Projectnotaris: Van Buttingha Wichers Notarissen.
Aanvaarding
In nader overleg.
De woning ligt op een fijne en centrale locatie in Oss, met alle voorzieningen dichtbij. Speeltuin De Elckerlyc en de kinderboerderij liggen om de hoek ideaal voor gezinnen met kinderen. Voor de dagelijkse boodschappen zijn er twee wijkwinkelcentra in de directe omgeving, en voor een ontspannen wandeling is het Elzeneindpark perfect. Daarnaast zijn Station Oss West en de A50/A59 binnen enkele minuten bereikbaar.
Via de entree met meterkast, toilet en trapopgang bereik je de woonkamer. De lichte woonkamer heeft een laminaatvloer. Onder de trap bevindt zich een handige trapkast voor extra opbergruimte.
De keuken is praktisch ingericht en uitgerust met een koelkast, oven, gaskookplaat en afzuigkap. Vanuit de keuken is er toegang tot de achtertuin, die beschikt over een achterom en een aangebouwde houten berging. Aan de zijkant van het huis bevindt zich bovendien een garage.
Op de eerste verdieping bevinden zich drie slaapkamers en een badkamer. De badkamer is compleet ingericht met een douche, wastafel en toilet.
Via een vaste trap bereik je de tweede verdieping met voorzolder, bergruimte (met aansluiting voor wasmachine en droger) en een vierde slaapkamer. Deze kamer is voorzien van een dakkapel, laminaatvloer en dubbel glas.
De woning beschikt over een achtertuin met achterom. Aan de voorzijde is er parkeergelegenheid.
Bijzonderheden
+ Hoekwoning met garage en mooi uitzicht aan voorzijde.
+ CV-ketel Remeha (2008).
+ Gedeeltelijk dubbel glas.
+ Projectnotaris: Van Buttingha Wichers Notarissen.
Aanvaarding
In nader overleg.
Lees meer
Minder tonen
Kenmerken
| Overdracht | |
|---|---|
| Prijs: | € 339.000,- k.k. |
| Status: | Beschikbaar |
| Aanvaarding: | In overleg |
| Bouw | |
| type-object: | Woonhuis |
| Type: | Hoekwoning |
| Soort: | Eengezinswoning |
| Bouwjaar: | 1971 |
| Oppervlakten en inhoud | |
| Woonoppervlakte: | 122 m2 |
| Perceeloppervlakte: | 173 m2 |
| Inhoud: | 434 m3 |
| Indeling | |
| Kamers: | 5 |
| Slaapkamers: | 4 |
| Energie | |
| Energieklasse: | C |
| Isolatievormen: | Grotendeels dubbelglas |
| Soorten verwarming: | Cv ketel |
| Soorten warm water: | Cv ketel |
| CV ketel type: | Nefit |
| CV ketel eigendom: | Eigendom |
| Buitenruimte | |
| Tuintypen: | Achtertuin, voortuin |
| Hoofdtuin: | Achtertuin |
| Ligging: | Noord |
| Achteringang: | Ja |
| Lengte: | 14,42 m |
| Breedte: | 6,79 m |
| Oppervlakte: | 98 m2 |
| Parkeren | |
| Parkeerfaciliteiten: | Openbaar parkeren |
| Soorten: | Garagebox |
| Capaciteit: | 1 |
Interesse?
Voor meer informatie of het plannen van een bezichtiging helpen we je graag verder.
Kan ik deze woning betalen?