Oss
Kievit 60
€ 350.000,- k.k.
Delen
{ if (inProgress) { return; } inProgress = true; favorite ? $store.favorites.delete(identifier, market, address, city, () => { inProgress = false; }): $store.favorites.add(identifier, market, address, city, () => { inProgress = false; }); favorite = !favorite; }"
>
Favoriet
Woning:
119 m2
Perceel: 249 m2
Slaapkamers: 4
Bouwjaar: 1974
Energielabel: D
Over deze woning
Ruime eindwoning met garage, vier slaapkamers en centrale ligging
Op een centrale locatie in Oss staat deze verrassend ruime gezinswoning. De woning beschikt over vier slaapkamers, een aanpandige garage, een achter- én voortuin en biedt volop mogelijkheden om geheel naar eigen wens te moderniseren.
De ligging is ideaal: binnen enkele minuten rijd je via de Megensebaan naar de snelwegen richting Eindhoven, Nijmegen of ’s-Hertogenbosch. Tegelijkertijd wandel of fiets je zo het gezellige centrum van Oss in, met winkels, scholen en sportvoorzieningen binnen handbereik.
Hal/entree met meterkast, trapkast en toiletruimte. Ruime woonkamer met aangrenzende eetkamer en een eenvoudige keuken voorzien van diverse inbouwapparatuur. Vanuit de woning is de aanpandige garage bereikbaar en aan de achterzijde bevindt zich een kleine uitbouw die nog kan worden afgewerkt – ideaal voor wie extra woonruimte wil creëren.
Overloop met drie slaapkamers en een eenvoudige badkamer voorzien van compleet sanitair.
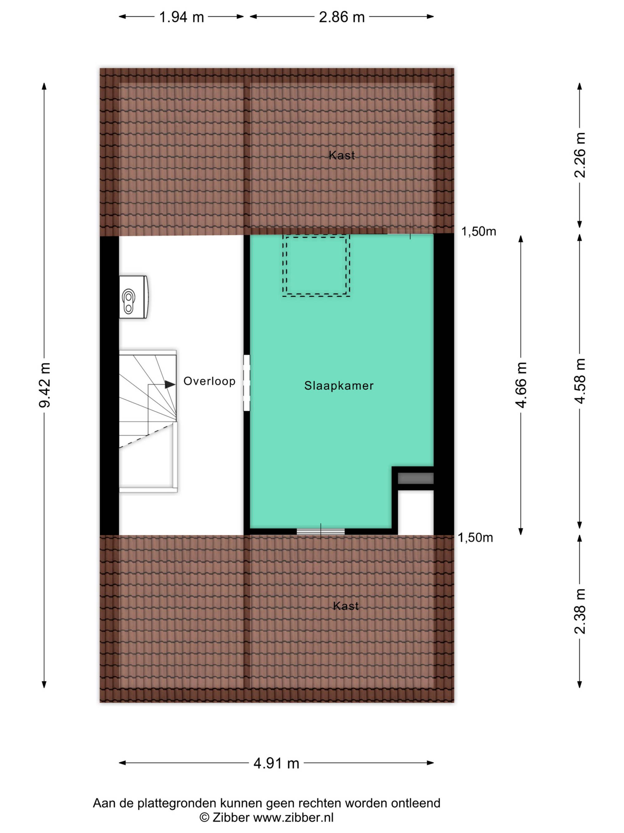
Via een vaste trap bereik je de zolderverdieping met overloop en een vierde slaapkamer.
Kenmerken
+ Energielabel D
+ Eindwoning met aanpandige garage en externe berging
+ Vier slaapkamers
+ Achtertuin en voortuin
+ Traditioneel gebouwd met betonnen vloeren en metselwerk gevels
+ Zadeldak met pannen en plat dak met bitumen
+ Verwarming en warm water via cv-installatie (2005)
+ Grotendeels voorzien van houten kozijnen met enkel en dubbel glas
+ Natuurlijke ventilatie
+ Elektra bestaande uit 5 groepen
+ Centrale ligging nabij centrum en uitvalswegen
Aanvaarding
In nader overleg.
Op een centrale locatie in Oss staat deze verrassend ruime gezinswoning. De woning beschikt over vier slaapkamers, een aanpandige garage, een achter- én voortuin en biedt volop mogelijkheden om geheel naar eigen wens te moderniseren.
De ligging is ideaal: binnen enkele minuten rijd je via de Megensebaan naar de snelwegen richting Eindhoven, Nijmegen of ’s-Hertogenbosch. Tegelijkertijd wandel of fiets je zo het gezellige centrum van Oss in, met winkels, scholen en sportvoorzieningen binnen handbereik.
Hal/entree met meterkast, trapkast en toiletruimte. Ruime woonkamer met aangrenzende eetkamer en een eenvoudige keuken voorzien van diverse inbouwapparatuur. Vanuit de woning is de aanpandige garage bereikbaar en aan de achterzijde bevindt zich een kleine uitbouw die nog kan worden afgewerkt – ideaal voor wie extra woonruimte wil creëren.
Overloop met drie slaapkamers en een eenvoudige badkamer voorzien van compleet sanitair.
Via een vaste trap bereik je de zolderverdieping met overloop en een vierde slaapkamer.
Kenmerken
+ Energielabel D
+ Eindwoning met aanpandige garage en externe berging
+ Vier slaapkamers
+ Achtertuin en voortuin
+ Traditioneel gebouwd met betonnen vloeren en metselwerk gevels
+ Zadeldak met pannen en plat dak met bitumen
+ Verwarming en warm water via cv-installatie (2005)
+ Grotendeels voorzien van houten kozijnen met enkel en dubbel glas
+ Natuurlijke ventilatie
+ Elektra bestaande uit 5 groepen
+ Centrale ligging nabij centrum en uitvalswegen
Aanvaarding
In nader overleg.
Lees meer
Minder tonen
Kenmerken
Overdracht | |
---|---|
Prijs: | € 350.000,- k.k. |
Status: | Beschikbaar |
Aanvaarding: | In overleg |
Bouw | |
type-object: | Woonhuis |
Type: | Eindwoning |
Soort: | Eengezinswoning |
Bouwjaar: | 1974 |
Oppervlakten en inhoud | |
Woonoppervlakte: | 119 m2 |
Perceeloppervlakte: | 249 m2 |
Inhoud: | 583 m3 |
Indeling | |
Kamers: | 5 |
Slaapkamers: | 4 |
Energie | |
Energieklasse: | D |
Isolatievormen: | Dubbel glas |
Soorten verwarming: | Cv ketel |
Soorten warm water: | Cv ketel |
CV ketel type: | Nefit Ecomline HR classic |
CV ketel eigendom: | Eigendom |
Buitenruimte | |
Tuintypen: | Achtertuin, voortuin |
Hoofdtuin: | Achtertuin |
Ligging: | West |
Achteringang: | Nee |
Lengte: | 10,21 m |
Breedte: | 9,00 m |
Oppervlakte: | 92 m2 |
Parkeren | |
Parkeerfaciliteiten: | Openbaar parkeren, op eigen terrein |
Soorten: | Aangebouwd steen |
Capaciteit: | 1 |
Interesse?
Voor meer informatie of het plannen van een bezichtiging helpen we je graag verder.
Kan ik deze woning betalen?