Oss
Kievit 90
€ 375.000,- k.k.
Delen
{ if (inProgress) { return; } inProgress = true; favorite ? $store.favorites.delete(identifier, market, address, city, () => { inProgress = false; }): $store.favorites.add(identifier, market, address, city, () => { inProgress = false; }); favorite = !favorite; }"
>
Favoriet
Woning:
120 m2
Perceel: 137 m2
Slaapkamers: 4
Bouwjaar: 1974
Energielabel: C
Over deze woning
Ruime gezinswoning met 4 slaapkamers, goed onderhouden en instapklaar
Op een fijne en centrale locatie in Oss staat deze verrassend ruime gezinswoning. Met vier slaapkamers, kunststof kozijnen met HR++ glas en een goed onderhouden staat van afwerking. Daarbij is er recent flink geïnvesteerd in onderhoud: nieuwe dakpannen, nieuw dakleer en een nieuw dakraam zijn al aanwezig.
De ligging is ideaal: binnen enkele minuten rijd je via de Megensebaan naar de snelwegen richting Eindhoven, Nijmegen of ’s-Hertogenbosch. Tegelijkertijd fiets of wandel je zo het centrum van Oss in.
Via de entree met toilet, fontein, meterkast en glasvezelaansluiting kom je in de lichte woonkamer met praktische indeling. De halfopen keuken is uitgevoerd met een granieten blad, 4-pits inductiekookplaat, oven, afzuigkap en handige trapkast.
De achtertuin is een heerlijk plekje met veel privacy dankzij het ontbreken van directe achterburen. Er is een terras en zowel een stenen schuur als een berging met nieuwe golfplaten.
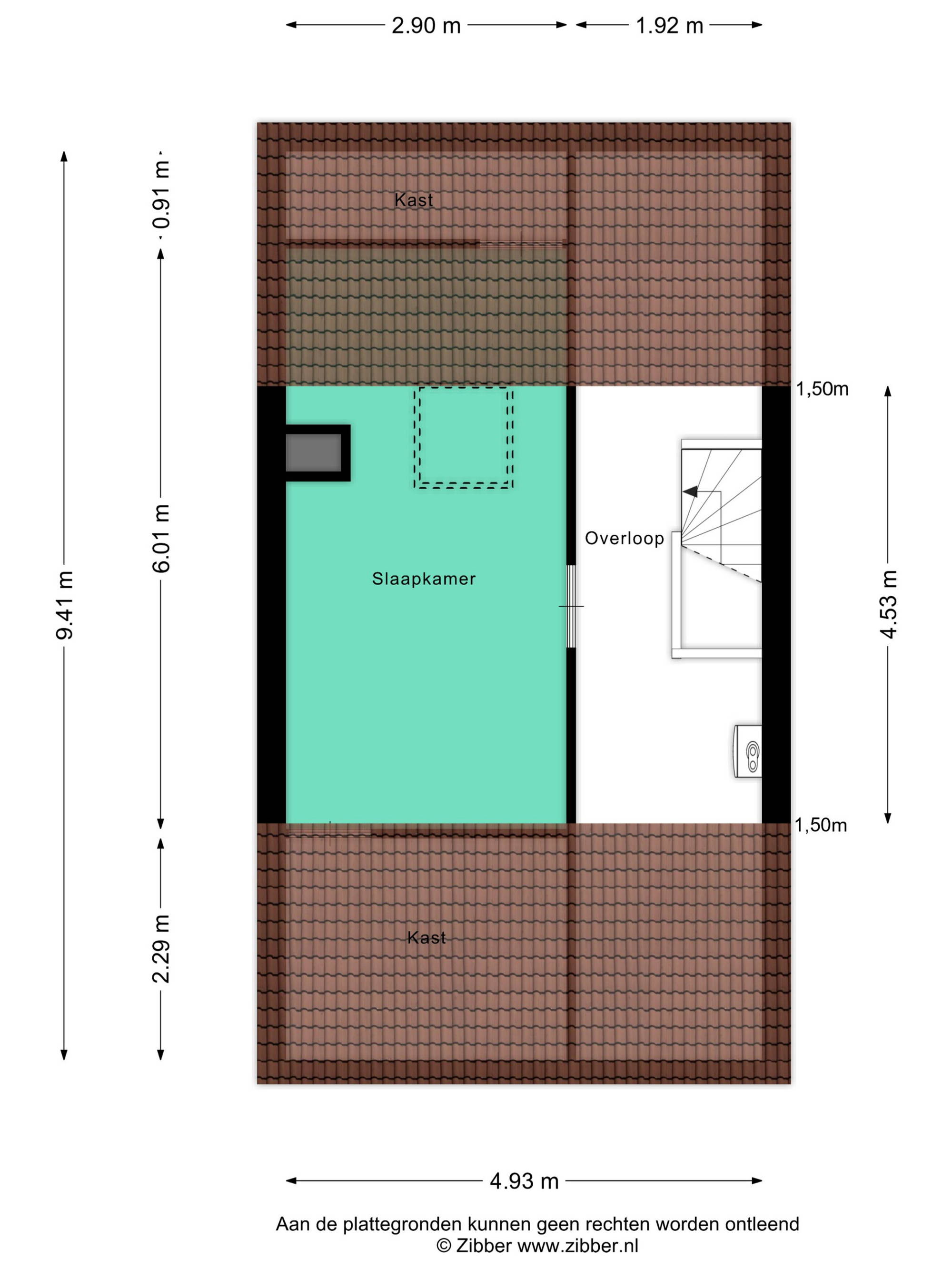
De overloop biedt toegang tot drie slaapkamers en de badkamer. De kamers zijn netjes afgewerkt met onder andere stucwerk, spuitplafond en vloerafwerking. De badkamer is geheel betegeld en beschikt over een bad/douchecombinatie, wasmeubel, wc, mechanische ventilatie én aansluiting voor de wasmachine.
Op de voorzolder vind je de Vaillant cv-ketel uit 2021 en extra bergruimte. Hier is ook de vierde slaapkamer met nieuw dakraam (HR++ glas), laminaatvloer en veel lichtinval.
Pluspunten
+ Energielabel C nieuwsgierig naar hoe je deze woning kunt verduurzamen tot een energielabel A, en wat daar de kosten van zijn? Vraag dan ons kantoor naar het beschikbare verduurzamingsrapport!
+ Ruime gezinswoning met 4 slaapkamers
+ Goed onderhouden, recent vernieuwd dak en dakleer
+ Kunststof kozijnen met HR++ glas (recent vernieuwd)
+ Tuin zonder directe achterburen, met terras en 2 bergingen
+ Cv-ketel (Vaillant, 2021)
+ Centrale ligging met snelle verbinding naar snelwegen én het centrum
Aanvaarding
In nader overleg.
Op een fijne en centrale locatie in Oss staat deze verrassend ruime gezinswoning. Met vier slaapkamers, kunststof kozijnen met HR++ glas en een goed onderhouden staat van afwerking. Daarbij is er recent flink geïnvesteerd in onderhoud: nieuwe dakpannen, nieuw dakleer en een nieuw dakraam zijn al aanwezig.
De ligging is ideaal: binnen enkele minuten rijd je via de Megensebaan naar de snelwegen richting Eindhoven, Nijmegen of ’s-Hertogenbosch. Tegelijkertijd fiets of wandel je zo het centrum van Oss in.
Via de entree met toilet, fontein, meterkast en glasvezelaansluiting kom je in de lichte woonkamer met praktische indeling. De halfopen keuken is uitgevoerd met een granieten blad, 4-pits inductiekookplaat, oven, afzuigkap en handige trapkast.
De achtertuin is een heerlijk plekje met veel privacy dankzij het ontbreken van directe achterburen. Er is een terras en zowel een stenen schuur als een berging met nieuwe golfplaten.
De overloop biedt toegang tot drie slaapkamers en de badkamer. De kamers zijn netjes afgewerkt met onder andere stucwerk, spuitplafond en vloerafwerking. De badkamer is geheel betegeld en beschikt over een bad/douchecombinatie, wasmeubel, wc, mechanische ventilatie én aansluiting voor de wasmachine.
Op de voorzolder vind je de Vaillant cv-ketel uit 2021 en extra bergruimte. Hier is ook de vierde slaapkamer met nieuw dakraam (HR++ glas), laminaatvloer en veel lichtinval.
Pluspunten
+ Energielabel C nieuwsgierig naar hoe je deze woning kunt verduurzamen tot een energielabel A, en wat daar de kosten van zijn? Vraag dan ons kantoor naar het beschikbare verduurzamingsrapport!
+ Ruime gezinswoning met 4 slaapkamers
+ Goed onderhouden, recent vernieuwd dak en dakleer
+ Kunststof kozijnen met HR++ glas (recent vernieuwd)
+ Tuin zonder directe achterburen, met terras en 2 bergingen
+ Cv-ketel (Vaillant, 2021)
+ Centrale ligging met snelle verbinding naar snelwegen én het centrum
Aanvaarding
In nader overleg.
Lees meer
Minder tonen
Kenmerken
Overdracht | |
---|---|
Prijs: | € 375.000,- k.k. |
Status: | Beschikbaar |
Aanvaarding: | In overleg |
Bouw | |
type-object: | Woonhuis |
Type: | Tussenwoning |
Soort: | Eengezinswoning |
Bouwjaar: | 1974 |
Oppervlakten en inhoud | |
Woonoppervlakte: | 120 m2 |
Perceeloppervlakte: | 137 m2 |
Inhoud: | 425 m3 |
Indeling | |
Kamers: | 5 |
Slaapkamers: | 4 |
Energie | |
Energieklasse: | C |
Soorten verwarming: | Cv ketel |
Soorten warm water: | Cv ketel |
CV ketel type: | Vaillant |
CV ketel eigendom: | Eigendom |
Buitenruimte | |
Tuintypen: | Achtertuin, voortuin |
Hoofdtuin: | Achtertuin |
Ligging: | Noord |
Achteringang: | Ja |
Lengte: | 10,00 m |
Breedte: | 5,00 m |
Oppervlakte: | 50 m2 |
Parkeren | |
Parkeerfaciliteiten: | Openbaar parkeren |
Soorten: | Geen garage |
Interesse?
Voor meer informatie of het plannen van een bezichtiging helpen we je graag verder.
Kan ik deze woning betalen?