Oss
Strovlasstraat 18
€ 425.000,- k.k.
Delen
{ if (inProgress) { return; } inProgress = true; favorite ? $store.favorites.delete(identifier, market, address, city, () => { inProgress = false; }): $store.favorites.add(identifier, market, address, city, () => { inProgress = false; }); favorite = !favorite; }"
>
Favoriet
Woning:
122 m2
Perceel: 255 m2
Slaapkamers: 4
Bouwjaar: 1970
Energielabel: C
Over deze woning
Deze sfeervolle woning biedt vier slaapkamers, gezellige houtkachel in de woonkamer, zonnige tuin op het zuidwesten én een ruime garage. Een groot pluspunt is de bereikbaarheid: op loopafstand van station Oss West en op 10 minuten rijden van de snelweg.
Vanuit de hal stap je binnen in de ruime, lichte woonkamer, met aan beide kanten grote ramen. De schouw met houtkachel maakt dit een gezellige warme plek. Aangrenzend vind je de keuken.
Vanuit de keuken loop je de tuin in. Deze ligt op het zuidwesten en is grotendeels bestraat met groene borders. Vanuit de tuin is de ruime garage bereikbaar, compleet met verwarming en stroom.
Op de eerste verdieping bevinden zich drie slaapkamers, voorzien van rolluiken voor een fijne donkere kamer ’s nachts. Ook is op deze verdieping de volledig betegelde badkamer met ligbad, douche, toilet en wastafel. Een plus: de badkamer heeft een raam, voor natuurlijk daglicht en ventilatie.
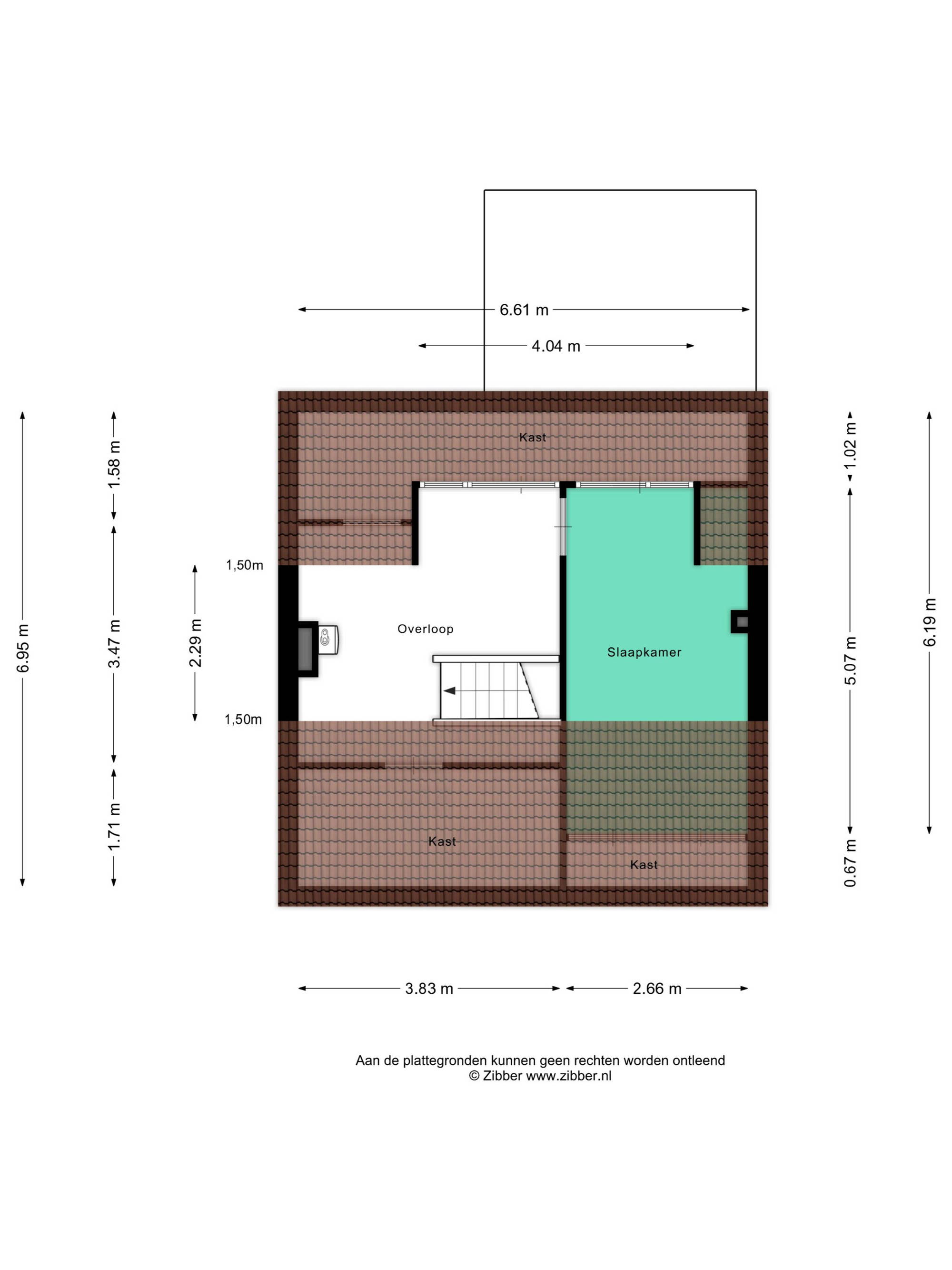
Via een vaste trap loop je vervolgens naar de tweede verdieping. Deze verdieping is voorzien van een dakkapel en hier vind je nog een slaapkamer, die uiteraard ook als hobby- of werkkamer gebruikt kan worden. Zowel op de slaapkamers als op de voorzolder vind je veel bergruimte dankzij de vele ingebouwde kasten.
De woning is gelegen in de woonwijk Vlashoek. Een groot pluspunt is de bereikbaarheid: station Oss West is op loopafstand en binnen 10 minuten rijd je op de snelweg richting Den Bosch, Eindhoven of Nijmegen. Ook fiets je in 3 minuten naar Oss centrum en zijn verschillende speeltuinen, supermarkten en scholen in de buurt.
Pluspunten
+ Je stapt binnen in de entree met toilet en trap naar de eerste verdieping.
+ De keuken is voorzien van een combi magnetron, spoelbak en keramisch kookplaat. Ook vind je hier witgoedaansluitingen en is er een directe deur naar buiten.
+ Lichte woonkamer met ramen aan beide zijden is voorzien van schouw met houtkachel.
+ Drie slaapkamers op de eerste verdieping, voorzien van rolluiken.
+ Volledig betegelde badkamer met raam. Voorzien van ligbad, douche, wastafel en toilet.
+ Vaste trap naar de tweede verdieping, met dakkapel, een extra slaapkamer en veel bergruimte hier en op de voorzolder – door de vele ingebouwde kasten.
+ Vrijstaande stenen garage van 34 m2 met verwarming en stroom.
Bijzonderheden
+ Energielabel C
+ CV-ketel Intergas (2014)
+ Gedeeltelijk dubbel glas
Aanvaarding
In nader overleg.
Vanuit de hal stap je binnen in de ruime, lichte woonkamer, met aan beide kanten grote ramen. De schouw met houtkachel maakt dit een gezellige warme plek. Aangrenzend vind je de keuken.
Vanuit de keuken loop je de tuin in. Deze ligt op het zuidwesten en is grotendeels bestraat met groene borders. Vanuit de tuin is de ruime garage bereikbaar, compleet met verwarming en stroom.
Op de eerste verdieping bevinden zich drie slaapkamers, voorzien van rolluiken voor een fijne donkere kamer ’s nachts. Ook is op deze verdieping de volledig betegelde badkamer met ligbad, douche, toilet en wastafel. Een plus: de badkamer heeft een raam, voor natuurlijk daglicht en ventilatie.
Via een vaste trap loop je vervolgens naar de tweede verdieping. Deze verdieping is voorzien van een dakkapel en hier vind je nog een slaapkamer, die uiteraard ook als hobby- of werkkamer gebruikt kan worden. Zowel op de slaapkamers als op de voorzolder vind je veel bergruimte dankzij de vele ingebouwde kasten.
De woning is gelegen in de woonwijk Vlashoek. Een groot pluspunt is de bereikbaarheid: station Oss West is op loopafstand en binnen 10 minuten rijd je op de snelweg richting Den Bosch, Eindhoven of Nijmegen. Ook fiets je in 3 minuten naar Oss centrum en zijn verschillende speeltuinen, supermarkten en scholen in de buurt.
Pluspunten
+ Je stapt binnen in de entree met toilet en trap naar de eerste verdieping.
+ De keuken is voorzien van een combi magnetron, spoelbak en keramisch kookplaat. Ook vind je hier witgoedaansluitingen en is er een directe deur naar buiten.
+ Lichte woonkamer met ramen aan beide zijden is voorzien van schouw met houtkachel.
+ Drie slaapkamers op de eerste verdieping, voorzien van rolluiken.
+ Volledig betegelde badkamer met raam. Voorzien van ligbad, douche, wastafel en toilet.
+ Vaste trap naar de tweede verdieping, met dakkapel, een extra slaapkamer en veel bergruimte hier en op de voorzolder – door de vele ingebouwde kasten.
+ Vrijstaande stenen garage van 34 m2 met verwarming en stroom.
Bijzonderheden
+ Energielabel C
+ CV-ketel Intergas (2014)
+ Gedeeltelijk dubbel glas
Aanvaarding
In nader overleg.
Lees meer
Minder tonen
Kenmerken
| Overdracht | |
|---|---|
| Prijs: | € 425.000,- k.k. |
| Status: | Beschikbaar |
| Aanvaarding: | In overleg |
| Bouw | |
| type-object: | Woonhuis |
| Type: | Twee onder een kapwoning |
| Soort: | Eengezinswoning |
| Bouwjaar: | 1970 |
| Oppervlakten en inhoud | |
| Woonoppervlakte: | 122 m2 |
| Perceeloppervlakte: | 255 m2 |
| Inhoud: | 431 m3 |
| Indeling | |
| Kamers: | 5 |
| Slaapkamers: | 4 |
| Energie | |
| Energieklasse: | C |
| Isolatievormen: | Gedeeltelijk dubbel glas |
| Soorten verwarming: | Cv ketel |
| Soorten warm water: | Cv ketel |
| CV ketel type: | Intergas |
| CV ketel eigendom: | Eigendom |
| Buitenruimte | |
| Tuintypen: | Achtertuin, voortuin |
| Hoofdtuin: | Achtertuin |
| Ligging: | Zuidwest |
| Achteringang: | Nee |
| Lengte: | 18,96 m |
| Breedte: | 7,58 m |
| Oppervlakte: | 144 m2 |
| Parkeren | |
| Parkeerfaciliteiten: | Openbaar parkeren, op eigen terrein |
| Soorten: | Vrijstaand steen |
| Capaciteit: | 1 |
Interesse?
Voor meer informatie of het plannen van een bezichtiging helpen we je graag verder.
Kan ik deze woning betalen?