Reek
Monseigneur Borretstraat 8
€ 795.000,- k.k.
Delen
{ if (inProgress) { return; } inProgress = true; favorite ? $store.favorites.delete(identifier, market, address, city, () => { inProgress = false; }): $store.favorites.add(identifier, market, address, city, () => { inProgress = false; }); favorite = !favorite; }"
>
Favoriet
Woning:
325 m2
Perceel: 1857 m2
Slaapkamers: 8
Bouwjaar: 1800
Energielabel: D
Over deze woning
Monseigneur Borretstraat 8 8A, 5375 AC met mantelzorg- /starters woning
Omschrijving:
Twee goed ingedeelde en direct te bewonen woningen ineen, op een unieke locatie - recht tegenover de kerk, in de kern van het dorp - op een mooi en ruim perceel van 1.857 m² grond.
Het is goed wonen in Reek, gelegen tussen Schaijk en Grave die een bovengemiddeld breed voorzieningenniveau kennen. Reek zelf kenmerkt zich door haar landelijke karakter met vele boerderijen en voorziet in de eerste dagelijkse voorzieningen.
De A59 en A73 zijn goed bereikbaar, steden als Nijmegen en ’s-Hertogenbosch zijn 20 autominuten rijden.
Wonen met een mantelzorgwoning of een woning voor een (studerend) kind dat toe is aan zelfstandigheid.
Er zijn immers 2 woningen, een volwaardige woning en een extra woning voor mantelzorg of waar een kind kan beginnen met zelfstandig wonen. Eventueel kan het verhuurd worden.
Hoofdwoning: Huisnummer 8a
De oorspronkelijke entree aan de voorzijde geeft toegang tot deze woning.
De woonkeuken is wit en voorzien van de nodige inbouwapparatuur en een ruime woonkamer met schuifpui. De begane grond biedt verder een grote bijkeuken met apart toilet. Achter de bijkeuken liggen de privévertrekken met een strakke badkamer met inloopdouche, dubbele wastafel, toilet, 2 grote slaapkamers en een vaste trap naar de verdieping.
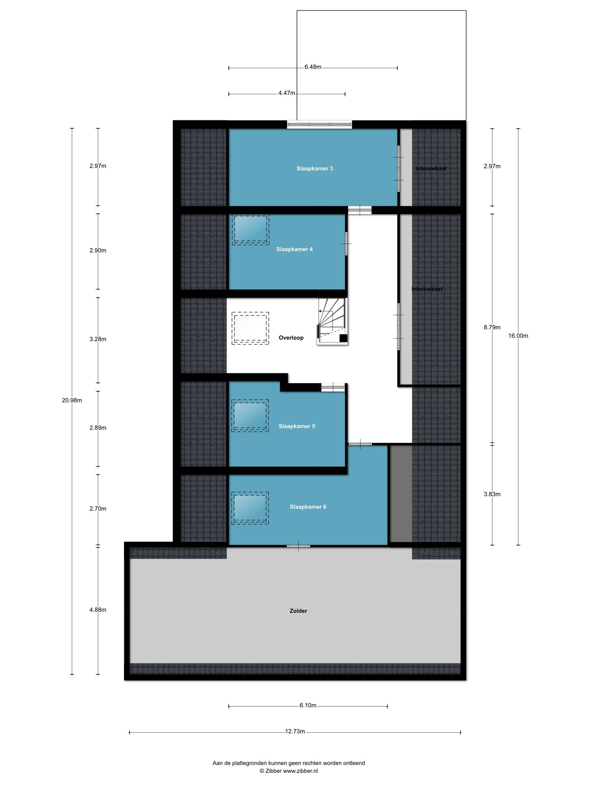
Deze woning beschikt over de volle bovenverdieping, wat deze woning maar liefst 6 grote slaapkamers geeft! De bovenverdieping geeft een zee aan ruimte met een riante overloop en 4 grote slaapkamers met Velux dakramen en een kamer met een groot “verhuisraam”
Een enorme bergzolder over het voorhuis (waar zelfs een 7de slaapkamer tot de mogelijkheden behoort) en een brede inloopgarderobe.
Vanuit de bijkeuken loop je de besloten tuin in, waar je wordt verrast door het overdekte terras met zwembad (ca. 5.5 x 8.5 m), garage, geïsoleerde kapschuur en de moestuin! De moestuin en gehele voor- en achtertuin hebben een vaste beregeningsinstallatie die overal apart geregeld kan worden. Grote garage + Nefit HR-combiketel (2014)
+ Begane grond naast woonfunctie ook 2 slaapkamers een badkamer en een 2e apart toilet
+ De keuken is wit en voorzien van de benodigde inbouwapparatuur
+ Schuifpui in woonkamer / bijkeuken met deur
+ Badkamer op begane grond met inloopdouche, dubbele wastafel en toilet
+ Vaste trap naar verdieping met grote overloop, veel licht door Velux ramen
+ Volledige bovenverdieping hoort bij deze woning, hier zijn nog eens 4 royale slaapkamers met Velux dakraam en met de mogelijkheid voor een 7e en 8e slaapkamer
+ Gehele verdieping met vloerbedekking en alle wanden met hout afgewerkt
+ Geïsoleerde kapschuur, overdekt terras bij zwembad van ca. 5,5 x 8,5 m
+ De moestuin, achter en gehele voortuin hebben een vaste beregeningsinstallatie die overal apart geregeld kan worden
+ Grote garage
+ Nefit HR-combiketel (2014)
+ Perceel grote 970 m2
+ Ruime parkeergelegenheid op eigen terrein (2 auto’s)
Appartement/tweede woning : Huisnummer 8
Deze woning is kleiner en heeft alle voorzieningen op de begane grond en is gemoderniseerd.
De U-vormige living is goed bemeten met een strakke keuken wit met zwart blad en diverse inbouwapparatuur. Het toilet is modern, eveneens uitgevoerd in zwart/wit. De badkamer is modern met grote inloopdouche, dubbele wastafel en toilet. Dat geldt zeker ook voor de eigen besloten tuin met overdekt tuinhuisje, waar het genieten is van de zon en de rust. Nr. 8 is in haar huidige uitvoering uitermate geschikt voor ouderen, omdat alle functies zich op de begane grond bevinden. Of voor starters, gezien het formaat van deze woning met 2 slaapkamers.
De woning heeft een eigen Nefit combiketel en is geschikt voor rolstoeldoorgang (doorgaande deuren 93 cm breed)
Voor het ‘appartement’ is een zij-entree gecreëerd. Er is hierdoor privacy en zelfstandigheid voor beide bewoners. Dat geldt zeker ook voor de tuinen die geheel privé en afgeschermd bij de woningen liggen en een eigen toegang/inrit hebben.
+ Alle voorzieningen zijn op de begane grond en is gemoderniseerd
+ De keuken is wit met zwart blad met diverse inbouwapparatuur
+ Apart toilet modern en eveneens uitgevoerd in zwart/wit
+ De badkamer is modern met grote inloopdouche, dubbele wastafel en toilet
+ Eigen Nefit combiketel (2018)
+ Het appartement is geschikt voor rolstoeldoorgang (doorgaande deuren 93 cm breed)
+ Buitenverblijf / tuinhuisje met grote achtertuin
+ Perceel grote 887 m²
Algemene kenmerken
+ Unieke ligging in het hart van Reek tegenover de kerk
+ Perceel van 1857 m² eigen grond met aan weerszijden een oprit naar het achter terrein
+ 2 volwaardige woningen in een pand, met volledige privacy, ook in de tuin
+ Wonen en mantelzorg
+ Appartement voor ouders (mantelzorg) of (studerend) kind dat toe is aan zelfstandigheid
+ Ruime parkeergelegenheid op eigen terrein (4 auto’s)
Aanvaarding In nader overleg.
Omschrijving:
Twee goed ingedeelde en direct te bewonen woningen ineen, op een unieke locatie - recht tegenover de kerk, in de kern van het dorp - op een mooi en ruim perceel van 1.857 m² grond.
Het is goed wonen in Reek, gelegen tussen Schaijk en Grave die een bovengemiddeld breed voorzieningenniveau kennen. Reek zelf kenmerkt zich door haar landelijke karakter met vele boerderijen en voorziet in de eerste dagelijkse voorzieningen.
De A59 en A73 zijn goed bereikbaar, steden als Nijmegen en ’s-Hertogenbosch zijn 20 autominuten rijden.
Wonen met een mantelzorgwoning of een woning voor een (studerend) kind dat toe is aan zelfstandigheid.
Er zijn immers 2 woningen, een volwaardige woning en een extra woning voor mantelzorg of waar een kind kan beginnen met zelfstandig wonen. Eventueel kan het verhuurd worden.
Hoofdwoning: Huisnummer 8a
De oorspronkelijke entree aan de voorzijde geeft toegang tot deze woning.
De woonkeuken is wit en voorzien van de nodige inbouwapparatuur en een ruime woonkamer met schuifpui. De begane grond biedt verder een grote bijkeuken met apart toilet. Achter de bijkeuken liggen de privévertrekken met een strakke badkamer met inloopdouche, dubbele wastafel, toilet, 2 grote slaapkamers en een vaste trap naar de verdieping.
Deze woning beschikt over de volle bovenverdieping, wat deze woning maar liefst 6 grote slaapkamers geeft! De bovenverdieping geeft een zee aan ruimte met een riante overloop en 4 grote slaapkamers met Velux dakramen en een kamer met een groot “verhuisraam”
Een enorme bergzolder over het voorhuis (waar zelfs een 7de slaapkamer tot de mogelijkheden behoort) en een brede inloopgarderobe.
Vanuit de bijkeuken loop je de besloten tuin in, waar je wordt verrast door het overdekte terras met zwembad (ca. 5.5 x 8.5 m), garage, geïsoleerde kapschuur en de moestuin! De moestuin en gehele voor- en achtertuin hebben een vaste beregeningsinstallatie die overal apart geregeld kan worden. Grote garage + Nefit HR-combiketel (2014)
+ Begane grond naast woonfunctie ook 2 slaapkamers een badkamer en een 2e apart toilet
+ De keuken is wit en voorzien van de benodigde inbouwapparatuur
+ Schuifpui in woonkamer / bijkeuken met deur
+ Badkamer op begane grond met inloopdouche, dubbele wastafel en toilet
+ Vaste trap naar verdieping met grote overloop, veel licht door Velux ramen
+ Volledige bovenverdieping hoort bij deze woning, hier zijn nog eens 4 royale slaapkamers met Velux dakraam en met de mogelijkheid voor een 7e en 8e slaapkamer
+ Gehele verdieping met vloerbedekking en alle wanden met hout afgewerkt
+ Geïsoleerde kapschuur, overdekt terras bij zwembad van ca. 5,5 x 8,5 m
+ De moestuin, achter en gehele voortuin hebben een vaste beregeningsinstallatie die overal apart geregeld kan worden
+ Grote garage
+ Nefit HR-combiketel (2014)
+ Perceel grote 970 m2
+ Ruime parkeergelegenheid op eigen terrein (2 auto’s)
Appartement/tweede woning : Huisnummer 8
Deze woning is kleiner en heeft alle voorzieningen op de begane grond en is gemoderniseerd.
De U-vormige living is goed bemeten met een strakke keuken wit met zwart blad en diverse inbouwapparatuur. Het toilet is modern, eveneens uitgevoerd in zwart/wit. De badkamer is modern met grote inloopdouche, dubbele wastafel en toilet. Dat geldt zeker ook voor de eigen besloten tuin met overdekt tuinhuisje, waar het genieten is van de zon en de rust. Nr. 8 is in haar huidige uitvoering uitermate geschikt voor ouderen, omdat alle functies zich op de begane grond bevinden. Of voor starters, gezien het formaat van deze woning met 2 slaapkamers.
De woning heeft een eigen Nefit combiketel en is geschikt voor rolstoeldoorgang (doorgaande deuren 93 cm breed)
Voor het ‘appartement’ is een zij-entree gecreëerd. Er is hierdoor privacy en zelfstandigheid voor beide bewoners. Dat geldt zeker ook voor de tuinen die geheel privé en afgeschermd bij de woningen liggen en een eigen toegang/inrit hebben.
+ Alle voorzieningen zijn op de begane grond en is gemoderniseerd
+ De keuken is wit met zwart blad met diverse inbouwapparatuur
+ Apart toilet modern en eveneens uitgevoerd in zwart/wit
+ De badkamer is modern met grote inloopdouche, dubbele wastafel en toilet
+ Eigen Nefit combiketel (2018)
+ Het appartement is geschikt voor rolstoeldoorgang (doorgaande deuren 93 cm breed)
+ Buitenverblijf / tuinhuisje met grote achtertuin
+ Perceel grote 887 m²
Algemene kenmerken
+ Unieke ligging in het hart van Reek tegenover de kerk
+ Perceel van 1857 m² eigen grond met aan weerszijden een oprit naar het achter terrein
+ 2 volwaardige woningen in een pand, met volledige privacy, ook in de tuin
+ Wonen en mantelzorg
+ Appartement voor ouders (mantelzorg) of (studerend) kind dat toe is aan zelfstandigheid
+ Ruime parkeergelegenheid op eigen terrein (4 auto’s)
Aanvaarding In nader overleg.
Lees meer
Minder tonen
Kenmerken
| Overdracht | |
|---|---|
| Prijs: | € 795.000,- k.k. |
| Status: | Verkocht onder voorbehoud |
| Aanvaarding: | In overleg |
| Bouw | |
| type-object: | Woonhuis |
| Type: | Vrijstaande woning |
| Soort: | Eengezinswoning |
| Bouwjaar: | 1800 |
| Oppervlakten en inhoud | |
| Woonoppervlakte: | 325 m2 |
| Perceeloppervlakte: | 1857 m2 |
| Inhoud: | 1250 m3 |
| Indeling | |
| Kamers: | 10 |
| Slaapkamers: | 8 |
| Energie | |
| Energieklasse: | D |
| Isolatievormen: | Dakisolatie, muurisolatie, vloerisolatie, gedeeltelijk dubbel glas |
| Soorten verwarming: | Cv ketel |
| Soorten warm water: | Cv ketel |
| CV ketel type: | Nefit |
| CV ketel eigendom: | Eigendom |
| Buitenruimte | |
| Tuintypen: | Tuin rondom |
| Hoofdtuin: | Tuin rondom |
| Achteringang: | Ja |
| Lengte: | 0,00 m |
| Breedte: | 0,00 m |
| Parkeren | |
| Parkeerfaciliteiten: | Openbaar parkeren, op eigen terrein |
| Soorten: | Aangebouwd steen, carport, parkeerplaats |
| Capaciteit: | 1 |
Interesse?
Voor meer informatie of het plannen van een bezichtiging helpen we je graag verder.
Kan ik deze woning betalen?