Schaijk
Hooghoef 94
€ 592.887,- v.o.n.
Delen
{ if (inProgress) { return; } inProgress = true; favorite ? $store.favorites.delete(identifier, market, address, city, () => { inProgress = false; }): $store.favorites.add(identifier, market, address, city, () => { inProgress = false; }); favorite = !favorite; }"
>
Favoriet
Woning:
143 m2
Perceel: 263 m2
Slaapkamers: 3
Energielabel: A+++
Over deze woning
BOUW GESTART – OPLEVERING 2026!
Royale, energiezuinige tweekapper met Home Comfort RegenwaterSysteem
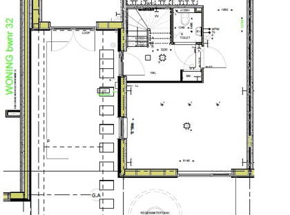
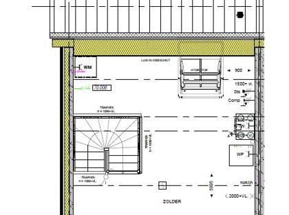
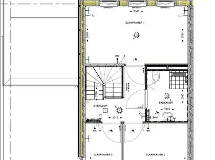
In deze moderne nieuwbouwwoning kan je optimaal genieten van het wooncomfort. Met een ruime living aan de voorzijde en een royale leefkeuken van maar liefst 25m² aan de achterzijde van de woning. Op de eerste verdieping bevinden zich 3 slaapkamers en de badkamer. De zolder is royaal en nog naar eigen wensen in te delen.
Dit alles maakt deze woning een ideale gezinswoning.
Bovendien is de woning energiezuinig en vergt weinig onderhoud. Het Home Comfort System zorgt voor een lagere waterrekening. Dit systeem is namelijk ontworpen met het doel om regenwater te gebruiken voor je toilet(ten).
KENMERKEN
• Twee parkeerplaatsen op eigen terrein
• Standaard 3 slaapkamers
• Ruime – vrij in te delen – zolder
• Badkamer met luxe Villeroy & Boch sanitair
• Vloerverwarming op de begane grond en 1e verdieping
• Zonnepanelen, hoeveelheid ligt aan de BENG berekening
• Woningborg-garantie
• Lucht/water-combiwarmtepomp
• Aangebouwde verwarmde berging / garage bereikbaar vanuit de royale leefkeuken
Royale, energiezuinige tweekapper met Home Comfort RegenwaterSysteem
In deze moderne nieuwbouwwoning kan je optimaal genieten van het wooncomfort. Met een ruime living aan de voorzijde en een royale leefkeuken van maar liefst 25m² aan de achterzijde van de woning. Op de eerste verdieping bevinden zich 3 slaapkamers en de badkamer. De zolder is royaal en nog naar eigen wensen in te delen.
Dit alles maakt deze woning een ideale gezinswoning.
Bovendien is de woning energiezuinig en vergt weinig onderhoud. Het Home Comfort System zorgt voor een lagere waterrekening. Dit systeem is namelijk ontworpen met het doel om regenwater te gebruiken voor je toilet(ten).
KENMERKEN
• Twee parkeerplaatsen op eigen terrein
• Standaard 3 slaapkamers
• Ruime – vrij in te delen – zolder
• Badkamer met luxe Villeroy & Boch sanitair
• Vloerverwarming op de begane grond en 1e verdieping
• Zonnepanelen, hoeveelheid ligt aan de BENG berekening
• Woningborg-garantie
• Lucht/water-combiwarmtepomp
• Aangebouwde verwarmde berging / garage bereikbaar vanuit de royale leefkeuken
Lees meer
Minder tonen
Kenmerken
| Overdracht | |
|---|---|
| Prijs: | € 592.887,- v.o.n. |
| Status: | Onder optie |
| Aanvaarding: | In overleg |
| Bouw | |
| type-object: | Woonhuis |
| Type: | Twee onder een kapwoning |
| Soort: | Eengezinswoning |
| Oppervlakten en inhoud | |
| Woonoppervlakte: | 143 m2 |
| Perceeloppervlakte: | 263 m2 |
| Inhoud: | 573 m3 |
| Indeling | |
| Kamers: | 4 |
| Slaapkamers: | 3 |
| Energie | |
| Energieklasse: | A+++ |
| Isolatievormen: | Volledig geisoleerd |
| Soorten verwarming: | Vloerverwarming geheel, warmte terugwininstallatie |
| Soorten warm water: | Elektrische boiler eigendom |
| Buitenruimte | |
| Tuintypen: | Achtertuin |
| Hoofdtuin: | Achtertuin |
| Ligging: | Oost |
| Achteringang: | Ja |
| Lengte: | 7,00 m |
| Breedte: | 10,00 m |
| Oppervlakte: | 70 m2 |
| Parkeren | |
| Parkeerfaciliteiten: | Op eigen terrein |
| Soorten: | Geen garage |
Interesse?
Voor meer informatie of het plannen van een bezichtiging helpen we je graag verder.
Kan ik deze woning betalen?