Schaijk
Spil 14
€ 849.000,- k.k.
Delen
{ if (inProgress) { return; } inProgress = true; favorite ? $store.favorites.delete(identifier, market, address, city, () => { inProgress = false; }): $store.favorites.add(identifier, market, address, city, () => { inProgress = false; }); favorite = !favorite; }"
>
Favoriet
Woning:
170 m2
Perceel: 370 m2
Slaapkamers: 4
Bouwjaar: 2011
Energielabel: A
Over deze woning
Deze charmante vrijstaande woning in jaren 30-stijl is instapklaar en verrassend ruim! In dit huis worden originele elementen zoals glas-in-lood en en-suite deuren prachtig gecombineerd met een moderne afwerking. De woning ligt in een rustige, groene en kindvriendelijke wijk, op loop- en fietsafstand van het gezellige centrum van Schaijk. Hier woon je heerlijk rustig, met alle voorzieningen binnen handbereik.
Via de keurig aangelegde voortuin en oprit – met ruimte voor meerdere auto’s – loop je binnen in de woning. De robuuste houten vloer die je in de entree ziet, is doorgelegd in de ruime en speels ingedeelde woonkamer. De erker, glas-in-loodramen, knusse gashaard en de en-suite deuren naar de keuken geven de woonkamer extra veel sfeer.
Aan de achterzijde van het huis ligt de royale en gezellige woonkeuken. Dit is het hart van het huis, waar je met het hele gezin samenkomt. Door materialen en kleuren slim te combineren, is de keuken modern en toch sfeervol. In deze keuken vind je een 6-pits gasfornuis met oven, afzuigkap, combimagnetron, koelkast en vaatwasser. Dankzij de grote raampartij in de erker aan de achterzijde, geniet je hier van veel natuurlijke lichtinval.
Vanuit de keuken heb je toegang tot de praktische bijkeuken, met ruimte voor een wasmachine, droger en bijvoorbeeld een extra koelkast of vriezer. Daarachter ligt een multifunctionele ruimte, die nu is ingericht als werkkamer. Dit is ook eenvoudig om te toveren tot extra slaapkamer, hobbyruimte of speelkamer. Onder deze werkkamer ligt een kelder, ideaal als extra opbergruimte. Boven de werkkamer en bijkeuken zorgt de zolder voor extra opbergruimte.
De zeer stijlvol aangelegde tuin is onderhoudsvriendelijk en toch heerlijk groen. Eten, loungen, spelen en genieten: in deze tuin kan het allemaal! Vanuit de tuin heb je toegang tot de aangebouwde multifunctionele ruimte aan de zijkant van het huis. Deze is zeer netjes afgewerkt en biedt veel mogelijkheden. Dankzij de eigen toegang aan de voorzijde is deze ruimte ook bijzonder geschikt om een salon of praktijk aan huis te creëren.
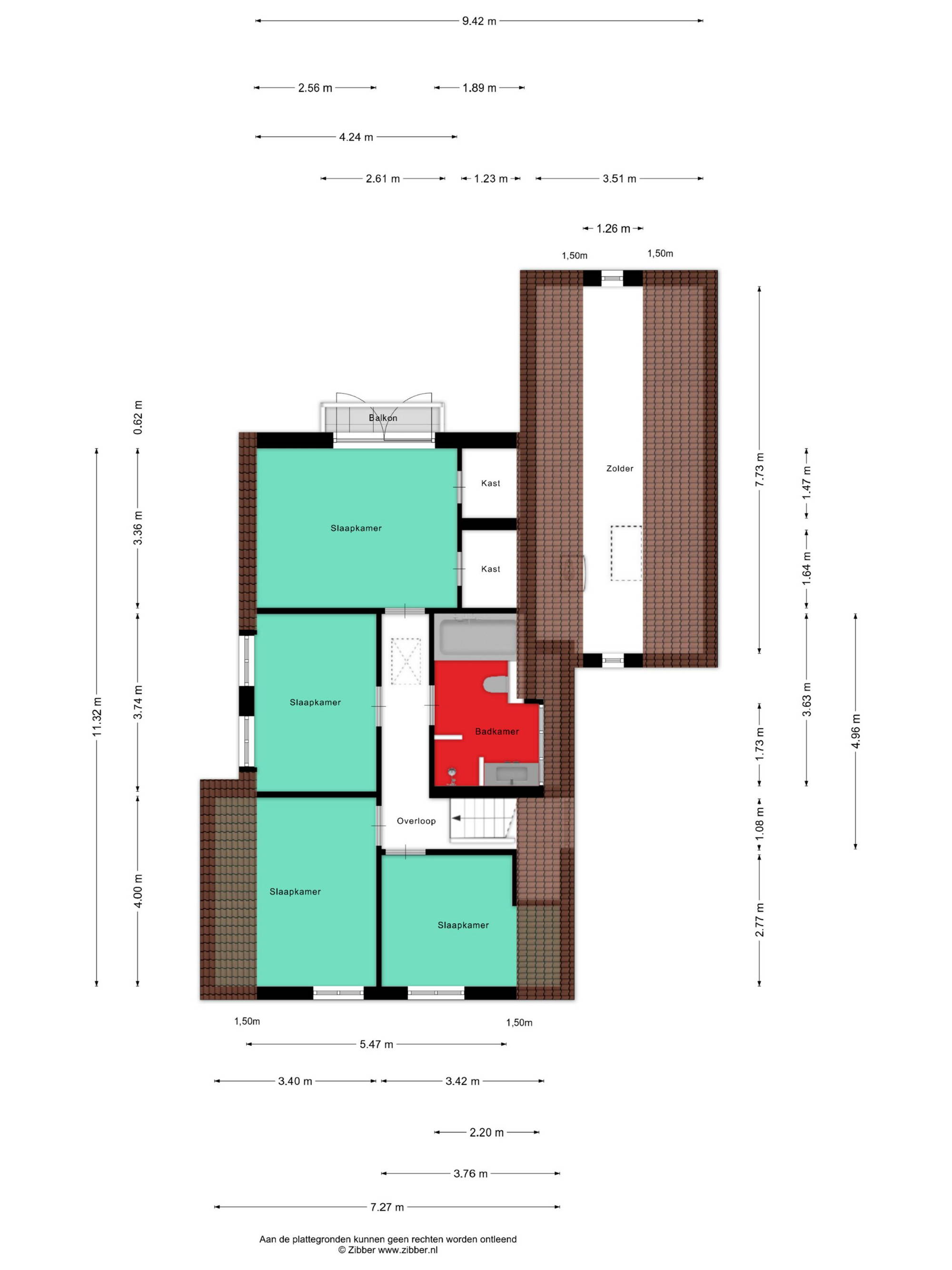
Op de eerste verdieping zijn vier royale slaapkamers, die dankzij de schuine plafonds toch knus aanvoelen. De grootste slaapkamer is voorzien van een balkon – met uitzicht op de fraaie tuin – en twee inbouwkasten. De badkamer is eveneens ruim en modern en voorzien van een wastafel, toilet, ligbad en inloopdouche. Vanaf de overloop brengt een vlizotrap je naar de bergzolder, ideaal voor spullen die je niet elke dag nodig hebt.
Kom je een kijkje nemen bij dit speelse en praktisch ingerichte huis in jaren-30 stijl?
Pluspunten:
- Sfeervol en verrassend ruim vrijstaand huis
- Gelegen in een brede en groene straat, op loopafstand van Schaijk Centrum
- Gebouwd in de zeer gewilde jaren 30-stijl, met veel sfeervolle details
- Extra werkkamer op de begane grond
- Royale garage die mogelijkheden biedt voor een salon, praktijk of kantoor aan huis
- Vloerverwarming op de begane grond, in de badkamer en in de aangebouwde garage
- Zeer veel bergruimte dankzij de bijkeuken, kelder en twee grote bergzolders
- Tien zonnepanelen om zelf energie op te wekken
Via de keurig aangelegde voortuin en oprit – met ruimte voor meerdere auto’s – loop je binnen in de woning. De robuuste houten vloer die je in de entree ziet, is doorgelegd in de ruime en speels ingedeelde woonkamer. De erker, glas-in-loodramen, knusse gashaard en de en-suite deuren naar de keuken geven de woonkamer extra veel sfeer.
Aan de achterzijde van het huis ligt de royale en gezellige woonkeuken. Dit is het hart van het huis, waar je met het hele gezin samenkomt. Door materialen en kleuren slim te combineren, is de keuken modern en toch sfeervol. In deze keuken vind je een 6-pits gasfornuis met oven, afzuigkap, combimagnetron, koelkast en vaatwasser. Dankzij de grote raampartij in de erker aan de achterzijde, geniet je hier van veel natuurlijke lichtinval.
Vanuit de keuken heb je toegang tot de praktische bijkeuken, met ruimte voor een wasmachine, droger en bijvoorbeeld een extra koelkast of vriezer. Daarachter ligt een multifunctionele ruimte, die nu is ingericht als werkkamer. Dit is ook eenvoudig om te toveren tot extra slaapkamer, hobbyruimte of speelkamer. Onder deze werkkamer ligt een kelder, ideaal als extra opbergruimte. Boven de werkkamer en bijkeuken zorgt de zolder voor extra opbergruimte.
De zeer stijlvol aangelegde tuin is onderhoudsvriendelijk en toch heerlijk groen. Eten, loungen, spelen en genieten: in deze tuin kan het allemaal! Vanuit de tuin heb je toegang tot de aangebouwde multifunctionele ruimte aan de zijkant van het huis. Deze is zeer netjes afgewerkt en biedt veel mogelijkheden. Dankzij de eigen toegang aan de voorzijde is deze ruimte ook bijzonder geschikt om een salon of praktijk aan huis te creëren.
Op de eerste verdieping zijn vier royale slaapkamers, die dankzij de schuine plafonds toch knus aanvoelen. De grootste slaapkamer is voorzien van een balkon – met uitzicht op de fraaie tuin – en twee inbouwkasten. De badkamer is eveneens ruim en modern en voorzien van een wastafel, toilet, ligbad en inloopdouche. Vanaf de overloop brengt een vlizotrap je naar de bergzolder, ideaal voor spullen die je niet elke dag nodig hebt.
Kom je een kijkje nemen bij dit speelse en praktisch ingerichte huis in jaren-30 stijl?
Pluspunten:
- Sfeervol en verrassend ruim vrijstaand huis
- Gelegen in een brede en groene straat, op loopafstand van Schaijk Centrum
- Gebouwd in de zeer gewilde jaren 30-stijl, met veel sfeervolle details
- Extra werkkamer op de begane grond
- Royale garage die mogelijkheden biedt voor een salon, praktijk of kantoor aan huis
- Vloerverwarming op de begane grond, in de badkamer en in de aangebouwde garage
- Zeer veel bergruimte dankzij de bijkeuken, kelder en twee grote bergzolders
- Tien zonnepanelen om zelf energie op te wekken
Lees meer
Minder tonen
Kenmerken
| Overdracht | |
|---|---|
| Prijs: | € 849.000,- k.k. |
| Status: | Beschikbaar |
| Aanvaarding: | In overleg |
| Bouw | |
| type-object: | Woonhuis |
| Type: | Vrijstaande woning |
| Soort: | Eengezinswoning |
| Bouwjaar: | 2011 |
| Oppervlakten en inhoud | |
| Woonoppervlakte: | 170 m2 |
| Perceeloppervlakte: | 370 m2 |
| Inhoud: | 869 m3 |
| Indeling | |
| Kamers: | 6 |
| Slaapkamers: | 4 |
| Energie | |
| Energieklasse: | A |
| Isolatievormen: | Dakisolatie, muurisolatie |
| Soorten verwarming: | Cv ketel, vloerverwarming gedeeltelijk, gashaard |
| Soorten warm water: | Cv ketel |
| CV ketel type: | Daalderop |
| CV ketel eigendom: | Eigendom |
| Buitenruimte | |
| Tuintypen: | Achtertuin, voortuin |
| Hoofdtuin: | Achtertuin |
| Ligging: | Noordwest |
| Achteringang: | Nee |
| Lengte: | 8,50 m |
| Breedte: | 12,00 m |
| Oppervlakte: | 102 m2 |
| Parkeren | |
| Parkeerfaciliteiten: | Op eigen terrein |
| Soorten: | Aangebouwd steen |
| Capaciteit: | 1 |
Interesse?
Voor meer informatie of het plannen van een bezichtiging helpen we je graag verder.
Kan ik deze woning betalen?