Uden
Begoniastraat 9
€ 350.000,- k.k.
Delen
{ if (inProgress) { return; } inProgress = true; favorite ? $store.favorites.delete(identifier, market, address, city, () => { inProgress = false; }): $store.favorites.add(identifier, market, address, city, () => { inProgress = false; }); favorite = !favorite; }"
>
Favoriet
Woning:
89 m2
Perceel: 167 m2
Slaapkamers: 3
Bouwjaar: 1958
Energielabel: D
Over deze woning
Starters opgelet! Dit huis is een mooie kans om je eerste stap op de woningmarkt te zetten. Op loopafstand van het gezellige centrum van Uden ligt deze fijne gezinswoning, klaar voor nieuwe bewoners. Dankzij de gunstige ligging rijd je binnen vijf minuten op de snelweg richting Oss, Den Bosch, Eindhoven of Nijmegen. Kom je snel een kijkje nemen bij dit huis?
Via de goed verzorgde voortuin kom je binnen in de woning. In de hal is en toilet en de trap naar de eerste verdieping. Vervolgens loop je door naar de woonkamer, waar je een gezellige zithoek en een eethoek kunt creëren. De woonkamer is bovendien voorzien van HR++ glas, wat zorgt voor extra comfort en een betere isolatie.
In het huis is extra ruimte gecreëerd door een stuk aan te bouwen. In deze aanbouw bevindt zich de keuken. Deze heeft lekker veel aanrechtruimte en voldoende lades en kasten om al je keukenspullen op te bergen. Verder is de keuken uitgerust met een gasfornuis, afzuigkap, combimagnetron en koelkast. Ook is er plek voor een kleine eettafel om gezellig samen een kop koffie te drinken of te ontbijten.
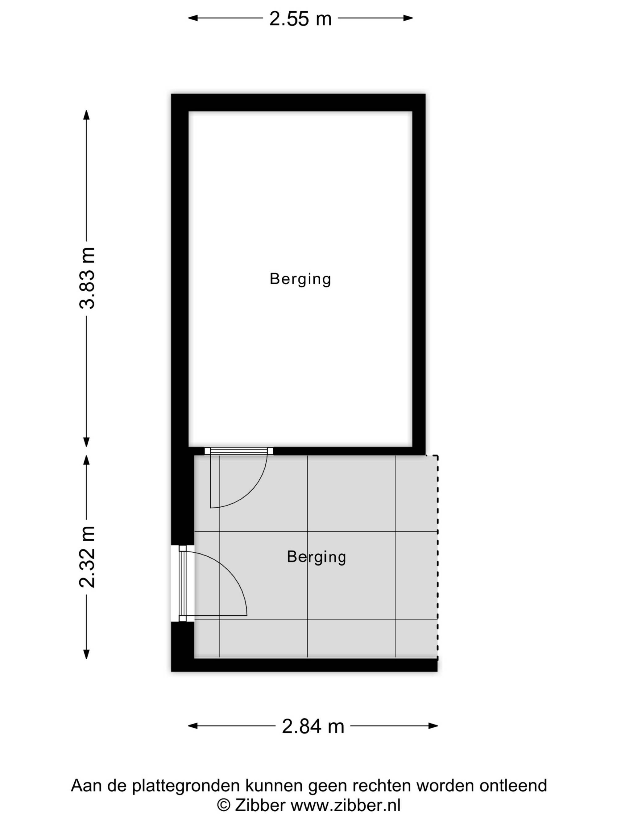
Naast de keuken is een serre met veel daglicht dankzij de grote glazen schuifdeuren en twee lichtkoepels in het dak. Zomer of winter, zon of regen: hier zit je altijd heerlijk! Vanuit de serre heb je ook toegang tot de onderhoudsvriendelijke achtertuin. De tuin is gelegen op het oosten, waardoor je hier in de ochtend en vroege middag heerlijk van de zon kunt genieten. Deze kun je helemaal naar eigen wens verder inrichten. Achter in de tuin is een kleine overkapping en een berging met elektra. Ideaal voor fietsen, (tuin)gereedschap en andere spullen.
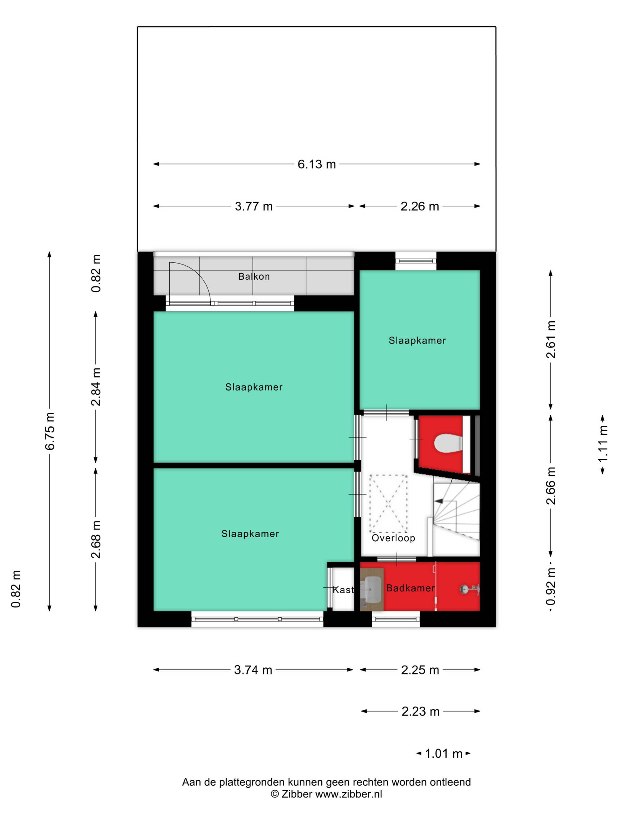
Op de eerste verdieping zijn drie slaapkamers, allemaal netjes en voorzien van een moderne laminaatvloer. De slaapkamers beschikken over rolluiken, net als de woonkamer. Verder is er op deze verdieping een compacte badkamer met wastafel en douche en een apart toilet. Vanuit de overloop heb je bovendien toegang tot de vlieringzolder, waar je al je spullen kwijt kunt die je niet dagelijks gebruikt.
Ben jij op zoek naar een leuke starterswoning? Dan is dit huis aan de Begoniastraat in Uden absoluut het bekijken waard!
Pluspunten:
- Leuke starterswoning om een eerste stap op de huizenmarkt te zetten
- Gunstige locatie: op loopafstand van Uden-Centrum
- Extra ruimte door een uitbouw met daarin de keuken
- Aangebouwde serre met veel daglicht
- Drie slaapkamers
- Op het oosten gelegen, onderhoudsvriendelijke tuin met berging (voorzien van elektra)
- Rolluiken voor de woonkamer en de slaapkamers
- Woonkamer voorzien van HR++ glas
- CV-ketel uit 2016
Via de goed verzorgde voortuin kom je binnen in de woning. In de hal is en toilet en de trap naar de eerste verdieping. Vervolgens loop je door naar de woonkamer, waar je een gezellige zithoek en een eethoek kunt creëren. De woonkamer is bovendien voorzien van HR++ glas, wat zorgt voor extra comfort en een betere isolatie.
In het huis is extra ruimte gecreëerd door een stuk aan te bouwen. In deze aanbouw bevindt zich de keuken. Deze heeft lekker veel aanrechtruimte en voldoende lades en kasten om al je keukenspullen op te bergen. Verder is de keuken uitgerust met een gasfornuis, afzuigkap, combimagnetron en koelkast. Ook is er plek voor een kleine eettafel om gezellig samen een kop koffie te drinken of te ontbijten.
Naast de keuken is een serre met veel daglicht dankzij de grote glazen schuifdeuren en twee lichtkoepels in het dak. Zomer of winter, zon of regen: hier zit je altijd heerlijk! Vanuit de serre heb je ook toegang tot de onderhoudsvriendelijke achtertuin. De tuin is gelegen op het oosten, waardoor je hier in de ochtend en vroege middag heerlijk van de zon kunt genieten. Deze kun je helemaal naar eigen wens verder inrichten. Achter in de tuin is een kleine overkapping en een berging met elektra. Ideaal voor fietsen, (tuin)gereedschap en andere spullen.
Op de eerste verdieping zijn drie slaapkamers, allemaal netjes en voorzien van een moderne laminaatvloer. De slaapkamers beschikken over rolluiken, net als de woonkamer. Verder is er op deze verdieping een compacte badkamer met wastafel en douche en een apart toilet. Vanuit de overloop heb je bovendien toegang tot de vlieringzolder, waar je al je spullen kwijt kunt die je niet dagelijks gebruikt.
Ben jij op zoek naar een leuke starterswoning? Dan is dit huis aan de Begoniastraat in Uden absoluut het bekijken waard!
Pluspunten:
- Leuke starterswoning om een eerste stap op de huizenmarkt te zetten
- Gunstige locatie: op loopafstand van Uden-Centrum
- Extra ruimte door een uitbouw met daarin de keuken
- Aangebouwde serre met veel daglicht
- Drie slaapkamers
- Op het oosten gelegen, onderhoudsvriendelijke tuin met berging (voorzien van elektra)
- Rolluiken voor de woonkamer en de slaapkamers
- Woonkamer voorzien van HR++ glas
- CV-ketel uit 2016
Lees meer
Minder tonen
Kenmerken
| Overdracht | |
|---|---|
| Prijs: | € 350.000,- k.k. |
| Status: | Beschikbaar |
| Aanvaarding: | In overleg |
| Bouw | |
| type-object: | Woonhuis |
| Type: | Tussenwoning |
| Soort: | Eengezinswoning |
| Bouwjaar: | 1958 |
| Oppervlakten en inhoud | |
| Woonoppervlakte: | 89 m2 |
| Perceeloppervlakte: | 167 m2 |
| Inhoud: | 358 m3 |
| Indeling | |
| Kamers: | 4 |
| Slaapkamers: | 3 |
| Energie | |
| Energieklasse: | D |
| Isolatievormen: | Dakisolatie, grotendeels dubbelglas |
| Soorten verwarming: | Cv ketel |
| Soorten warm water: | Cv ketel |
| CV ketel type: | Intergas HRE |
| CV ketel eigendom: | Eigendom |
| Buitenruimte | |
| Tuintypen: | Achtertuin, voortuin |
| Hoofdtuin: | Achtertuin |
| Ligging: | Zuidoost |
| Achteringang: | Ja |
| Lengte: | 9,50 m |
| Breedte: | 6,00 m |
| Oppervlakte: | 57 m2 |
| Parkeren | |
| Soorten: | Geen garage |
Open dag
zaterdag 25 april van 12.00 tot 13.30
Interesse?
Voor meer informatie of het plannen van een bezichtiging helpen we je graag verder.
Kan ik deze woning betalen?