Uden
Salmstraat 9
€ 549.000,- k.k.
Delen
{ if (inProgress) { return; } inProgress = true; favorite ? $store.favorites.delete(identifier, market, address, city, () => { inProgress = false; }): $store.favorites.add(identifier, market, address, city, () => { inProgress = false; }); favorite = !favorite; }"
>
Favoriet
Woning:
156 m2
Perceel: 302 m2
Slaapkamers: 4
Bouwjaar: 1958
Energielabel: C
Over deze woning
Deze twee-onder-een-kapwoning in een kindvriendelijke Udense wijk is modern, licht en verrassend ruim. Het centrum van Uden is zowel lopend als met de fiets goed bereikbaar. Hier vind je tal van winkels, gezellige horecagelegenheden, een bioscoop, een zwembad en meer voorzieningen. Met de auto sta je binnen enkele minuten op de A50, die je snel naar Oss, Den Bosch, Eindhoven of Nijmegen brengt. Heerlijk rustig wonen dus, op een centrale locatie.
De oprit van deze tweekapper leidt naar een kantoor- of praktijkruimte met een eigen ingang en parkeergelegenheid. Ideaal voor iemand die een bedrijf of salon aan huis wil beginnen. Het woonhuis betreed je via de moderne hal, waar ook het gemoderniseerde toilet is. De L-vormige woonkamer is heerlijk ruim en biedt plek voor een grote zithoek, meerdere kasten of bijvoorbeeld een werk- of speelhoek. De fraaie houten vloer die je hier ziet, loopt helemaal door tot in de woonkeuken.
De uitgebouwde open leefkeuken baadt in het licht, dankzij de grote glazen pui aan de achterzijde van de woning. Op mooie dagen kun je deze helemaal openschuiven, om zo de keuken met de tuin te verbinden. De keuken is praktisch ingedeeld met veel kastruimte en is uitgerust met een magnetron, oven, vaatwasser, koelkast, inductiekookplaat en afzuigkap. Daarnaast hangt er een airco: ideaal om te koelen in de warme zomermaanden en te verwarmen als het koud is. Er is ook genoeg ruimte voor een grote eettafel, om met het hele gezin of met vrienden samen te genieten. Naast de keuken zit een praktische bijkeuken, waar ook plek is voor de wasmachine en de droger.
Als je door de schuifpui de tuin in wandelt, wacht de volgende verrassing van dit huis: een fantastische tuinkamer! Hier zit je – ongeacht de tijd van het jaar – altijd warm en droog. Naast de tuinkamer is nog een berging met meer dan genoeg ruimte voor fietsen en (tuin)gereedschap. De tuin zelf is onderhoudsvriendelijk en netjes aangelegd en biedt ruimte voor een grote eettafel of gezellige zithoek.
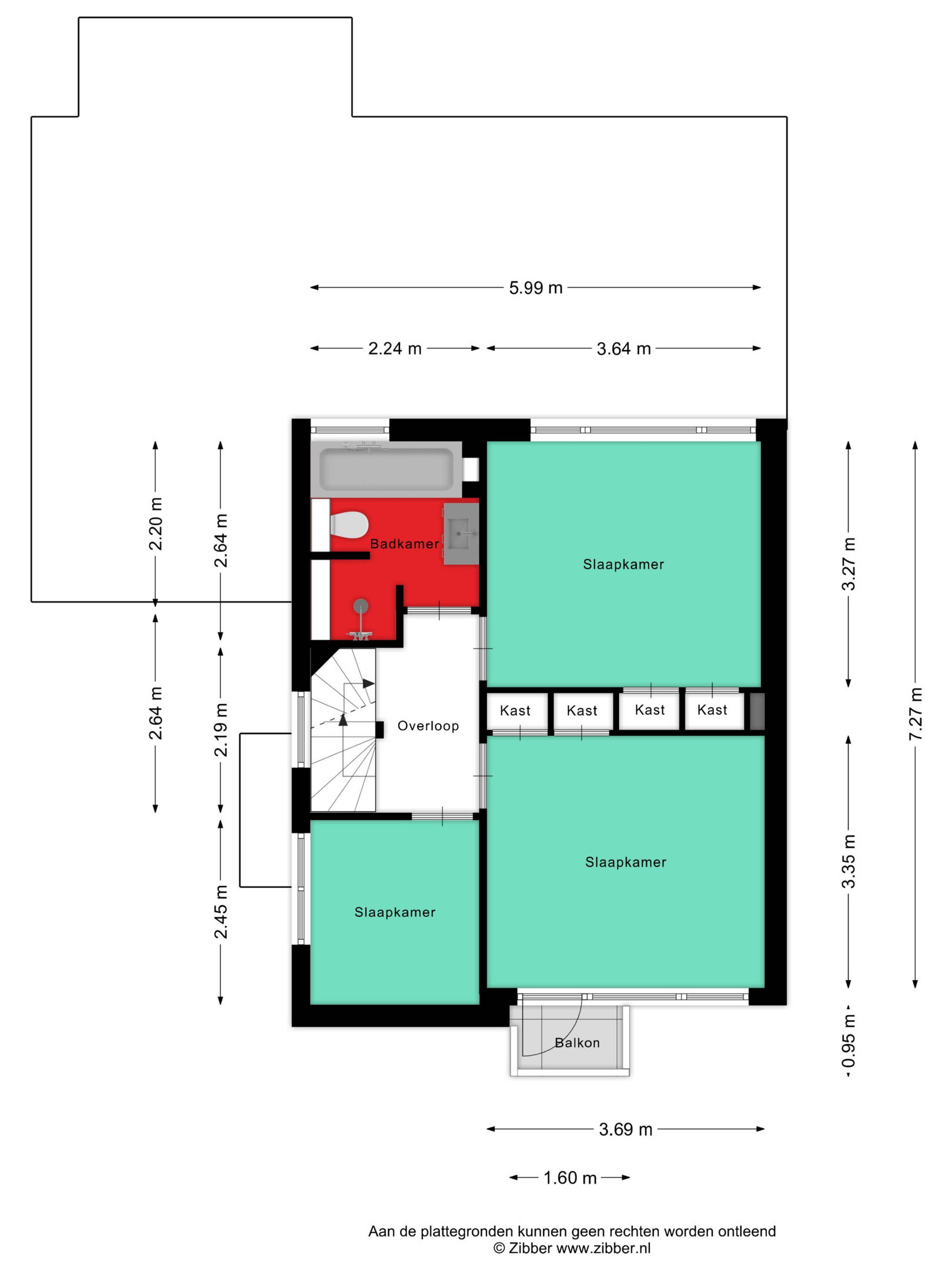
Op de eerste verdieping van deze woning zijn drie riante en lichte slaapkamers, dus ruimte voor het hele gezin. Twee van deze slaapkamers hebben inbouwkasten; aan opbergruimte heb je geen gebrek. De fraaie en riante badkamer is compleet uitgerust met een toilet, ligbad, wastafel, inloopregendouche en vloerverwarming. Op de zolder is nog een verrassend ruime vierde kamer: ideaal als extra slaap-, werk-, sport- of hobbykamer. Hier hangt ook een airco.
Ben je op zoek naar een instapklare en ruime woning, met veel mogelijkheden door de extra ruimtes? Kom dan zeker een kijkje nemen in de Salmstraat.
Pluspunten:
- Verrassend ruime tweekapper in kindvriendelijke wijk dicht bij Uden Centrum
- Kantoor- of praktijkruimte met eigen ingang en parkeerplaats
- Uitgebouwde open leefkeuken met veel licht
- Twee airco’s: in de keuken en op de zolder
- Zeer fraaie en riante tuinkamer in de tuin
- Veel bergruimte dankzij bergingen in de tuin en inbouwkasten in de slaapkamer
- 18 zonnepanelen om je eigen energie op te wekken
De oprit van deze tweekapper leidt naar een kantoor- of praktijkruimte met een eigen ingang en parkeergelegenheid. Ideaal voor iemand die een bedrijf of salon aan huis wil beginnen. Het woonhuis betreed je via de moderne hal, waar ook het gemoderniseerde toilet is. De L-vormige woonkamer is heerlijk ruim en biedt plek voor een grote zithoek, meerdere kasten of bijvoorbeeld een werk- of speelhoek. De fraaie houten vloer die je hier ziet, loopt helemaal door tot in de woonkeuken.
De uitgebouwde open leefkeuken baadt in het licht, dankzij de grote glazen pui aan de achterzijde van de woning. Op mooie dagen kun je deze helemaal openschuiven, om zo de keuken met de tuin te verbinden. De keuken is praktisch ingedeeld met veel kastruimte en is uitgerust met een magnetron, oven, vaatwasser, koelkast, inductiekookplaat en afzuigkap. Daarnaast hangt er een airco: ideaal om te koelen in de warme zomermaanden en te verwarmen als het koud is. Er is ook genoeg ruimte voor een grote eettafel, om met het hele gezin of met vrienden samen te genieten. Naast de keuken zit een praktische bijkeuken, waar ook plek is voor de wasmachine en de droger.
Als je door de schuifpui de tuin in wandelt, wacht de volgende verrassing van dit huis: een fantastische tuinkamer! Hier zit je – ongeacht de tijd van het jaar – altijd warm en droog. Naast de tuinkamer is nog een berging met meer dan genoeg ruimte voor fietsen en (tuin)gereedschap. De tuin zelf is onderhoudsvriendelijk en netjes aangelegd en biedt ruimte voor een grote eettafel of gezellige zithoek.
Op de eerste verdieping van deze woning zijn drie riante en lichte slaapkamers, dus ruimte voor het hele gezin. Twee van deze slaapkamers hebben inbouwkasten; aan opbergruimte heb je geen gebrek. De fraaie en riante badkamer is compleet uitgerust met een toilet, ligbad, wastafel, inloopregendouche en vloerverwarming. Op de zolder is nog een verrassend ruime vierde kamer: ideaal als extra slaap-, werk-, sport- of hobbykamer. Hier hangt ook een airco.
Ben je op zoek naar een instapklare en ruime woning, met veel mogelijkheden door de extra ruimtes? Kom dan zeker een kijkje nemen in de Salmstraat.
Pluspunten:
- Verrassend ruime tweekapper in kindvriendelijke wijk dicht bij Uden Centrum
- Kantoor- of praktijkruimte met eigen ingang en parkeerplaats
- Uitgebouwde open leefkeuken met veel licht
- Twee airco’s: in de keuken en op de zolder
- Zeer fraaie en riante tuinkamer in de tuin
- Veel bergruimte dankzij bergingen in de tuin en inbouwkasten in de slaapkamer
- 18 zonnepanelen om je eigen energie op te wekken
Lees meer
Minder tonen
Kenmerken
| Overdracht | |
|---|---|
| Prijs: | € 549.000,- k.k. |
| Status: | Verkocht onder voorbehoud |
| Aanvaarding: | In overleg |
| Bouw | |
| type-object: | Woonhuis |
| Type: | Twee onder een kapwoning |
| Soort: | Eengezinswoning |
| Bouwjaar: | 1958 |
| Oppervlakten en inhoud | |
| Woonoppervlakte: | 156 m2 |
| Perceeloppervlakte: | 302 m2 |
| Inhoud: | 553 m3 |
| Indeling | |
| Kamers: | 7 |
| Slaapkamers: | 4 |
| Energie | |
| Energieklasse: | C |
| Isolatievormen: | Muurisolatie, hr glas |
| Soorten verwarming: | Cv ketel |
| Soorten warm water: | Cv ketel |
| CV ketel type: | Nefit HR |
| CV ketel eigendom: | Eigendom |
| Buitenruimte | |
| Tuintypen: | Achtertuin, voortuin |
| Hoofdtuin: | Achtertuin |
| Ligging: | Zuidwest |
| Achteringang: | Nee |
| Lengte: | 8,50 m |
| Breedte: | 10,50 m |
| Oppervlakte: | 89 m2 |
| Parkeren | |
| Parkeerfaciliteiten: | Op eigen terrein |
| Soorten: | Geen garage |
Interesse?
Voor meer informatie of het plannen van een bezichtiging helpen we je graag verder.
Kan ik deze woning betalen?