Oss
Galliërshof 50
€ 255.000,- k.k.
Delen
{ if (inProgress) { return; } inProgress = true; favorite ? $store.favorites.delete(identifier, market, address, city, () => { inProgress = false; }): $store.favorites.add(identifier, market, address, city, () => { inProgress = false; }); favorite = !favorite; }"
>
Favoriet
Pand:
210 m2
Perceel: 75 m2
Over dit pand
Galliërshof 50 te Oss – Representatieve bedrijfsunit met kantoorruimte
Op een uitstekende en goed bereikbare locatie op bedrijventerrein Danenhoef in Oss bieden wij deze representatieve en veelzijdige bedrijfsunit aan. De unit kenmerkt zich door een functionele indeling, moderne voorzieningen en een hoge mate van flexibiliteit in gebruik.
Dankzij de efficiënte opzet is het object geschikt voor uiteenlopende bedrijfsactiviteiten, variërend van opslag en lichte productie tot kantoorhoudende functies. De combinatie van bedrijfsruimte en kantoorruimte maakt het geheel praktisch en toekomstbestendig.
Oppervlaktes;
Galliërshof 50;
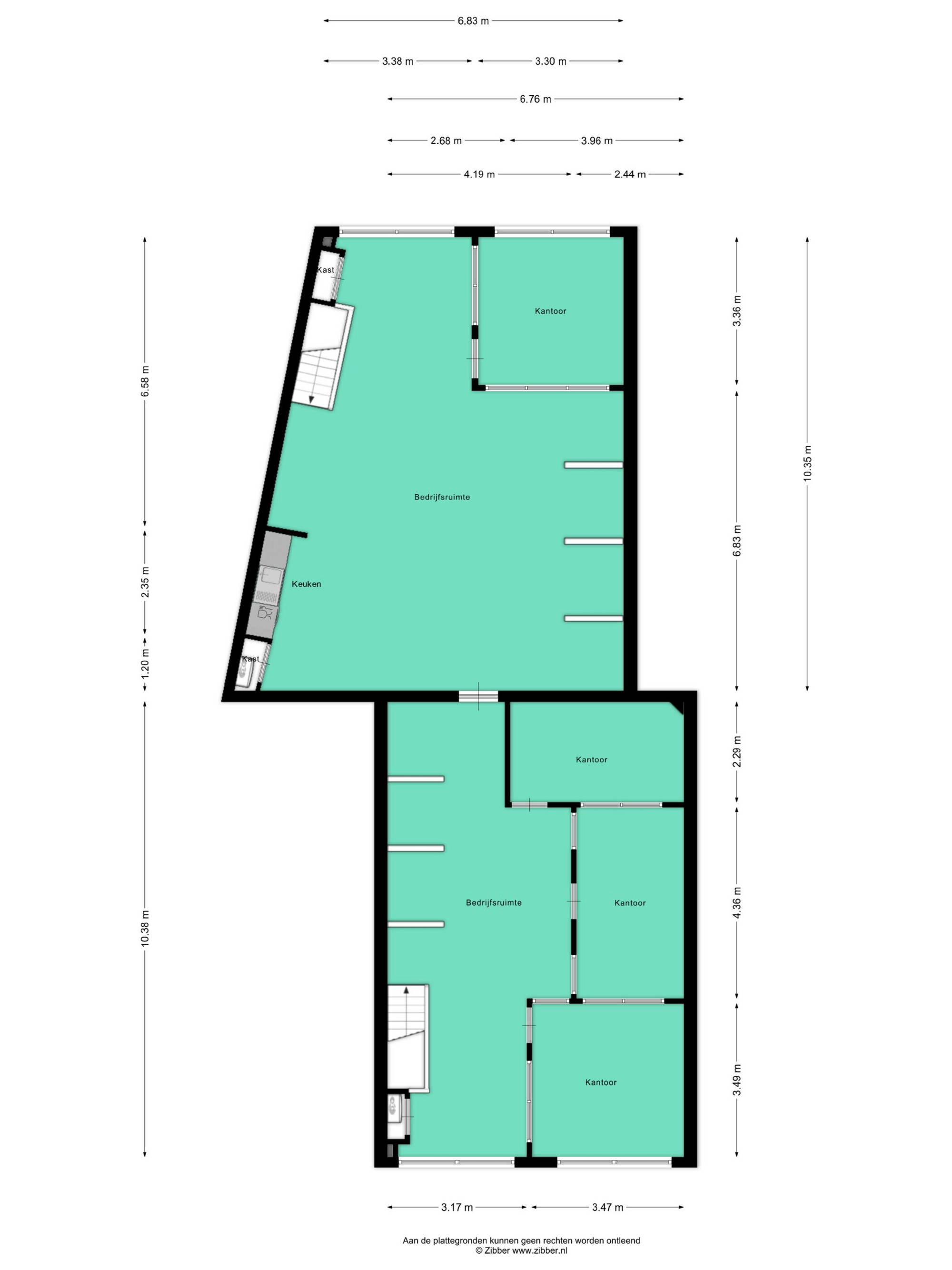
+ Begane grond - 70 m²
+ Eerste verdieping - 70 m²
Locatie
De bedrijfsunit is gelegen op het moderne bedrijventerrein Danenhoef in Oss. Dit bedrijventerrein staat bekend om zijn goede bereikbaarheid en verzorgde uitstraling.
Dankzij de ligging nabij de Weg van de Toekomst zijn zowel de uitvalswegen als omliggende steden snel en eenvoudig te bereiken. Dit maakt de locatie bijzonder geschikt voor bedrijven met regionale of landelijke activiteiten.
De directe omgeving kenmerkt zich door een mix van lokale ondernemers en gevestigde bedrijven, wat zorgt voor een dynamische en professionele werkomgeving. Bovendien is er op het terrein ruim voldoende parkeergelegenheid aanwezig, wat bijdraagt aan het gebruiksgemak voor zowel medewerkers als bezoekers.
Met een bestemming tot en met milieucategorie 4.2 biedt deze locatie daarnaast volop mogelijkheden voor uiteenlopende bedrijfsactiviteiten.
Object
De begane grond is ingericht als bedrijfsruimte en is toegankelijk via een overheaddeur en separate loopdeur, wat zorgt voor praktisch gebruiksgemak. Hier is tevens een pantry en een toiletblok met 2 toiletten aanwezig, als ook een spreekkamer.
De verdieping is bereikbaar via een vaste trap en ingericht als kantoorruimte. Hier is tevens airconditioning aanwezig, wat zorgt voor een comfortabele werkomgeving. De ruimte is flexibel in te delen en geschikt voor diverse kantoorconcepten.
De unit is onderdeel van een verzorgd bedrijfsverzamelgebouw en beschikt over energielabel A++, wat bijdraagt aan lage energielasten en toekomstbestendigheid.
Bijzonderheid
De unit maakt momenteel onderdeel uit van een groter geheel met de naastgelegen bedrijfsunit (Galliërshof 58). Beide units zijn zowel op de begane grond als op de verdieping intern met elkaar verbonden middels loopdeuren.
Deze koppeling kan desgewenst eenvoudig worden opgeheven, waardoor twee volledig zelfstandige units ontstaan conform de bestaande splitsing en huisnummering.
Voor partijen met een grotere ruimtebehoefte bestaat daarnaast de mogelijkheid om beide units gezamenlijk aan te kopen, waarvoor de prijs €525.000 kosten koper bedraagt.
Kenmerken
+ Zowel separaat als gezamelijk aan te kopen
+ Momenteel intern gekoppeld aan naastgelegen unit - middels loopdeuren
+ Bedrijfsruimte op de begane grond, kantoorruimte op de verdieping
+ Overheaddeur en aparte loopdeur per unit
+ vaste trap naar bovenverdieping
+ Pantry en toiletfaciliteiten aanwezig
+ Airconditioning in de kantoorruimtes
+ Energiezuinig met energielabel A++
+ Ruime, flexibele indeling
+ Gelegen op een verzorgd bedrijfsverzamelterrein
+ Voldoende parkeergelegenheid op eigen terrein
+ Bestemming tot en met milieucategorie 4.2
+ Uitstekend bereikbaar nabij de weg van de toekomst
Een praktische en energiezuinige bedrijfsunit op een uitstekende locatie, met extra flexibiliteit in gebruik en indeling. Geschikt voor zowel eigen gebruik als investering.
Neem contact met ons op voor meer informatie of het plannen van een bezichtiging.
Op een uitstekende en goed bereikbare locatie op bedrijventerrein Danenhoef in Oss bieden wij deze representatieve en veelzijdige bedrijfsunit aan. De unit kenmerkt zich door een functionele indeling, moderne voorzieningen en een hoge mate van flexibiliteit in gebruik.
Dankzij de efficiënte opzet is het object geschikt voor uiteenlopende bedrijfsactiviteiten, variërend van opslag en lichte productie tot kantoorhoudende functies. De combinatie van bedrijfsruimte en kantoorruimte maakt het geheel praktisch en toekomstbestendig.
Oppervlaktes;
Galliërshof 50;
+ Begane grond - 70 m²
+ Eerste verdieping - 70 m²
Locatie
De bedrijfsunit is gelegen op het moderne bedrijventerrein Danenhoef in Oss. Dit bedrijventerrein staat bekend om zijn goede bereikbaarheid en verzorgde uitstraling.
Dankzij de ligging nabij de Weg van de Toekomst zijn zowel de uitvalswegen als omliggende steden snel en eenvoudig te bereiken. Dit maakt de locatie bijzonder geschikt voor bedrijven met regionale of landelijke activiteiten.
De directe omgeving kenmerkt zich door een mix van lokale ondernemers en gevestigde bedrijven, wat zorgt voor een dynamische en professionele werkomgeving. Bovendien is er op het terrein ruim voldoende parkeergelegenheid aanwezig, wat bijdraagt aan het gebruiksgemak voor zowel medewerkers als bezoekers.
Met een bestemming tot en met milieucategorie 4.2 biedt deze locatie daarnaast volop mogelijkheden voor uiteenlopende bedrijfsactiviteiten.
Object
De begane grond is ingericht als bedrijfsruimte en is toegankelijk via een overheaddeur en separate loopdeur, wat zorgt voor praktisch gebruiksgemak. Hier is tevens een pantry en een toiletblok met 2 toiletten aanwezig, als ook een spreekkamer.
De verdieping is bereikbaar via een vaste trap en ingericht als kantoorruimte. Hier is tevens airconditioning aanwezig, wat zorgt voor een comfortabele werkomgeving. De ruimte is flexibel in te delen en geschikt voor diverse kantoorconcepten.
De unit is onderdeel van een verzorgd bedrijfsverzamelgebouw en beschikt over energielabel A++, wat bijdraagt aan lage energielasten en toekomstbestendigheid.
Bijzonderheid
De unit maakt momenteel onderdeel uit van een groter geheel met de naastgelegen bedrijfsunit (Galliërshof 58). Beide units zijn zowel op de begane grond als op de verdieping intern met elkaar verbonden middels loopdeuren.
Deze koppeling kan desgewenst eenvoudig worden opgeheven, waardoor twee volledig zelfstandige units ontstaan conform de bestaande splitsing en huisnummering.
Voor partijen met een grotere ruimtebehoefte bestaat daarnaast de mogelijkheid om beide units gezamenlijk aan te kopen, waarvoor de prijs €525.000 kosten koper bedraagt.
Kenmerken
+ Zowel separaat als gezamelijk aan te kopen
+ Momenteel intern gekoppeld aan naastgelegen unit - middels loopdeuren
+ Bedrijfsruimte op de begane grond, kantoorruimte op de verdieping
+ Overheaddeur en aparte loopdeur per unit
+ vaste trap naar bovenverdieping
+ Pantry en toiletfaciliteiten aanwezig
+ Airconditioning in de kantoorruimtes
+ Energiezuinig met energielabel A++
+ Ruime, flexibele indeling
+ Gelegen op een verzorgd bedrijfsverzamelterrein
+ Voldoende parkeergelegenheid op eigen terrein
+ Bestemming tot en met milieucategorie 4.2
+ Uitstekend bereikbaar nabij de weg van de toekomst
Een praktische en energiezuinige bedrijfsunit op een uitstekende locatie, met extra flexibiliteit in gebruik en indeling. Geschikt voor zowel eigen gebruik als investering.
Neem contact met ons op voor meer informatie of het plannen van een bezichtiging.
Lees meer
Minder tonen
Kenmerken
| Overdracht | |
|---|---|
| Prijs: | € 255.000,- k.k. |
| Status: | Beschikbaar |
| Bouw | |
| Type: | Bedrijfsruimte |
| Oppervlakte | |
| Oppervlakte: | 210 m2 |
| Perceeloppervlakte: | 75 m2 |
Interesse?
Voor meer informatie of het plannen van een bezichtiging helpen we je graag verder.
Kan ik dit pand betalen?