Oss
Rossinistraat 36
€ 1,00 / mnd. (excl. btw)
Delen
{ if (inProgress) { return; } inProgress = true; favorite ? $store.favorites.delete(identifier, market, address, city, () => { inProgress = false; }): $store.favorites.add(identifier, market, address, city, () => { inProgress = false; }); favorite = !favorite; }"
>
Favoriet
Pand:
770 m2
Perceel: 800 m2
Over dit pand
Dit kantoorverzamelgebouw is gelegen op een zichtlocatie met een snelle route naar de toegangswegen en opritten van de snelweg. Het station Oss-West is op loopafstand bereikbaar en ook het winkelcentrum De Ruwert is op loopafstand gelegen.
Dit kantoorpand beschikt op elke verdieping over een pantry en toilet. Op de begane grond zijn een gezamenlijke receptie en koffiehoek te vinden, wat het pand een professionele uitstraling geeft.
Het kantoorpand is ideaal voor bedrijven/zzp'ers die op zoek zijn naar een centrale en goed bereikbare locatie. Het biedt een uitstekende uitvalsbasis voor jouw bedrijfsactiviteiten. Daarnaast is het pand goed onderhouden en van alle moderne gemakken voorzien. Er is een lift aanwezig.
Wil je meer informatie over dit kantoorpand? Neem dan gerust contact met ons op, wij vertellen je graag meer over de mogelijkheden.
Beschikbaarheid en prijzen per ruimte
Begane grond
Oppervlakte: 174 m2
Huurprijs: € 1.825 per maand
servicekosten: €45,00 per m2 per jaar
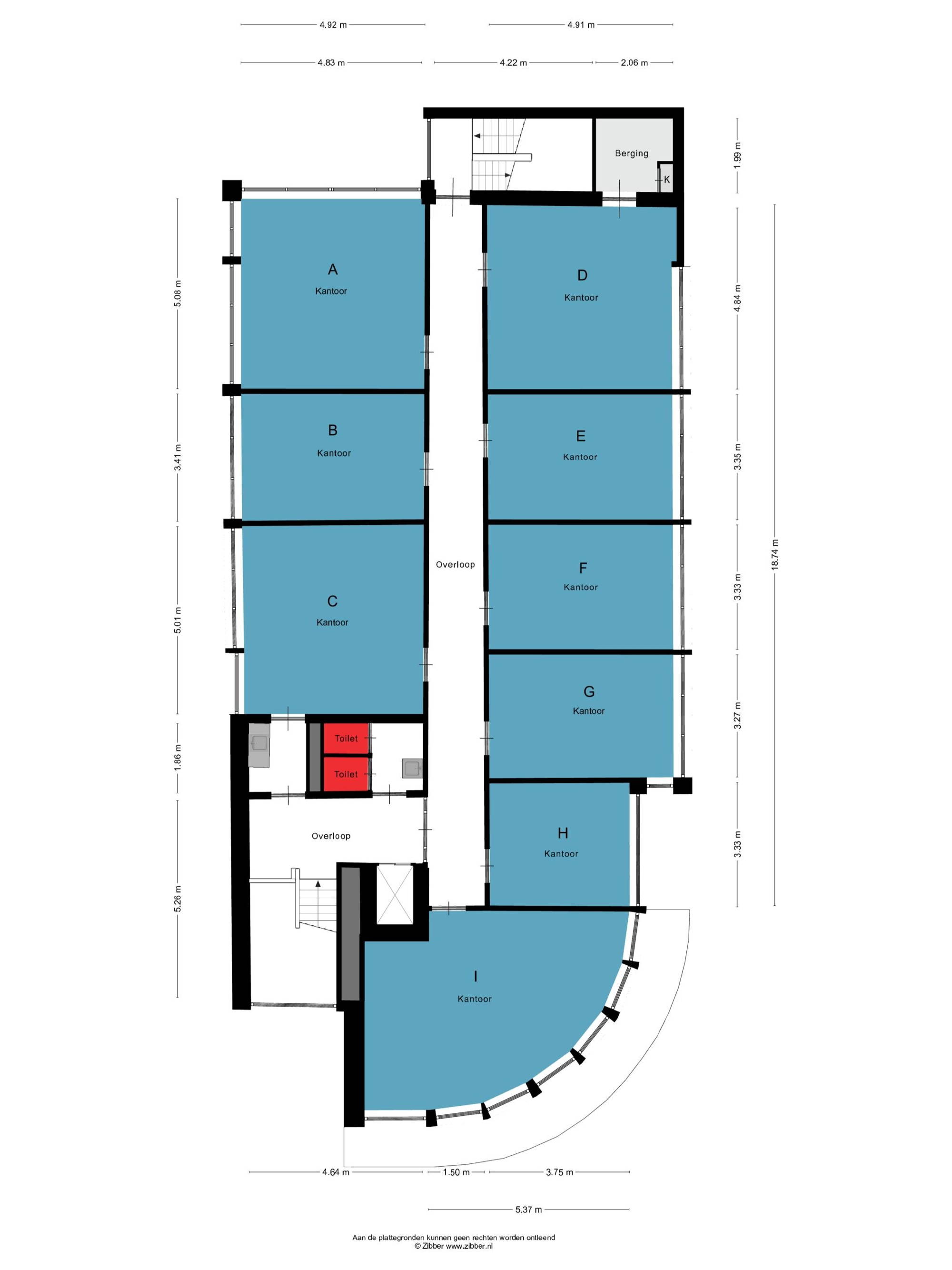
Eerste verdieping:
A / 3.12 - 27 m2 - verhuurd
B / 3.13 - 18 m2 - verhuurd
C / 3.14 - 27 m2 - €750,- excl. btw per maand
D / 3.11 - 27 m2 - verhuurd
E / 3.10 - 18 m2 - verhuurd
F / 3.09 - 18 m2 - verhuurd
G / 3.08- 18 m2 - verhuurd
H / 3.06 - 14,5 m2 - € 395,- excl. btw per maand
I / 3.05 - 36,5 m2 - verhuurd
Bijzonderheden
+ Servicekosten €45,- per m2 per jaar excl. btw.
+ Voldoende parkeergelegenheid in de nabij omgeving.
+ Binnenkomst via centrale toegang en entree. Hier bevinden zich een gezamenlijke (onbemande) receptie met balie en koffiehoek. Vervolgens met lift of trap naar verdiepingen.
+ Vanaf de overloop en vanuit de werkruimten zijn pantry en toiletruimten bereikbaar.
+ Op de begane grond kan men gebruik maken van de wachtruimte, onbemande balie en er is een spreekkamer aanwezig voor algemeen gebruik.
+ Er is een lift aanwezig.
+ Energielabel C.
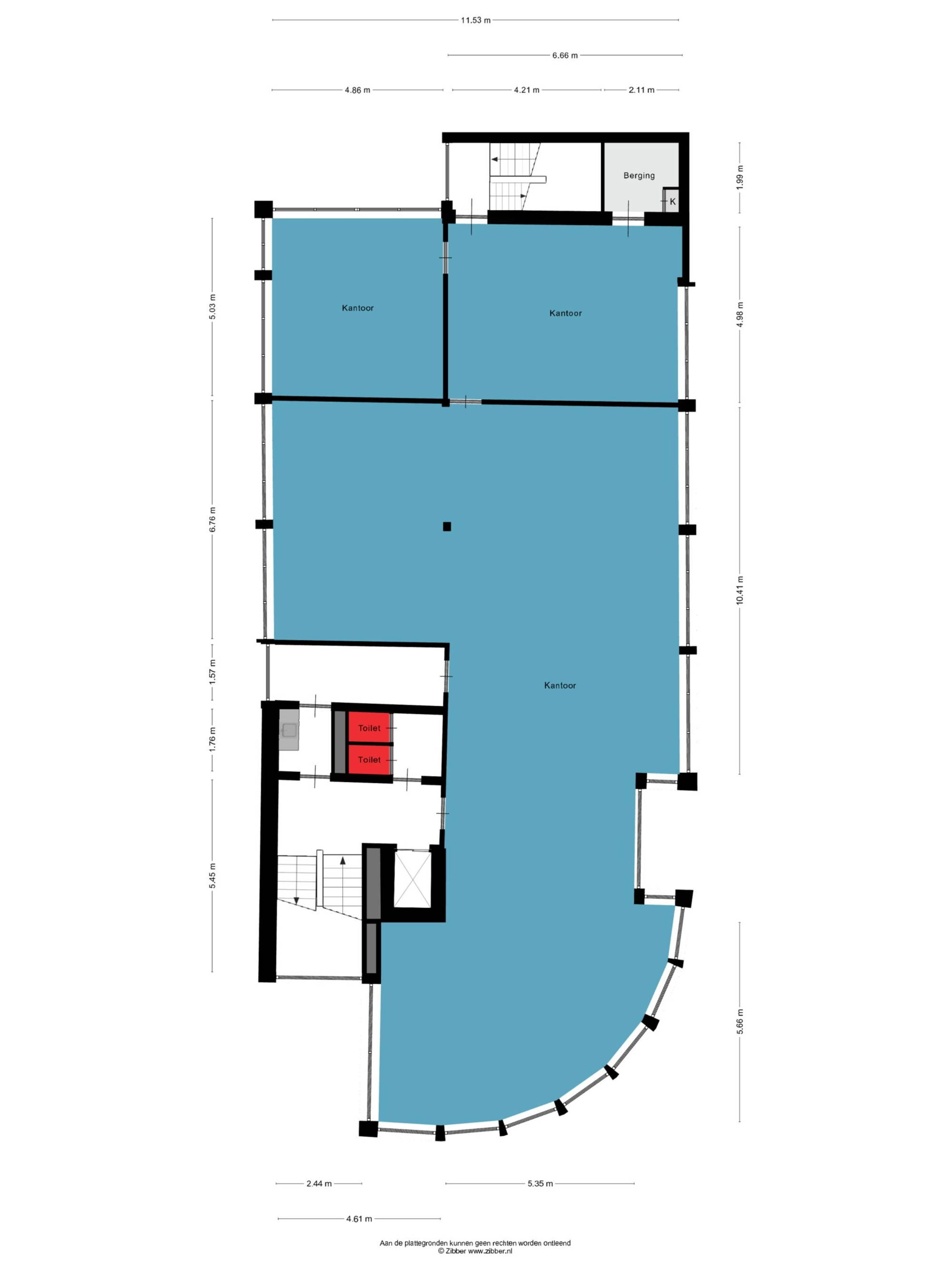
Op zoek naar een grotere ruimte? De tweede verdieping bieden wij in zijn geheel te huur aan. Deze verdieping heeft een afmeting van 289 m2 en is in 2022 opnieuw geschilderd. Neem contact met ons op over de mogelijkheden en de huurprijs.
Aanvaarding
In nader overleg
Dit kantoorpand beschikt op elke verdieping over een pantry en toilet. Op de begane grond zijn een gezamenlijke receptie en koffiehoek te vinden, wat het pand een professionele uitstraling geeft.
Het kantoorpand is ideaal voor bedrijven/zzp'ers die op zoek zijn naar een centrale en goed bereikbare locatie. Het biedt een uitstekende uitvalsbasis voor jouw bedrijfsactiviteiten. Daarnaast is het pand goed onderhouden en van alle moderne gemakken voorzien. Er is een lift aanwezig.
Wil je meer informatie over dit kantoorpand? Neem dan gerust contact met ons op, wij vertellen je graag meer over de mogelijkheden.
Beschikbaarheid en prijzen per ruimte
Begane grond
Oppervlakte: 174 m2
Huurprijs: € 1.825 per maand
servicekosten: €45,00 per m2 per jaar
Eerste verdieping:
A / 3.12 - 27 m2 - verhuurd
B / 3.13 - 18 m2 - verhuurd
C / 3.14 - 27 m2 - €750,- excl. btw per maand
D / 3.11 - 27 m2 - verhuurd
E / 3.10 - 18 m2 - verhuurd
F / 3.09 - 18 m2 - verhuurd
G / 3.08- 18 m2 - verhuurd
H / 3.06 - 14,5 m2 - € 395,- excl. btw per maand
I / 3.05 - 36,5 m2 - verhuurd
Bijzonderheden
+ Servicekosten €45,- per m2 per jaar excl. btw.
+ Voldoende parkeergelegenheid in de nabij omgeving.
+ Binnenkomst via centrale toegang en entree. Hier bevinden zich een gezamenlijke (onbemande) receptie met balie en koffiehoek. Vervolgens met lift of trap naar verdiepingen.
+ Vanaf de overloop en vanuit de werkruimten zijn pantry en toiletruimten bereikbaar.
+ Op de begane grond kan men gebruik maken van de wachtruimte, onbemande balie en er is een spreekkamer aanwezig voor algemeen gebruik.
+ Er is een lift aanwezig.
+ Energielabel C.
Op zoek naar een grotere ruimte? De tweede verdieping bieden wij in zijn geheel te huur aan. Deze verdieping heeft een afmeting van 289 m2 en is in 2022 opnieuw geschilderd. Neem contact met ons op over de mogelijkheden en de huurprijs.
Aanvaarding
In nader overleg
Lees meer
Minder tonen
Kenmerken
| Overdracht | |
|---|---|
| Prijs: | € 1,00 / mnd. (excl. btw) |
| Status: | Beschikbaar |
| Bouw | |
| Type: | Kantoorruimte |
| Oppervlakte | |
| Oppervlakte: | 770 m2 |
| Perceeloppervlakte: | 800 m2 |
Interesse?
Voor meer informatie of het plannen van een bezichtiging helpen we je graag verder.
Kan ik dit pand betalen?