Lith
De Band 54
€ 450.000,- k.k.
Delen
{ if (inProgress) { return; } inProgress = true; favorite ? $store.favorites.delete(identifier, market, address, city, () => { inProgress = false; }): $store.favorites.add(identifier, market, address, city, () => { inProgress = false; }); favorite = !favorite; }"
>
Favoriet
Woning:
125 m2
Perceel: 242 m2
Slaapkamers: 5
Bouwjaar: 1975
Energielabel: C
Over deze woning
Richtprijs € 450.000,- k.k.
Deze verrassend ruime twee-onder-een-kapwoning beschikt over maar liefst vijf slaapkamers, een lichte woonkamer met open keuken, een moderne badkamer en een multifunctionele garage. De woning is in de loop der jaren op diverse punten gemoderniseerd, denk aan na-isolatie op diverse manieren en kunststof kozijnen met dubbel glas. Tel hierbij de fijne extra’s op, zoals de separate waskamer en de ruime tuin met overkapping en je geniet van een royale gezinswoning.
De woning heeft een prettige indeling met een open en lichte leefruimte, een hoekkeuken, een ruime badkamer met inloopdouche en ligbad en diverse praktische inbouwkasten. Dankzij de vaste trap naar de tweede verdieping is ook deze etage volledig en comfortabel in gebruik, met de vijfde volwaardige slaapkamer, de waskamer en veel bergruimte.
Deze gezinswoning is gelegen in een rustig hofje met een speeltuin om de hoek. Je woont hier in een gemoedelijk dorp met veel voorzieningen en de prachtige Maas dichtbij. Op loopafstand vind je onder meer een supermarkt, basisschool, bakker, huisartsenpraktijk en diverse sportverenigingen. Dankzij de gunstige ligging ben je bovendien snel onderweg richting ’s-Hertogenbosch, Eindhoven en Nijmegen.
Pluspunten
+ Parkeren doe je gemakkelijk op eigen oprit met plek voor meerdere auto’s.
+ De hal met vernieuwde voordeur (2012) biedt toegang tot de toiletruimte, garderobehoek, meterkast (4 groepen en aardlekschakelaar) en de trapopgang met praktische trappenkast.
+ De woonkamer met tegelvloer is uitgevoerd als doorzonkamer, waardoor het daglicht rijkelijk binnenvalt. Aan de voorzijde is een zonneluifel aanwezig. Vanuit de eethoek heb je ene fijn uitzicht op de achtertuin.
+ De hoekkeuken staat in open verbinding met de woonkamer en is uitgerust met een 4-pitsfornuis, afzuigkap, vaatwasser, koelkast en een combi-oven. Vanuit de keuken heb je toegang tot de achtertuin.
+ De eerste verdieping bestaat uit de overloop, vier volwaardige slaapkamers met laminaatvloer en draaikiepramen en de badkamer.
+ De moderne badkamer is compleet ingericht met een ligbad, inloopdouche, badkamermeubel met wastafel, wandtoilet, designradiator en spotverlichting.
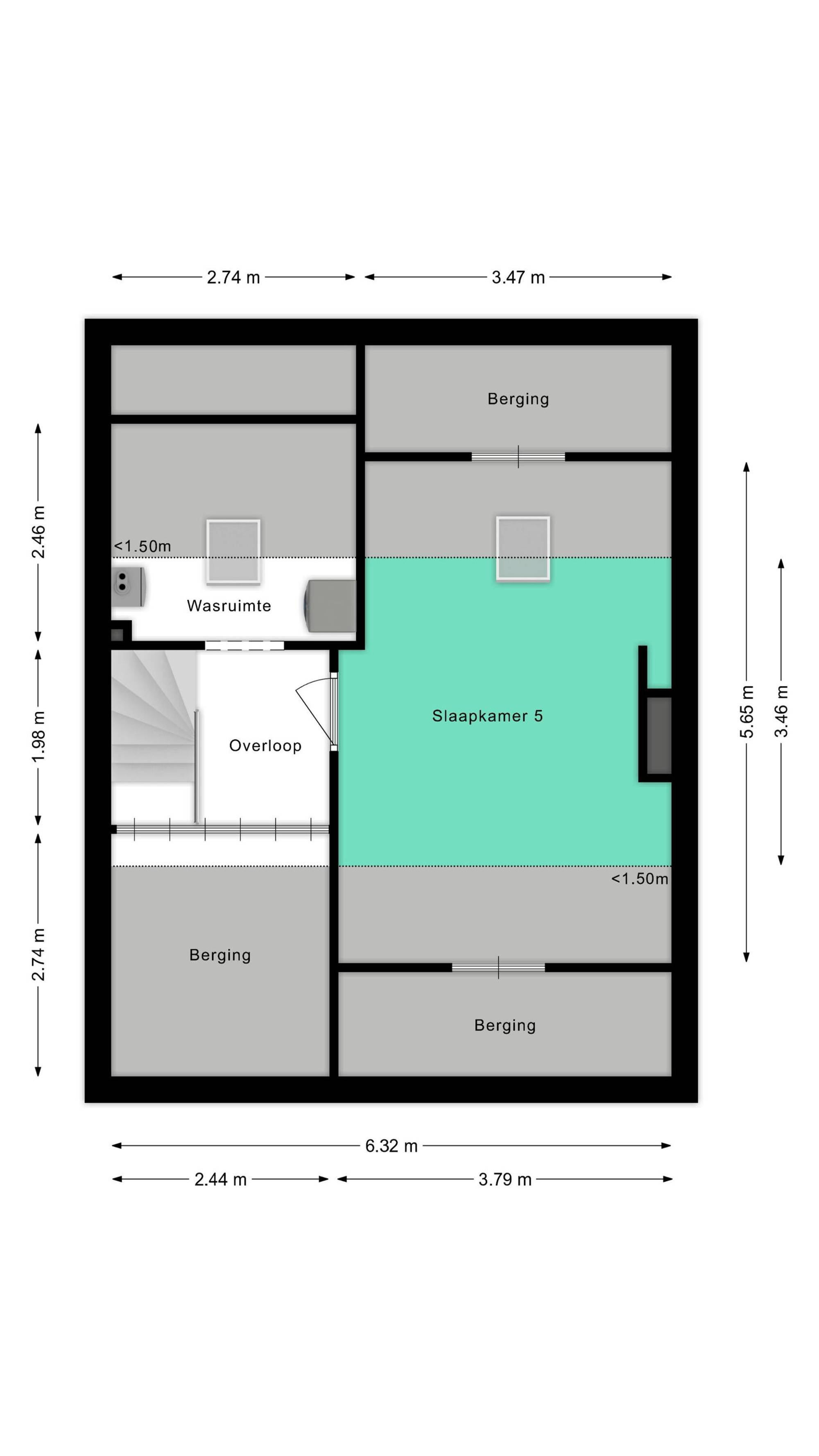
+ De tweede verdieping is ook met een vaste trap bereikbaar. Hier vind je de vijfde ruime slaapkamer met laminaatvloer en Velux dakraam. Ook is hier een separate waskamer met een dakraam, de witgoedaansluitingen en de Nefit cv-ketel (2013) aanwezig. Daarnaast vind je op deze verdieping extra bergruimte.
+ De achtertuin is verzorgd aangelegd en voorzien van een overkapping, tweede vlonderterras, gazon, groene borders, directe achterom en toegang tot de vrijstaande garage met zowel een kanteldeur als loopdeur. Deze multifunctionele ruimte is ideaal voor hobby of opslag.
Bijzonderheden
+ Energielabel C
+ De woning beschikt over muur-, vloer- en dakisolatie. Zo is de spouwmuur na-geïsoleerd in 2014.
+ De woning is grotendeels voorzien van kunststof kozijnen met dubbel glas.
+ De cv-ketel komt uit 2006 (eigendom) en beschikt over een onderhoudscontract.
+ Nieuwsgierig naar hoe je deze woning kunt verduurzamen tot een energielabel A, en wat daar de kosten van zijn? Vraag dan ons kantoor naar het beschikbare verduurzamingsrapport!
Aanvaarding
In nader overleg.
Deze verrassend ruime twee-onder-een-kapwoning beschikt over maar liefst vijf slaapkamers, een lichte woonkamer met open keuken, een moderne badkamer en een multifunctionele garage. De woning is in de loop der jaren op diverse punten gemoderniseerd, denk aan na-isolatie op diverse manieren en kunststof kozijnen met dubbel glas. Tel hierbij de fijne extra’s op, zoals de separate waskamer en de ruime tuin met overkapping en je geniet van een royale gezinswoning.
De woning heeft een prettige indeling met een open en lichte leefruimte, een hoekkeuken, een ruime badkamer met inloopdouche en ligbad en diverse praktische inbouwkasten. Dankzij de vaste trap naar de tweede verdieping is ook deze etage volledig en comfortabel in gebruik, met de vijfde volwaardige slaapkamer, de waskamer en veel bergruimte.
Deze gezinswoning is gelegen in een rustig hofje met een speeltuin om de hoek. Je woont hier in een gemoedelijk dorp met veel voorzieningen en de prachtige Maas dichtbij. Op loopafstand vind je onder meer een supermarkt, basisschool, bakker, huisartsenpraktijk en diverse sportverenigingen. Dankzij de gunstige ligging ben je bovendien snel onderweg richting ’s-Hertogenbosch, Eindhoven en Nijmegen.
Pluspunten
+ Parkeren doe je gemakkelijk op eigen oprit met plek voor meerdere auto’s.
+ De hal met vernieuwde voordeur (2012) biedt toegang tot de toiletruimte, garderobehoek, meterkast (4 groepen en aardlekschakelaar) en de trapopgang met praktische trappenkast.
+ De woonkamer met tegelvloer is uitgevoerd als doorzonkamer, waardoor het daglicht rijkelijk binnenvalt. Aan de voorzijde is een zonneluifel aanwezig. Vanuit de eethoek heb je ene fijn uitzicht op de achtertuin.
+ De hoekkeuken staat in open verbinding met de woonkamer en is uitgerust met een 4-pitsfornuis, afzuigkap, vaatwasser, koelkast en een combi-oven. Vanuit de keuken heb je toegang tot de achtertuin.
+ De eerste verdieping bestaat uit de overloop, vier volwaardige slaapkamers met laminaatvloer en draaikiepramen en de badkamer.
+ De moderne badkamer is compleet ingericht met een ligbad, inloopdouche, badkamermeubel met wastafel, wandtoilet, designradiator en spotverlichting.
+ De tweede verdieping is ook met een vaste trap bereikbaar. Hier vind je de vijfde ruime slaapkamer met laminaatvloer en Velux dakraam. Ook is hier een separate waskamer met een dakraam, de witgoedaansluitingen en de Nefit cv-ketel (2013) aanwezig. Daarnaast vind je op deze verdieping extra bergruimte.
+ De achtertuin is verzorgd aangelegd en voorzien van een overkapping, tweede vlonderterras, gazon, groene borders, directe achterom en toegang tot de vrijstaande garage met zowel een kanteldeur als loopdeur. Deze multifunctionele ruimte is ideaal voor hobby of opslag.
Bijzonderheden
+ Energielabel C
+ De woning beschikt over muur-, vloer- en dakisolatie. Zo is de spouwmuur na-geïsoleerd in 2014.
+ De woning is grotendeels voorzien van kunststof kozijnen met dubbel glas.
+ De cv-ketel komt uit 2006 (eigendom) en beschikt over een onderhoudscontract.
+ Nieuwsgierig naar hoe je deze woning kunt verduurzamen tot een energielabel A, en wat daar de kosten van zijn? Vraag dan ons kantoor naar het beschikbare verduurzamingsrapport!
Aanvaarding
In nader overleg.
Lees meer
Minder tonen
Kenmerken
| Overdracht | |
|---|---|
| Prijs: | € 450.000,- k.k. |
| Status: | Verkocht onder voorbehoud |
| Aanvaarding: | In overleg |
| Bouw | |
| type-object: | Woonhuis |
| Type: | Twee onder een kapwoning |
| Soort: | Eengezinswoning |
| Bouwjaar: | 1975 |
| Oppervlakten en inhoud | |
| Woonoppervlakte: | 125 m2 |
| Perceeloppervlakte: | 242 m2 |
| Inhoud: | 444 m3 |
| Indeling | |
| Kamers: | 6 |
| Slaapkamers: | 5 |
| Energie | |
| Energieklasse: | C |
| Isolatievormen: | Muurisolatie, vloerisolatie, dubbel glas |
| Soorten verwarming: | Cv ketel |
| Soorten warm water: | Cv ketel |
| CV ketel type: | Nefit |
| CV ketel eigendom: | Eigendom |
| Buitenruimte | |
| Tuintypen: | Achtertuin, voortuin |
| Hoofdtuin: | Achtertuin |
| Ligging: | Noord |
| Achteringang: | Ja |
| Lengte: | 10,72 m |
| Breedte: | 9,67 m |
| Oppervlakte: | 104 m2 |
| Parkeren | |
| Parkeerfaciliteiten: | Openbaar parkeren, op eigen terrein |
| Soorten: | Vrijstaand steen |
| Capaciteit: | 1 |
Interesse?
Voor meer informatie of het plannen van een bezichtiging helpen we je graag verder.
Kan ik deze woning betalen?